Translate with 
MENU ZAVŘÍT

Pronájem obchodních prostor 65 m², Roudnice nad Labem (ID 273-NP04683)

ulice Náměstí Jana z Dražic, Roudnice nad Labem mapa

10 000 Kč ( za měsíc)
GMimořádně
nehospodárná

65 m2
Exkluzivně

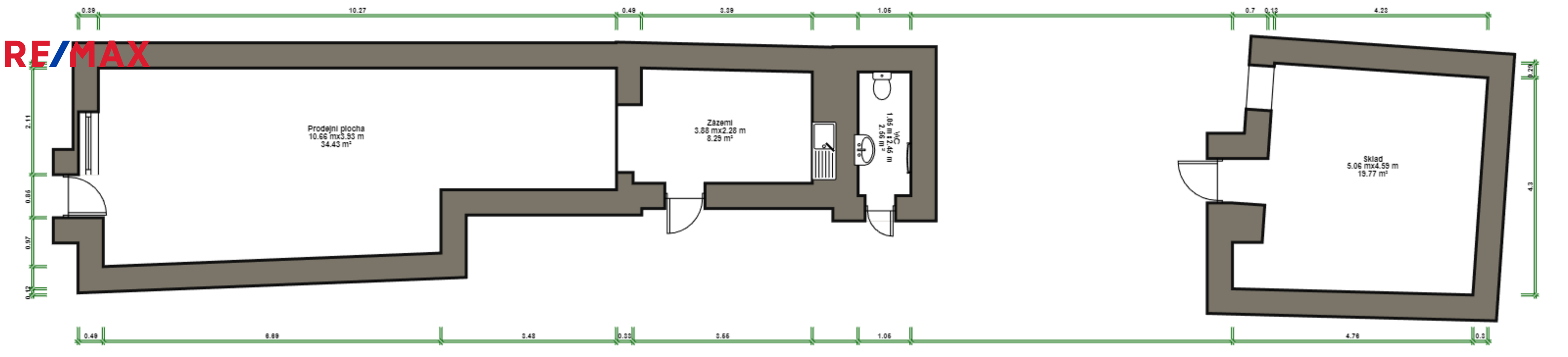
Prodejní, nebo kancelářský prostor, 65m2, Jana z Dražic, Roudnice nad Labem

Hledáte stabilní zázemí pro své podnikání na dobrém místě? Nabízíme k dlouhodobému pronájmu nebytový prostor o celkové výměře 65 m², situovaný přímo na frekventovaném náměstí Jana z Dražic v Roudnici nad Labem.
Prostor byl naposledy provozován jako květinářství, obchod je zde zavedený a dobře viditelný, s možností umístění vlastního vývěsního štítu na dům. Nabízíme prodejnu s umyvadlem, vlastní WC a prostorný sklad, bonusem je venkovní prostor - soukromý dvorek mezi domem a skladem, ideální jako klidová zóna.
Objekt je napojen na veškeré IS včetně velmi rychlého optického internetu a pevné linky, ústřední plynové topení doplňují ve skladu kamna na tuhá paliva.

Prostor po předchozím nájemci vyžaduje částečné opravy (vymalování, drobné úpravy interiéru). To vám dává jedinečnou šanci přizpůsobit si design přesně vašemu brandu. Samozřejmostí je možnost umístění vývěsního štítu na fasádu.
Dva měsíční nájmy, jako kauce, nájemce neplatí provizi RK. Pronajímající si vyhrazuje právo vybrat nájemce na základě jím zvolených kritérií.
Cena:
10 000 CZK / za měsíc
Poznámka k ceně:
Upozornění:
Pronajímající si vyhrazuje právo vybrat nájemce na základě jím zvolených kritérií.
Michal Broft
RE/MAX Partner
Řeporyjské náměstí 16
Praha 5 - Řeporyje, 15500
Česká republika
Tel. na makléře: +420 605 853 657
Tel. do kanceláře: +420 800 434 434
E-mail: michal.broft@re-max.cz

Potřebujete poradit/máte zájem o prohlídku?

* – toto pole je nutné vyplnit

Podrobné informace

Číslo zakázky:
ID 273-NP04683
Typ nemovitosti:
Komerční prostory
Druh prostor:
Obchodní
Číslo podlaží:
1
Počet podlaží v objektu:
2
Plocha kanceláří:
65 m²
Druh objektu:
Cihlová
Stav objektu:
Dobrý
K nastěhování:
5. 2. 2026
Doprava:
Vlak, Dálnice, Silnice, MHD, Autobus
Elektřina:
230 V, 400 V
Odpad:
Kanalizace
Celková plocha:
65 m²
Zastavěná plocha:
104 m²
Plyn:
Plynovod
Počet podlaží pod zemí:
1
Telekomunikace:
Telefon
Typ domu:
Patrový
Umístění objektu:
Centrum obce
Voda:
Dálkový rozvod
Vybavení kanceláří:
Ano
Vybaveno:
Ano
Energetická náročnost budovy:
G