Translate with 
MENU ZAVŘÍT

Prodej bytu 3+1 v osobním vlastnictví 81 m², Moravany (ID 193-NP02463)

ulice Květná, Moravany mapa

10 126 500 Kč ( za nemovitost)
GMimořádně
nehospodárná

1x
3x
81 m2
2/3
Exkluzivně

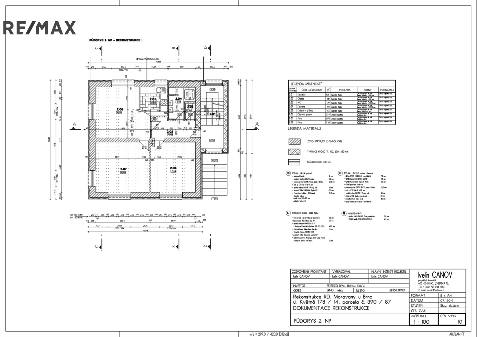
Prodej bytu po rekonstrukci 3+1, 81 m2

Se souhlasem zhotovitele nabízím k prodeji byt o dispozici 3+1 s podlahovou plochou 81 m², nacházející se v bytovém domě, který prochází kompletní rekonstrukcí.
Dům i byty prošly kompletní a pečlivě provedenou rekonstrukcí, která řeší jak technickou stránku, tak komfort budoucího bydlení. Nové jsou veškeré elektrické rozvody, datové rozvody, rozvody vody a odpadů, dům je osazen hliníkovými okny s izolačním trojsklem, která zlepšují tepelnou i akustickou pohodu. O vytápění se stará úsporné elektrické podlahové topení, zajišťující rovnoměrné teplo v celém bytě. Koupelna je provedena v kvalitním, nadčasovém standardu, který dobře obstojí i s odstupem let – funkční, vkusný a bez zbytečných kompromisů.
Předpokládaný termín předání bytů je do konce března.

Nabízený byt se nachází ve druhém nadzemním podlaží. Disponuje dvěma ložnicemi o velikostech 17,7 m² a 21,7 m², obě s okny orientovanými do klidné ulice. Obývací pokoj o ploše 20,4 m² tvoří přirozené centrum bytu.
V kuchyni (6 m²) je připraven prostor pro instalaci kuchyňské linky dle vlastních představ nového majitele.
Součástí bytu je koupelna se sprchovým koutem (5,1 m²) a samostatná toaleta (1,3 m²).
Vytápění bytu je řešeno elektrickým podlahovým topením s regulací v jednotlivých místnostech a s možností ovládání přes mobilní telefon.
K bytu náleží sklepní kóje o ploše 2m2.
V domě se nacházejí pouze tři bytové jednotky, což zajišťuje klidné a komorní bydlení.
Podmínkou prodeje bytu je koupě venkovního, vymezeného parkovacího stání před domem za cenu 310.000 Kč.

Součástí nabídky je také možnost koupě suterénních prostory o celkové ploše 56 m², umístěné v domě s využitím jako např, domácí kancelář, dílna a pod.

Prodávající je plátce DPH. Prodávající si vyhrazuje právo vybrat kupujícího na základě jím zvolených kritérií.
Cena:
10 126 500 CZK / za nemovitost
Poznámka k ceně:
cena včetně odměny RK a právního servisu
RX finance

Spočítejte si splátku hypotéky

Na kolik vás vyjde pořízení vlastního bydlení? Zadejte pár informací do naší hypoteční kalkulačky a hned si prohlédněte výsledek.

Kupní cena nemovitosti

10 126 500 Kč

Výše hypotéky

Doba splácení

Vypočítaná měsíční splátka

Úroková sazba 3.6%

260 990 Kč

Hypotéku zařídíme za vás

Ušetřete svůj čas i nervy. Naši makléři zařídí veškeré papírování a dovedou vás až k úspěšnému podpisu smlouvy v bance.

Nechte nám kontakt, náš makléř se v pracovní dny ozve do 24 hodin

* – toto pole je nutné vyplnit
Petr Sobotka
RE/MAX G8 Reality 5
Moravské náměstí 754/13
Brno, 60200
Česká republika
Tel. na makléře: +420 606 833 172
Tel. do kanceláře: +420 703 180 388
E-mail: petr.sobotka@re-max.cz

Potřebujete poradit/máte zájem o prohlídku?

* – toto pole je nutné vyplnit

Podrobné informace

Číslo zakázky:
ID 193-NP02463
Dispozice:
3+1
Číslo podlaží:
2
Počet podlaží v objektu:
3
Podlahová plocha:
81 m²
Druh objektu:
Cihlová
Stav objektu:
Po rekonstrukci
Vlastnictví:
Osobní
Typ nemovitosti:
Byty
Charakter okolní zástavby:
Obytná
K nastěhování:
2. 3. 2026
Doprava:
Silnice, MHD, Autobus
Elektřina:
230 V
Odpad:
Kanalizace
Ostatní rozvody:
Kabelová televize, Kabelové rozvody, Ostatní rozvody
Užitná plocha:
79 m²
Zastavěná plocha:
81 m²
Počet podlaží pod zemí:
1
Telekomunikace:
Telefon, Internet
Voda:
Dálkový rozvod
Energetická náročnost budovy:
G