Translate with 
MENU ZAVŘÍT

Pronájem domu 140 m², Praha 8 - Ďáblice (ID 257-NP01400)

ulice U Červeného mlýnku, Praha 8 – Ďáblice mapa

43 500 Kč ( za měsíc)
GMimořádně
nehospodárná

4x
140 m2
736 m2
1
Exkluzivně

Pronájem rodinného domu s garáží, 140 m2, Praha 8 - Ďáblice

Toužíte po dostatku prostoru, vlastní terase, zahradě a garáži pro svého čtyřkolového miláčka? Už vás nebaví život v bytě, nekonečné hledání parkovacího místa nebo víkendové přesuny na chalupu? Vaše rodina se rozrůstá a potřebujete větší a komfortnější bydlení? Pak jste tu správně.
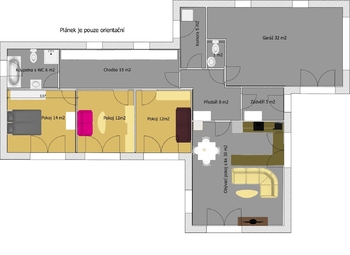
Nabízíme k dlouhodobému pronájmu přízemní rodinný dům typu bungalov o dispozici 4+kk a užitné ploše cca 140 m2, situovaný v klidné rezidenční zóně pražských Ďáblic. Vstupní část domu začíná zádveřím se šatním koutem, centrální předsíní nabízející vstup do obývacího pokoje s kuchyňským koutem, samostatného WC, komory a garáže. Na předsíň navazuje oddělená prostorná chodba s přístupem do tří samostatných neprůchozích pokojů o ploše 12 m2, 12 m2 a 14 m2. Chodba nabízí dostatek místa pro úložné prostory, není tedy nutné zatěžovat jednotlivé místnosti šatními skříněmi. Z chodby je zároveň přístupná koupelna vybavená sprchovým koutem, vanou a WC s bidetovou sprchou. Obývací pokoj s kuchyňským koutem o celkové ploše cca 30 m2 plynule navazuje na terasu propojenou se zahradou o velikosti 559 m2, která nabízí ideální prostor pro relaxaci i rodinné posezení. Přiložená vizualizace vybavení terasy je pouze ilustrativní. Bezbariérový dům je částečně zařízen. Kuchyňská linka nabízí lednici s mrazákem, sklokeramickou varnou desku, digestoř, horkovzdušnou troubou, mikrovlnnou troubou a myčku nádobí. Díky své dispozici ve tvaru U, je opticky oddělen kuchyňský kout a obývací část. Obývací pokoj je vybaven sedací soupravou, komodou s velkoplošnou televizí, dalšími úložnými prostory, jídelním stolem a židlemi. Útulnou atmosféru dotváří krb umístěný v rohu místnosti.
Obývací pokoj s kuchyňským koutem a dva další pokoje jsou vybaveny klimatizací. V pokojích jsou plovoucí podlahy, v ostatních místnostech dlažba. Všechna okna mají vnitřní i elektronicky ovládané venkovní žaluzie. Vytápění domu zajišťuje plynový kotel zn. Junkers. Dům je zabezpečen alarmem. Prostorná garáž nabízí kromě parkování také dostatek místa pro uskladnění dalších věcí. Velkou výhodou je přímé propojení domu s garáží, díky kterému se do interiéru dostanete „suchou nohou“. Převážně západní orientace zajišťuje dostatek denního světla v obytných prostorách a příjemné posezení na terase či zahradě. Na zahradě se nachází zahradní domek, její údržbu zajišťuje robotická sekačka. Energetický štítek v přípravě, do doby dodání proto uvádíme kategorii G.
V docházkové vzdálenosti se nachází hypermarket Globus, nákupní centrum Čakovice, v dojezdové vzdálenosti Lidl, restaurace, bistra i cukrárna. Autobusová zastávka Na Pramenech s přímým spojením do Čakovic nebo k Poliklinice Mazurská, odkud je možné pokračovat na metro Ládví. Rychlé napojení na výpadovku Cínovecká směrem do centra Prahy i na Ústí nad Labem. K volnočasovým aktivitám k využití Ďáblický háj, Čimický háj, zámecký park Čakovice.
Pokud vás tato nabídka zaujala, neváhejte mě kontaktovat a domluvit si osobní prohlídku.
Cena:
43 500 CZK / za měsíc
Poznámka k ceně:
+ zálohy 6.500,- /měs. (vč. elektřiny 2.200,- a plynu 3.000,-, které budou převedeny na nájemce)
Upozornění:
Pronajímající si vyhrazuje právo vybrat nájemce na základě jím zvolených kritérií.
Ing. Petra Kaulitzová
RE/MAX Cool
Roztylské náměstí 393/35
Praha 4 - Záběhlice, 14100
Česká republika
Tel. na makléře: +420 602 270 901
Tel. do kanceláře: +420 728 400 586
E-mail: petra.kaulitzova@re-max.cz

Potřebujete poradit/máte zájem o prohlídku?

* – toto pole je nutné vyplnit

Podrobné informace

Číslo zakázky:
ID 257-NP01400
Poloha objektu:
Samostatný
Počet podlaží v objektu:
1
Užitná plocha:
140 m²
Plocha parcely:
736 m²
Druh objektu:
Cihlová
Stav objektu:
Velmi dobrý
Typ nemovitosti:
Domy a vily
Bezbariérový byt:
Ano
K nastěhování:
13. 2. 2026
Elektřina:
230 V
Garáž:
Ano
Odpad:
Kanalizace
Plocha zahrady:
559 m²
Zastavěná plocha:
177 m²
Plyn:
Plynovod
Typ domu:
Přízemní
Umístění objektu:
Klidná část obce
Voda:
Dálkový rozvod
Vybaveno:
Ano
Energetická náročnost budovy:
G