Translate with 
MENU ZAVŘÍT

Pronájem bytu 2+kk v osobním vlastnictví 44 m², Český Brod (ID 205-NP12509)

ulice Bezručova, Český Brod mapa

15 000 Kč ( za měsíc)
GMimořádně
nehospodárná

kk
2x
44 m2
2/3
Exkluzivně

Pronájem světlého bytu 2+kk v Českém Brodě

Ve výhradním zastoupení vlastníka si vám dovoluji nabídnout k pronájmu krásný světlý byt v ulici Bezručova v Českém Brodě.

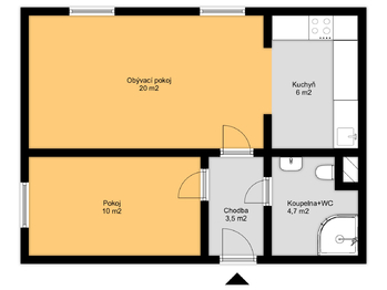
Byt o dispozici 2 + kk a podlahové ploše 44 m2 je umístěn ve 2. nadzemním podlaží cihlového domu bez výtahu.

Byt se sestává z obývacího pokoje s kuchyní, ložnice, chodby a koupelny se sprchovým koutem a WC. V bytě je naistalována nová kuchyňská linka se spotřebiči (varná deska, trouba a digestoř) a také nový koberec v obývacím pokoji.

Vytápění zajišťuje vlastní plynový kotel. Parkování je možné před domem. K bytu náleží sklep.

Dům má nová plastová okna a novou střechu. K domu náleží vlastní uzavřená zahrada, kterou je možné využívat.

V Českém Brodě je plná občanská vybavenost. Najdete zde školy, školky, kompletní síť obchodů a služeb. Český Brod má navíc vynikající dopravní dostupnost do Prahy (vlakem cca 30 minut do centra, autem cca 25 minut na Černý Most).

Nájemné 15 000 Kč / měsíc
Poplatky SVJ 862 Kč / měsíc
Elektřina bude převedena na nájemce
Plyn bude převeden na nájemce
Kauce 30 000 Kč

Byt je ihned k dispozici.

V případě zájmu o prohlídku mě kontaktujte na tel. 774 30 20 12.
Cena:
15 000 CZK / za měsíc
Poznámka k ceně:
+ poplatky
Upozornění:
Pronajímající si vyhrazuje právo vybrat nájemce na základě jím zvolených kritérií.
Ing. Lucie Černá
RE/MAX Alfa
Spálená 97/29
Praha 1 - Nové Město, 11000
Česká republika
Tel. na makléře: +420 774 302 012
Tel. do kanceláře: +420 296 240 400
E-mail: lucie.cerna@re-max.cz

Potřebujete poradit/máte zájem o prohlídku?

* – toto pole je nutné vyplnit

Podrobné informace

Číslo zakázky:
ID 205-NP12509
Dispozice:
2+kk
Číslo podlaží:
2
Počet podlaží v objektu:
3
Podlahová plocha:
44 m²
Druh objektu:
Smíšená
Stav objektu:
Velmi dobrý
Vlastnictví:
Osobní
Typ nemovitosti:
Byty
K nastěhování:
11. 2. 2026
Odpad:
Kanalizace
Užitná plocha:
44 m²
Zastavěná plocha:
254 m²
Plyn:
Plynovod
Voda:
Dálkový rozvod
Vybaveno:
Ano
Energetická náročnost budovy:
G