Translate with 
MENU ZAVŘÍT

Prodej domu 90 m², Panenské Břežany (ID 205-NP12511)

ulice U obory, Panenské Břežany mapa

10 950 000 Kč ( za nemovitost)
GMimořádně
nehospodárná

5+
90 m2
1643 m2
2
Exkluzivně

Rodinný dům 6+kk na svažitém pozemku 1 643 m², Panenské Břežany – U Obory, ideální pro rekonstrukci

Rodinný dům 6+kk na svažitém pozemku 1 643 m², Panenské Břežany – U Obory 4, ideální pro rekonstrukci nebo novou výstavbu
V Panenských Břežanech, v klidné ulici U Obory, nabízíme k prodeji rodinný dům o dispozici 6+kk, umístěný na prostorném svažitém pozemku o celkové výměře 1 643 m². Dům je v původním stavu a je vhodný buď k rozsáhlé rekonstrukci nebo k demolici a následné výstavbě nového rodinného domu přesně podle představ nového majitele. Tato nemovitost představuje výjimečnou příležitost pro ty, kteří hledají velký pozemek v oblíbené lokalitě s výbornou dostupností Prahy.
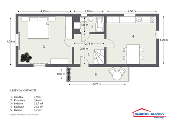
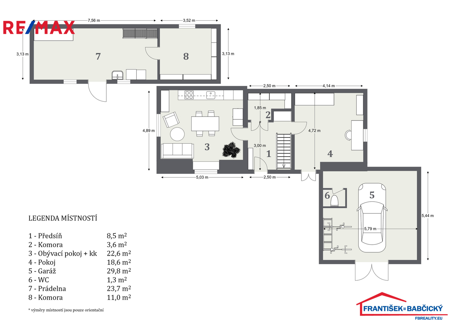
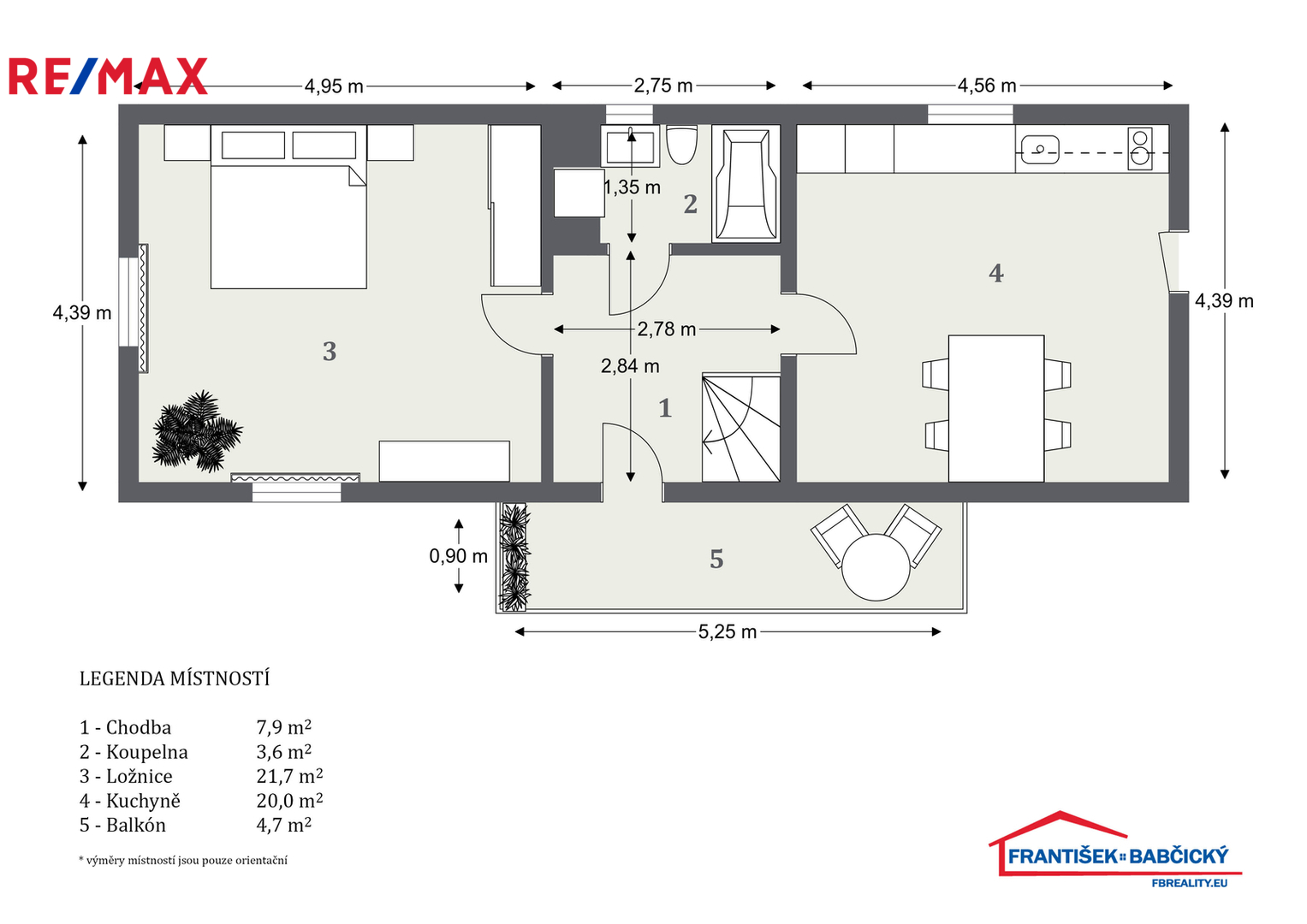
Stávající dvoupodlažní dům má dispozici vycházející z půdorysů: v přízemí se nachází předsíň, komora, obývací pokoj s kuchyňským koutem, další pokoj, toaleta, garáž, prostorná prádelna a další úložné prostory. V patře je umístěna chodba, koupelna, ložnice, kuchyně a balkón s výhledem do zahrady. Celková plocha dle plánů činí 177 m², včetně garáže, balkónu i vedlejších hospodářských částí. Na pozemku se nachází také samostatná garáž a technické zázemí, které mohou sloužit jako dílna nebo sklad.
Nemovitost je napojena na elektřinu, obecní vodovod, kanalizaci i internet. Plyn se nachází přímo na hranici pozemku a je připraven pro budoucí připojení. Svažité terénní uspořádání nabízí možnost atraktivního architektonického řešení, například výstavby víceúrovňového domu nebo terasovité zahrady.
Panenské Břežany jsou žádanou lokalitou díky příjemnému prostředí, blízkosti přírody i hlavního města. V obci se nachází mateřská a základní škola, knihovna, Obecní úřad a výdejní místo pošty. Základní občanská vybavenost je doplněna službami v nedaleké Odoleně Vodě a Brandýse nad Labem. Obec je známá také svými historickými památkami, zejména kaplí sv. Anny a areálem místního zámku, které dodávají lokalitě jedinečný charakter.
Dopravní dostupnost je výborná. Autobusová linka PID 373 navazuje přímo na pražskou stanici metra C Kobylisy, přičemž zastávky jsou v docházkové vzdálenosti od domu. Autem se snadno napojíte na hlavní tahy směrem na Prahu přes Zdiby. Lokalita tak spojuje klidné bydlení s výbornou dostupností města.
Tato nabídka je ideální pro rodinu nebo investora, který hledá prostorný pozemek s potenciálem v atraktivní obci v blízkosti Prahy. Nemovitost je připravena k okamžitému předání.
Cena:
10 950 000 CZK / za nemovitost
Poznámka k ceně:
včetně provize a právních služeb
Upozornění:
Prodávající si vyhrazuje právo vybrat kupujícího na základě jím zvolených kritérií.
RX finance

Spočítejte si splátku hypotéky

Na kolik vás vyjde pořízení vlastního bydlení? Zadejte pár informací do naší hypoteční kalkulačky a hned si prohlédněte výsledek.

Kupní cena nemovitosti

10 950 000 Kč

Výše hypotéky

Doba splácení

Vypočítaná měsíční splátka

Úroková sazba 3.6%

260 990 Kč

Hypotéku zařídíme za vás

Ušetřete svůj čas i nervy. Naši makléři zařídí veškeré papírování a dovedou vás až k úspěšnému podpisu smlouvy v bance.

Nechte nám kontakt, náš makléř se v pracovní dny ozve do 24 hodin

* – toto pole je nutné vyplnit
Igor Bak
RE/MAX Alfa
Spálená 97/29
Praha 1 - Nové Město, 11000
Česká republika
Tel. na makléře: +420 702 222 666
Tel. do kanceláře: +420 296 240 400
E-mail: igor.bak@re-max.cz

Potřebujete poradit/máte zájem o prohlídku?

* – toto pole je nutné vyplnit

Podrobné informace

Číslo zakázky:
ID 205-NP12511
Poloha objektu:
Samostatný
Počet podlaží v objektu:
2
Užitná plocha:
90 m²
Plocha parcely:
1 643 m²
Druh objektu:
Smíšená
Stav objektu:
Před rekonstrukcí
Typ nemovitosti:
Domy a vily
Charakter okolní zástavby:
Obytná
K nastěhování:
11. 2. 2026
Doprava:
Dálnice, Silnice, MHD, Autobus
Elektřina:
230 V, 400 V
Odpad:
Kanalizace
Plocha zahrady:
1 113 m²
Zastavěná plocha:
530 m²
Plyn:
Plynovod
Telekomunikace:
Telefon, Internet
Typ domu:
Patrový
Umístění objektu:
Klidná část obce
Voda:
Dálkový rozvod
Energetická náročnost budovy:
G