Translate with 
MENU ZAVŘÍT

Prodej domu 280 m², Beroun (ID 205-NP12519)

ulice Máchova, Beroun – část obce Beroun-Závodí mapa

13 500 000 Kč ( za nemovitost)
GMimořádně
nehospodárná

5+
280 m2
1898 m2
3
Exkluzivně

Prodej rodinného domu

Chcete si vybudovat domov svých snů? Pojďme se společně podívat na tuto výjimečnou příležitost.

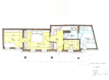
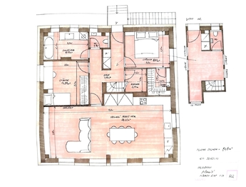
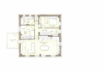
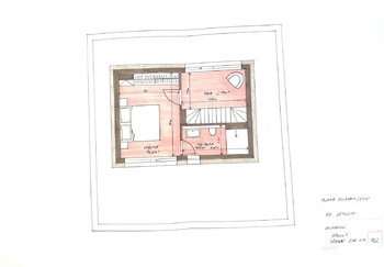
V exkluzivním zastoupení majitele Vám nabízím atypický rodinný dům na rozsáhlém pozemku o ploše 1 898 m². Dům má tři podlaží (dvě nadzemní a jedno částečně zapuštěné do terénu) a navíc disponuje střešní místností, na kterou vede z horní části zahrady přístupová lávka. Nemovitost je ve stavu započaté rekonstrukce. Díky nadčasové skeletové konstrukci lze dispozice jednotlivých podlaží upravit podle představ nového majitele. Součástí nabídky je také architektonická studie, kterou naleznete na přiložených fotografiích a technická inspekce nemovitosti.

Původně svažitý pozemek byl upraven do rovinatých kaskád, na nichž se nachází i vinohrad. K dispozici je rovněž prostorná garáž s pochozí střechou, která nabízí další možnosti využití. Horní část pozemku je ideální například pro dětské hřiště či jiné volnočasové aktivity a navíc poskytuje přímý vstup do přilehlé, nedotčené přírody.

Beroun patří mezi města s vynikající občanskou vybaveností a výbornou dopravní dostupností. Do Prahy či Plzně se snadno dostanete autem po dálnici, vlakem nebo autobusem.

V případě jakýchkoli dotazů či zájmu o prohlídku mne neváhejte kontaktovat.
Cena:
13 500 000 CZK / za nemovitost
Poznámka k ceně:
Prodávající si vyhrazuje právo vybrat kupujícího na základě jím zvolených kritérií.
Upozornění:
Prodávající si vyhrazuje právo vybrat kupujícího na základě jím zvolených kritérií.
RX finance

Spočítejte si splátku hypotéky

Na kolik vás vyjde pořízení vlastního bydlení? Zadejte pár informací do naší hypoteční kalkulačky a hned si prohlédněte výsledek.

Kupní cena nemovitosti

13 500 000 Kč

Výše hypotéky

Doba splácení

Vypočítaná měsíční splátka

Úroková sazba 3.6%

260 990 Kč

Hypotéku zařídíme za vás

Ušetřete svůj čas i nervy. Naši makléři zařídí veškeré papírování a dovedou vás až k úspěšnému podpisu smlouvy v bance.

Nechte nám kontakt, náš makléř se v pracovní dny ozve do 24 hodin

* – toto pole je nutné vyplnit
Ing. Miroslav Hošek
RE/MAX Alfa
Spálená 97/29
Praha 1 - Nové Město, 11000
Česká republika
Tel. na makléře: +420 739 204 026
Tel. do kanceláře: +420 296 240 400
E-mail: hosek.team@re-max.cz

Potřebujete poradit/máte zájem o prohlídku?

* – toto pole je nutné vyplnit

Podrobné informace

Číslo zakázky:
ID 205-NP12519
Poloha objektu:
Samostatný
Počet podlaží v objektu:
3
Užitná plocha:
280 m²
Plocha parcely:
1 898 m²
Druh objektu:
Skeletová
Typ nemovitosti:
Domy a vily
Elektřina:
400 V
Garáž:
Ano
Odpad:
Kanalizace
Zastavěná plocha:
149 m²
Plyn:
Plynovod
Typ domu:
Patrový
Umístění objektu:
Klidná část obce
Voda:
Dálkový rozvod
Energetická náročnost budovy:
G