Translate with 
MENU ZAVŘÍT

Prodej domu 102 m², Valtrovice (ID 197-NP05130)

Valtrovice, okres Znojmo mapa

6 890 000 Kč (vč. DPH, za nemovitost)
BVelmi
úsporná

4x
102 m2
810 m2
0
Exkluzivně

Novostavba RD 4+KK, 102 m2, Valtrovice

Zcela nový rodinný dům 4+kk, 102 m2, v obci Valtrovice.
Nabízíme zcela nový rodinný dům, umístěný na pozemku o výměře 810 m2 v obci Valtrovice, který je navržen jako přízemní, nepodsklepený se sedlovou střechou.
Dům v sobě kombinuje vzhled tradičních rodinných domů a prvky moderní architektury.
Slunečný dům nabízí dostatek prostoru i slunečního svitu. Díky velkým oknům a snadnému přístupu na zahradu působí dům vzdušně a prosvětleně i v ponurém počasí.

Dobrá zpráva pro majitele úzkých pozemků – projekt domu SLIM s moderní architekturou, zohledňující omezený pozemkový prostor. Všechny užitkové místnosti jsou na jedné straně, což umožňuje usadit dům z jedné strany co nejblíže sousednímu pozemku. Tímto lze dosáhnout co největší užitkovosti i z úzkého pozemku. Tvar, velikost a umístění oken domu si můžete upravit dle vlastních potřeb. Také lze jednoduše zvětšit koupelnu na úkor technické místnosti. Projekt domu slim představuje novinku.

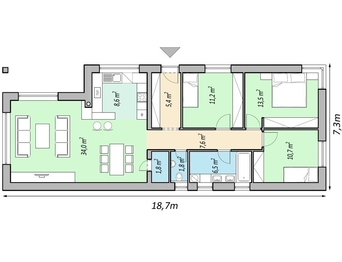
Dispozice 4+kk s užitnou plochou 102 m2 je ideální pro 4člennou rodinu. Propracovaná studie rodinného domu zaručuje vysokou kvalitu provedení spolu s ekonomicky přijatelným řešením. Dům nabízí prostorný obývací pokoj s kuchyňským koutem a spíží; ložnici, 2 dětské pokoje, prostornou koupelnu s vanou a sprchovým koutem, komfortní zádveří a technickou místnost se samostatným WC. Velké francouzské okno v obývacím pokoji zajistí dostatečné množství světla a pohodlný vstup na zahradu.
Užitná plocha RD: 102 m2
Zastavěná plocha 129 m2.
Vytápění zajištuje tepelné čerpadlo a je řešeno jako podlahové v celém domě díky čemuž má dům velmi nízké náklady na provoz.
Možnost využití krbu.
Uvedené ceny obsahují:
tepelné čerpadlo vzduch - voda
vodovodní podlahové vytápění v celém domě, případně elektrické podlahové vytápění
zásobník na ohřev TUV 190 litrů v rámci tepelného čerpadla, případně bojler s tepelným čerpadlem
komín
hromosvod
zateplení domu - polystyrenem 150 mm
vysoký standard podlah i obkladu a dlažby
základovou desku ve standardním provedení
statické posouzení základové desky
projekt, stavební povolení
... a mnoho dalšího

Uvedené ceny neobsahují:
napojení domu na inž. sítě – bude naceněno až po umístění domu na pozemku
kuchyňskou linku a nábytek
spotřebiče
zpevněné plochy, nájezdy, oplocení
finální úpravu terénu
krbová kamna (krb. vložku)

Možnost klientských změn nebo výběru jiného typu domu.

Stupeň dokončení "na klíč" je šitý na míru klientům, kteří chtějí využít veškerého komfortu kompletní dodávky rodinného domu. Dům dokončený na klíč je budoucím uživatelům předán ve stavu umožňujícím okamžité nastěhování.

Obec Valtrovice se nachází nedaleko česko-rakouských hranic asi 17 km jihovýchodně od města Znojma. Polohou 195 m n. m je částí Jižní Moravy, kde jsou velmi dobré podmínky pro pěstování zeleniny a vinné révy. Jižní stranou obce protéká řeka Dyje, která svým pěkným okolím meandry je vhodná ke koupání a rybaření.

Pro více informací volejte makléře nabídky.
Cena:
6 890 000 CZK / za nemovitost
Poznámka k ceně:
Rodinný dům na klíč vč. pozemku
Upozornění:
Prodávající si vyhrazuje právo vybrat kupujícího na základě jím zvolených kritérií.
RX finance

Spočítejte si splátku hypotéky

Na kolik vás vyjde pořízení vlastního bydlení? Zadejte pár informací do naší hypoteční kalkulačky a hned si prohlédněte výsledek.

Kupní cena nemovitosti

6 890 000 Kč

Výše hypotéky

Doba splácení

Vypočítaná měsíční splátka

Úroková sazba 3.6%

260 990 Kč

Hypotéku zařídíme za vás

Ušetřete svůj čas i nervy. Naši makléři zařídí veškeré papírování a dovedou vás až k úspěšnému podpisu smlouvy v bance.

Nechte nám kontakt, náš makléř se v pracovní dny ozve do 24 hodin

* – toto pole je nutné vyplnit
Ing. Miloš Kesler, MBA
RE/MAX Magnum
Banskobystrická 819/52
Brno, 62100
Česká republika
Tel. na makléře: +420 733 679 901
Tel. do kanceláře: +420 733 679 901
E-mail: milos.kesler@re-max.cz

Potřebujete poradit/máte zájem o prohlídku?

* – toto pole je nutné vyplnit

Podrobné informace

Číslo zakázky:
ID 197-NP05130
Poloha objektu:
Samostatný
Užitná plocha:
102 m²
Plocha parcely:
810 m²
Druh objektu:
Cihlová
Stav objektu:
Novostavba
Typ nemovitosti:
Domy a vily
Charakter okolní zástavby:
Obytná
Elektřina:
230 V, 400 V
Občanská vybavenost:
Školka, Pošta
Odpad:
Kanalizace
Zastavěná plocha:
129 m²
Rok výstavby:
2 026
Typ domu:
Přízemní
Umístění objektu:
Okraj obce
Voda:
Dálkový rozvod
Energetická náročnost budovy:
B