Translate with 
MENU ZAVŘÍT

Prodej domu 180 m², Vejprty (ID 320-NP00280)

ulice Kamenická, Vejprty mapa

9 850 000 Kč ( za nemovitost)
BVelmi
úsporná

5+
180 m2
611 m2
3
Exkluzivně

Prodej rodinného domu 6+1/kk s výměrou 180 m² a pozemkem 611 m², Nové Zvolání u Vejprt, Krušné Hory

Exkluzivně nabízíme k prodeji prostorný zděný rodinný dům s nádechem roubenky, který je v osobním vlastnictví a po kompletní rekonstrukci.
Nachází se v lokalitě v obci Nové Zvolání v těsném sousedství Vejprt v Krušných horách.

Rodinný dům tvoří 6 obytných pokojů a kuchyň s jídelnou.
Nemovitost nabízí možnosti parkování v rámci 4 parkovacích stání u domu na pozemku o rozloze cca 611 m².

Zároveň se dům může pyšnit energetickou soběstačností po většinu roku díky energetické hospodárnosti prostřednictvím kombinací fotovoltaické elektrárny o výkonu 8 Kwp, tepelného čerpadla včetně akumulátoru o kapacitě 2 Kwp a možnosti zpětného napájení do sítě - vše instalováno roku 2023, tzn. zánovní stav a možnost ovládat vytápění přes aplikaci v telefonu.

Ohřev teplé vody zajištěn samostatnou fotovoltaikou 2 Kwp, tři bojlery na 120,160 a 200 litrů.
Splachování toalet prostřednictvím zadržované dešťové vody z nádrže, kam jsou vedeny svody i ze střechy.
V rámci kompletní rekonstrukce z let 2010 až 2014 se měnila elektroinstalace a rozvody horké vody do topných těles, které jsou z mědi.

Dispozice jednotlivých podlaží:
1.nadzemní podlaží
- předsíň (4,36 m²)
- chodba (18,98 m²)
- koupelna s toaletou (9,34 m²)
- obývací pokoj (19,06 m²)
- ložnice (19,56 m²)
- kuchyň (13,99 m²)

2.nadzemní podlaží
- chodba a schodiště (15,8 m²)
- ložnice (17,8 m²)
- dětský pokoj (7,32 m²)
- pokoj (15 m²)
- koupelna (4,01 m²)

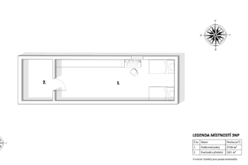
3.nadzemní podlaží
- předsíň a schodiště (5,03 m²)
- podkrovní pokoj (27,06 m²)

Vybavení nemovitosti a její příslušenství:
- dvouvrstvá plastová okna dekor dub
- teplovodní deskové radiátory
- podlahové topení (kuchyň, obývací pokoj, koupelna v 1.NP)
- nová střecha s podbitím
- zateplení fasády
- stropní konstrukce s izolovanými dřevěnými trámy
- sklepní prostory a garáž
- horský pramen jako sekundární zdroj pitné vody
- tepelné čerpadlo č.1 v rámci tepelné soustavy
- tepelné čerpadlo č.2 k bazénu o výkonu 3 Kwp + bazén
- nový komín
- zděná garáž o výměře 27 m²
- prostorný sklep s původní klenbou z r. 1850

Prodávající si vyhrazuje právo vybrat kupujícího na základě jím zvolených kritérií.
Prodávající se v případě většího zájmu vyhrazuje právo uspořádat prodej formou elektronické aukce.

Sousedící město Vejprty nabízí plnou občanskou vybavenost. Přímo ve městě se nachází mateřská a základní škola, nemocnice, bezcelní obchod, supermarkety a potraviny s drogérií včetně autobusového a vlakového nádraží. Další možnosti vybavenosti nabízí německá strana Krušných hor v podobě měst Bärenstein či Annaberg – Buchholz.
V nedaleké vzdálenosti (cca 8 km) se nachází nejmodernější lyžařský areál v ČR Klínovec a v létě lokalita nabídne cyklostezky a horské trasy pro pěší v malebné krajině Krušných hor.
Všudypřítomná horská krajina s mýtinami a lesy je pomyslnou třešničkou.

Zamilovali jste se do této roubenky v Krušných horách?
Kontaktujte mne a budu se na Vás těšit na prohlídce. Prodávající si vyhrazuje právo vybrat kupujícího na základě jím zvolených kritérií.
Cena:
9 850 000 CZK / za nemovitost
RX finance

Spočítejte si splátku hypotéky

Na kolik vás vyjde pořízení vlastního bydlení? Zadejte pár informací do naší hypoteční kalkulačky a hned si prohlédněte výsledek.

Kupní cena nemovitosti

9 850 000 Kč

Výše hypotéky

Doba splácení

Vypočítaná měsíční splátka

Úroková sazba 3.6%

260 990 Kč

Hypotéku zařídíme za vás

Ušetřete svůj čas i nervy. Naši makléři zařídí veškeré papírování a dovedou vás až k úspěšnému podpisu smlouvy v bance.

Nechte nám kontakt, náš makléř se v pracovní dny ozve do 24 hodin

* – toto pole je nutné vyplnit
Bc. Ondřej Holub
REMAX Welcome Home
Zenklova 2245/29
Praha 8 - Libeň, 18000
Česká republika
Tel. na makléře: +420 603 178 902
Tel. do kanceláře: +420 602 400 024
E-mail: ondrej.holub@re-max.cz

Potřebujete poradit/máte zájem o prohlídku?

* – toto pole je nutné vyplnit

Podrobné informace

Číslo zakázky:
ID 320-NP00280
Poloha objektu:
Samostatný
Počet podlaží v objektu:
3
Užitná plocha:
180 m²
Plocha parcely:
611 m²
Druh objektu:
Smíšená
Stav objektu:
Velmi dobrý
Typ nemovitosti:
Domy a vily
Charakter okolní zástavby:
Venkovská
K nastěhování:
18. 4. 2026
Doprava:
Vlak, Dálnice, Silnice, MHD, Autobus
Elektřina:
230 V, 400 V
Garáž:
Ano
Odpad:
Kanalizace
Plocha zahrady:
500 m²
Zastavěná plocha:
114 m²
Počet parkovacích míst:
4
Počet podlaží pod zemí:
1
Telekomunikace:
Telefon, Internet
Typ domu:
Patrový
Umístění objektu:
Klidná část obce
Voda:
Zdroj pro celý objekt, Dálkový rozvod
Vybaveno:
Ano
Energetická náročnost budovy:
B
Měrná vypočtená roční spotřeba energie v kWh/m²/rok:
97