Translate with 
MENU ZAVŘÍT

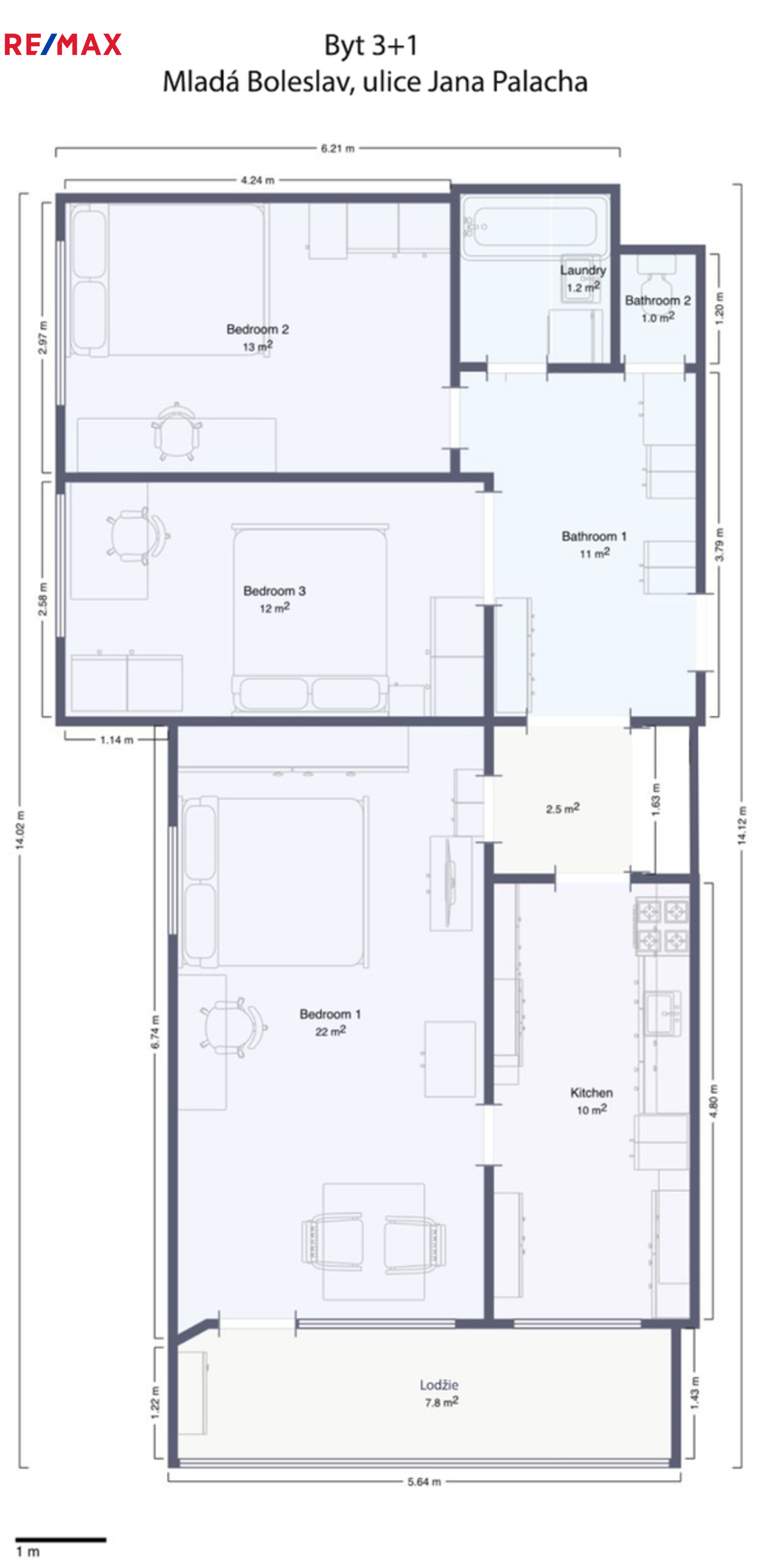
Prodej bytu 3+1 v osobním vlastnictví 89 m², Mladá Boleslav (ID 201-NP03349)

ulice Jana Palacha, Mladá Boleslav – část obce Mladá Boleslav II mapa

5 390 000 Kč ( za nemovitost)
GMimořádně
nehospodárná

1x
3x
89 m2
2/7
Exkluzivně

Prostorný byt 3+1 s velkou lodžií, skvělá lokalita – Mladá Boleslav, ulice Jana Palacha

Ve výhradním zastoupení majitele nabízíme k prodeji útulný byt 3+1 v osobním vlastnictví o užitné ploše 69 m², situovaný ve 2. patře zatepleného a udržovaného panelového domu ve městě Mladá Boleslav.

Byt je v dobrém stavu a nabízí praktické dispoziční řešení, které ocení zejména rodiny hledající pohodlné a dostupné bydlení. Velkou výhodou je prostorná lodžie o velikosti 7 m² s příjemným výhledem do okolí – ideální místo pro ranní kávu nebo večerní relax. K bytu náleží také sklepní kóje o výměře 3 m², která poskytuje dostatek úložného prostoru.

Nemovitost se nachází v atraktivní lokalitě nedaleko 11. brány společnosti Škoda Auto, což z ní činí zajímavou příležitost i z investičního hlediska.

V docházkové vzdálenosti je kompletní občanská vybavenost – škola, školka, lékař, autobusové i vlakové nádraží a obchodní centrum Bondy Centrum.

Okolí domu prošlo rekonstrukcí a za domem se nachází biotop a dětské hřiště, což vytváří příjemné prostředí pro rodinný život.

Tento byt představuje skvělou příležitost jak pro vlastní bydlení, tak jako investici k pronájmu v žádané lokalitě. Pro více informací nebo sjednání prohlídky mě neváhejte kontaktovat.
Cena:
5 390 000 CZK / za nemovitost
Poznámka k ceně:
Upozornění:
Prodávající si vyhrazuje právo vybrat kupujícího na základě jím zvolených kritérií.
RX finance

Spočítejte si splátku hypotéky

Na kolik vás vyjde pořízení vlastního bydlení? Zadejte pár informací do naší hypoteční kalkulačky a hned si prohlédněte výsledek.

Kupní cena nemovitosti

5 390 000 Kč

Výše hypotéky

Doba splácení

Vypočítaná měsíční splátka

Úroková sazba 3.6%

260 990 Kč

Hypotéku zařídíme za vás

Ušetřete svůj čas i nervy. Naši makléři zařídí veškeré papírování a dovedou vás až k úspěšnému podpisu smlouvy v bance.

Nechte nám kontakt, náš makléř se v pracovní dny ozve do 24 hodin

* – toto pole je nutné vyplnit
Michal Ptašinský
RE/MAX Atrium
Podolská 811/138
Praha 4 - Podolí, 14700
Česká republika
Tel. na makléře: +420 792 266 727
Tel. do kanceláře: +420 606 726 515
E-mail: michal.ptasinsky@re-max.cz

Potřebujete poradit/máte zájem o prohlídku?

* – toto pole je nutné vyplnit

Podrobné informace

Číslo zakázky:
ID 201-NP03349
Dispozice:
3+1
Číslo podlaží:
2
Počet podlaží v objektu:
7
Podlahová plocha:
89 m²
Druh objektu:
Panelová
Stav objektu:
Před rekonstrukcí
Vlastnictví:
Osobní
Typ nemovitosti:
Byty
Charakter okolní zástavby:
Obytná
K nastěhování:
1. 5. 2026
Doprava:
Vlak, Dálnice, Silnice, MHD, Autobus
Elektřina:
230 V
Odpad:
Kanalizace
Užitná plocha:
79 m²
Zastavěná plocha:
79 m²
Plyn:
Plynovod
Telekomunikace:
Internet
Voda:
Dálkový rozvod
Výtah:
Ano
Energetická náročnost budovy:
G