Translate with 
MENU ZAVŘÍT

Prodej domu 113 m², Břežany I (ID 059-NP07838)

Břežany I – část obce Chocenice mapa

5 500 000 Kč ( za nemovitost)
GMimořádně
nehospodárná

5+
113 m2
1672 m2
2
Exkluzivně

Rodinný dům 4+1, Chocenice - Břežany I

Nabízíme k prodeji rodinný dům v obci Chocenice – Břežany I, v klidné lokalitě s výbornou dostupností do Kolína i Prahy. Nemovitost se nachází na prostorném pozemku o celkové výměře 1 672 m², který tvoří dvě parcely o velikosti 1 117 m² (zastavěná plocha a nádvoří) a 555 m² (zahrada). Dům byl postaven v roce 1960 a je v původním stavu, což nabízí ideální příležitost k rekonstrukci dle vlastních představ. Dům byl obýván a je plně funkční. Obytná plocha domu činí přibližně 113 m².

Dispozice:
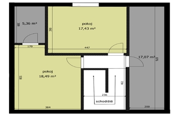
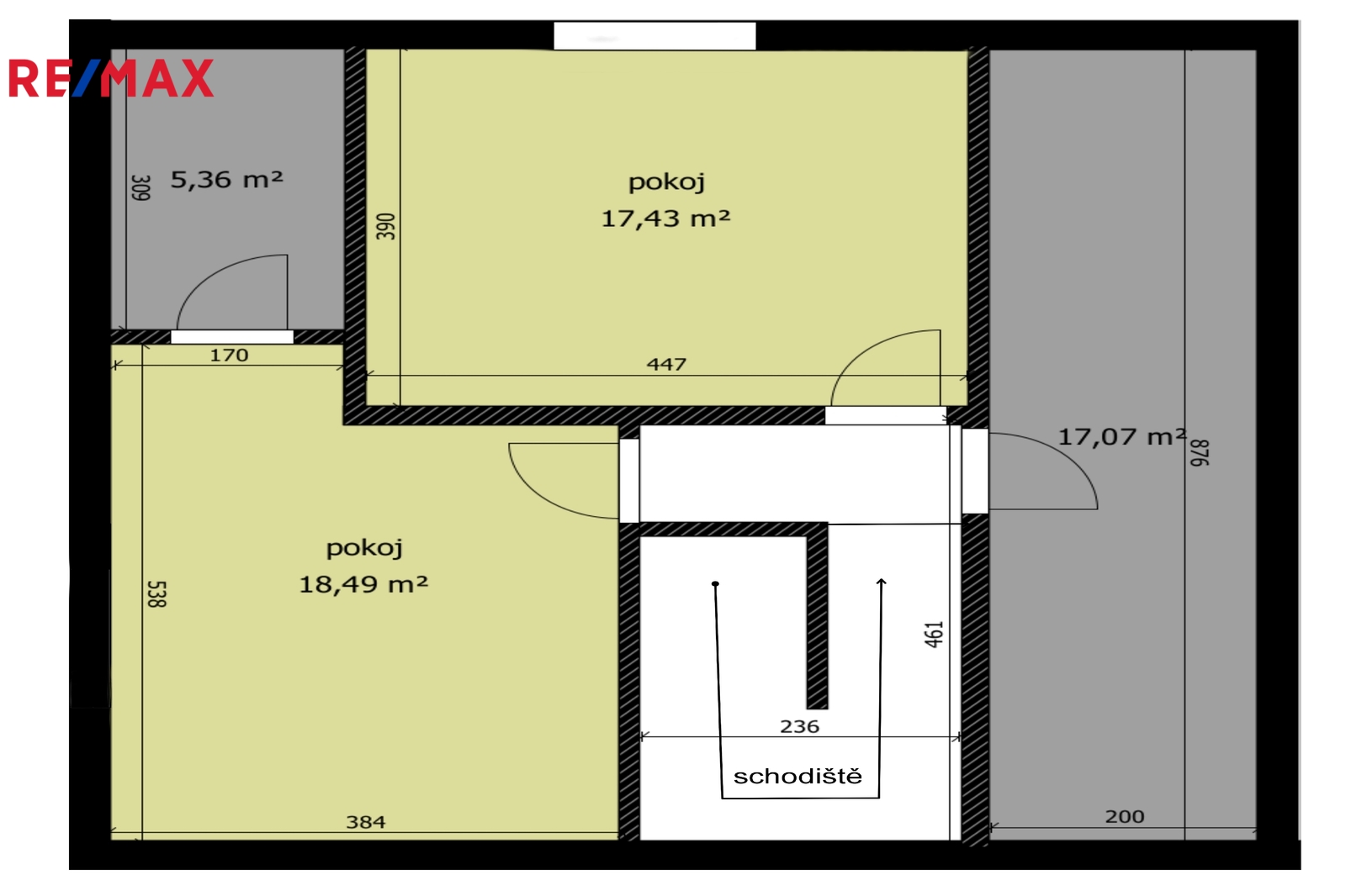
Přízemí: dva pokoje, kuchyň, chodba, koupelna, samostatné WC, zádveří
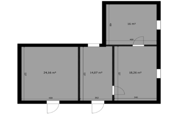
1. patro: dva pokoje, půdní prostor, který lze v rámci rekonstrukce dále využít.
V posledních letech proběhla výměna kotle, který slouží jako hlavní zdroj vytápění – dům má ústřední topení. V roce 2024 byly navíc instalovány dvě klimatizační jednotky ve dvou místnostech.

Na pozemku se dále nachází: garáž o výměře cca 23 m², původní vejminek s obytnou částí cca 48 m² (dva pokoje, kuchyň)
navazující bývalý chlév a skladovací prostory – ideální pro dílnu, sklad nebo další rozšíření obytného prostoru.
Zdrojem vody je kopaná studna, odpady jsou svedeny do jímky.
Nemovitost je vhodná jak k rodinnému bydlení, tak i k vícegeneračnímu využití, případně kombinaci bydlení a podnikání.
Velký pozemek nabízí dostatek soukromí, prostoru třeba pro zahradničení, relaxaci nebo i další stavby.
Pokud hledáte dům s potenciálem v klidné lokalitě a s výbornou dostupností do města, tato nabídka stojí za pozornost.
Pro více informací či sjednání prohlídky kontaktujte makléřku nabídky.
Cena:
5 500 000 CZK / za nemovitost
Poznámka k ceně:
Cena včetně provize a právních služeb.
Upozornění:
Prodávající si vyhrazuje právo vybrat kupujícího na základě jím zvolených kritérií.
RX finance

Spočítejte si splátku hypotéky

Na kolik vás vyjde pořízení vlastního bydlení? Zadejte pár informací do naší hypoteční kalkulačky a hned si prohlédněte výsledek.

Kupní cena nemovitosti

5 500 000 Kč

Výše hypotéky

Doba splácení

Vypočítaná měsíční splátka

Úroková sazba 3.6%

260 990 Kč

Hypotéku zařídíme za vás

Ušetřete svůj čas i nervy. Naši makléři zařídí veškeré papírování a dovedou vás až k úspěšnému podpisu smlouvy v bance.

Nechte nám kontakt, náš makléř se v pracovní dny ozve do 24 hodin

* – toto pole je nutné vyplnit
Marta Sýkorová
RE/MAX G8 Reality 4
Václavská 864
Kolín, 28002
Česká republika
Tel. na makléře: +420 720 704 593
Tel. do kanceláře: +420 603 392 333
E-mail: marta.sykorova@re-max.cz

Potřebujete poradit/máte zájem o prohlídku?

* – toto pole je nutné vyplnit

Podrobné informace

Číslo zakázky:
ID 059-NP07838
Poloha objektu:
Řadový
Počet podlaží v objektu:
2
Užitná plocha:
113 m²
Plocha parcely:
1 672 m²
Druh objektu:
Smíšená
Stav objektu:
Velmi dobrý
Typ nemovitosti:
Domy a vily
Elektřina:
230 V
Odpad:
Septik
Zastavěná plocha:
92 m²
Typ domu:
Přízemní
Energetická náročnost budovy:
G