Translate with 
MENU ZAVŘÍT

Prodej bytu 2+kk v osobním vlastnictví 72 m², Praha 2 - Vinohrady (ID 114-NP10556)

ulice Anny Letenské, Praha 2 – Vinohrady mapa

13 990 000 Kč ( za nemovitost)
GMimořádně
nehospodárná

kk
2x
72 m2
4/7
Exkluzivně

Prodej prostorného bytu 2kk P2 Vinohrady

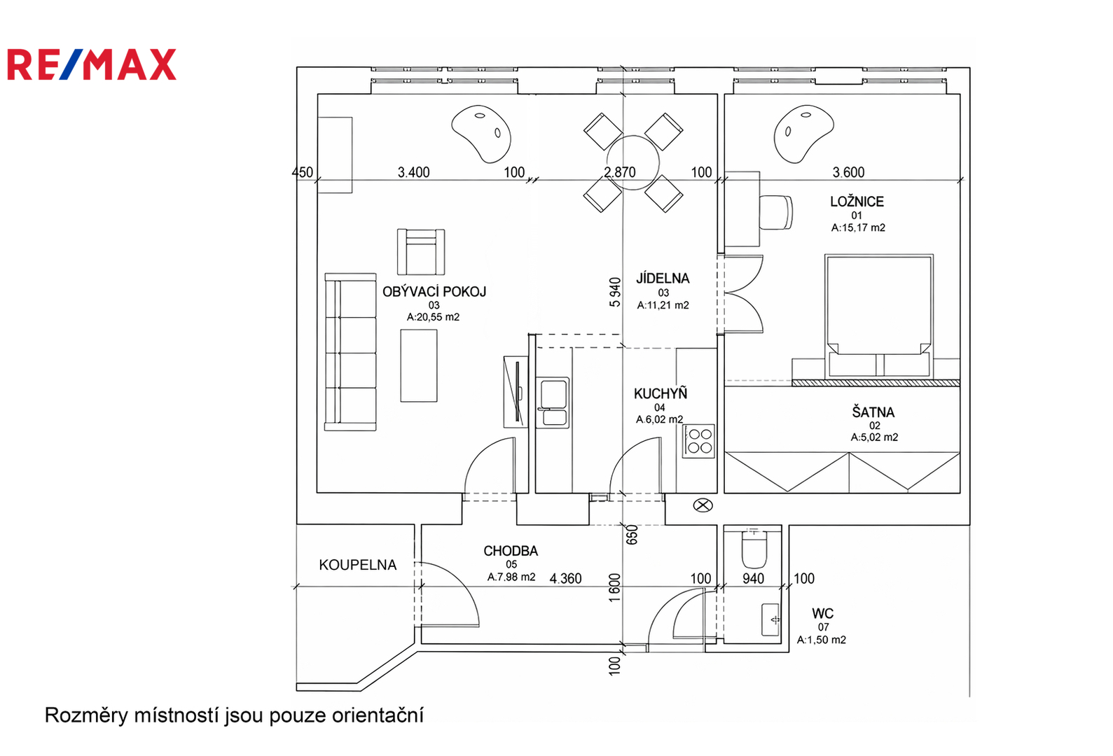
V srdci pražských Vinohrad, vedle Vinohradského divadla a v docházkové vzdálenosti od Riegrových sadů i samotného centra města, nabízím ke koupi prostorný světlý byt o dispozici 2+kk. Nemovitost se nachází ve 4. nadzemním podlaží udržovaného činžovního domu s výtahem.

Celková plocha bytu včetně příslušenství činí 71,6 m². Dispozice je velmi dobře navržená a působí vzdušným, příjemným dojmem. Dominantou bytu je obytný prostor s kuchyňským koutem o velikosti 14,9 m², který přirozeně navazuje na hlavní obytnou část o ploše 22,0 m². Druhý pokoj o výměře 21,2 m² slouží jako ložnice a jeho součástí je samostatný šatník, jenž výrazně zvyšuje komfort bydlení a nabízí dostatek úložného prostoru bez nutnosti dalšího úložného nábytku v interiéru.

Koupelna se sprchovým koutem má výměru 3,9 m², toaleta je řešena samostatně a disponuje plochou 1,4 m². Prostorná předsíň o velikosti 8,2 m² poskytuje dostatek místa pro vestavěné úložné řešení.

Byt prošel rekonstrukcí přibližně před 15 lety, včetně rozvodů elektřiny, vody a plynu. Vytápění i ohřev vody zajišťuje vlastní plynový kotel, což přináší nezávislost na centrálních dodávkách a zároveň umožňuje efektivní kontrolu provozních nákladů.

Součástí vlastnictví je spoluvlastnický podíl na společných částech domu a pozemku o velikosti 716/13530. K bytu náleží rovněž podíl na nebytovém prostoru – kosmetickém salonu v suterénu domu o celkové ploše 205,4 m², což představuje zajímavý prvek z pohledu dlouhodobé hodnoty nemovitosti.

Lokalita samotná patří k absolutní pražské špičce. Riegrovy sady jsou vzdálené jen několik minut chůze, v okolí je široká nabídka kaváren, restaurací, obchodů i služeb. Výborná je rovněž dopravní dostupnost – tramvajové zastávky i stanice metra jsou v pěší vzdálenosti a do centra Prahy se dostanete během několika minut. Výhodná je také blízkost Hlavního vlakového nádraží.

Byt je vhodný jak pro vlastní bydlení, tak i jako investiční příležitost k pronájmu. Kombinace atraktivní adresy, nadstandardní výměry, praktického šatníku, nového výtahu a jasně definovaných vlastnických vztahů z něj činí velmi zajímavou nabídku.

Nemovitost je možné hradit hypotéčním úvěrem, s jehož zajištěním Vám rádi pomůžou naši hypotéční specialisté.

Pokud vás tato nemovitost zaujala, ozvěte se mi a rád vás bytem osobně provedu.
Cena:
13 990 000 CZK / za nemovitost
Poznámka k ceně:
Upozornění:
Prodávající si vyhrazuje právo vybrat kupujícího na základě jím zvolených kritérií.
RX finance

Spočítejte si splátku hypotéky

Na kolik vás vyjde pořízení vlastního bydlení? Zadejte pár informací do naší hypoteční kalkulačky a hned si prohlédněte výsledek.

Kupní cena nemovitosti

13 990 000 Kč

Výše hypotéky

Doba splácení

Vypočítaná měsíční splátka

Úroková sazba 3.6%

260 990 Kč

Hypotéku zařídíme za vás

Ušetřete svůj čas i nervy. Naši makléři zařídí veškeré papírování a dovedou vás až k úspěšnému podpisu smlouvy v bance.

Nechte nám kontakt, náš makléř se v pracovní dny ozve do 24 hodin

* – toto pole je nutné vyplnit
Vladimír Rekl
RE/MAX Horizont
Třebešovská 2869/94
Praha 9 - Horní Počernice, 19300
Česká republika
Tel. na makléře: +420 602 141 471
Tel. do kanceláře: +420 733 149 056
E-mail: vladimir.rekl@re-max.cz

Potřebujete poradit/máte zájem o prohlídku?

* – toto pole je nutné vyplnit

Podrobné informace

Číslo zakázky:
ID 114-NP10556
Dispozice:
2+kk
Číslo podlaží:
4
Počet podlaží v objektu:
7
Podlahová plocha:
72 m²
Druh objektu:
Cihlová
Stav objektu:
Velmi dobrý
Vlastnictví:
Osobní
Typ nemovitosti:
Byty
Doprava:
Silnice, MHD
Elektřina:
230 V
Odpad:
Kanalizace
Užitná plocha:
72 m²
Zastavěná plocha:
289 m²
Plyn:
Plynovod
Umístění objektu:
Centrum obce
Voda:
Dálkový rozvod
Vybaveno:
Ano
Výtah:
Ano
Energetická náročnost budovy:
G