Translate with 
MENU ZAVŘÍT

Prodej bytu 4+1 v osobním vlastnictví 72 m², Mariánské Lázně (ID 270-NP00450)

ulice Kubelíkova, Mariánské Lázně – část obce Úšovice mapa

3 790 000 Kč ( za nemovitost)
DMéně
úsporná

1x
4x
81 m2
6/6
Exkluzivně Rezervace

Byt 4+1 s krásným výhledem do krajiny – poslední patro, lodžie

Občas se objeví byt, který není nutně dokonalý, ale dává smysl. Tento je jedním z nich.

Je to klasický panelový byt 4+1 v posledním patře domu v Úšovicích. A právě to poslední patro je jeho největší výhoda. Nad vámi už nikdo nebydlí a z oken je otevřený výhled směrem na plochou dráhu a okolní krajinu. Je to ten typ výhledu, který člověka večer uklidní. K bytu patří lodžie, takže si ten prostor a výhled můžete užít i venku.
Samotný byt je v původním stavu. Nečekejte moderní designový interiér z katalogu. Na druhou stranu je byt čistý, vymalovaný a udržovaný, takže se dá bez problémů hned nastěhovat a bydlet. A pak si postupně promýšlet, co a jak jednou upravit podle vlastních představ.

Prosíme o vyplnění KONTAKTNÍHO FORMULÁŘE v inzerci, díky tomu na Vás nezapomeneme při plánování prohlídek. Současně si můžete prohlédnout VIZUALIZACE a nechat se inspirovat. Možnosti FINANCOVÁNÍ vám rád nezávazně prověří náš finanční specialista. Pokud se rozhodnete řešit vše pod jednou střechou, celý proces je díky vzájemné koordinaci jednodušší a plynulejší.

Proč právě tento byt?
Pro někoho to může být vlastně ideální varianta. Nezačínat hned velkou rekonstrukcí, ale dát si čas a nejdříve prostor opravdu navnímat. Postupně plánovat modernizaci a současně si rozložit finanční zátěž. Panelový dům neznamená kompromis. Naopak nabízí široké možnosti úprav a velmi efektivní uspořádání.
Dům má nový výtah a bezbariérový přístup do domu, takže se do bytu pohodlně dostanete i s kočárkem nebo při každodenním nošení nákupů. Na střeše domu je navíc fotovoltaická elektrárna, díky které vychází odběr elektřiny pro jednotlivé byty levněji. V dnešní době je to příjemný bonus. Střecha je přibližně dva roky nová.

Perfektní lokalita pro rodinný život:
Úšovice jsou nejstarší část města Mariánské Lázně, kde se pohodlně žije. V okolí je dost zeleně a zároveň všechno, co rodina běžně potřebuje – mateřská škola, základní škola, hřiště, odpočinkový areál, přírodní park, obchod i autobusová zastávka. Děti tak nemusíte všude vozit autem. Pokud tedy hledáte větší byt pro rodinu, kde je dost prostoru, hezký výhled a možnost si bydlení časem upravit podle sebe, mohl by vás tento byt zaujmout. Kombinace dostupnosti, klidu a přírody patří k tomu nejdůležitějšímu, co při výběru bydlení rozhoduje.

Lokalita: Kubelíkova ulice, Úšovice, Mariánské Lázně
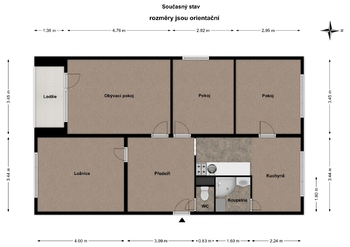
Výměra: rozpis výměr jednotlivých místností je uveden na půdorysu
Orientace: ložnice a obývací pokoj s lodžií - jih, prostřední pokoj - západ, kuchyně a vedlejší pokoj - sever Prodávající si vyhrazuje právo vybrat kupujícího na základě jím zvolených kritérií.
Cena:
3 790 000 CZK / Rezervováno
RX finance

Spočítejte si splátku hypotéky

Na kolik vás vyjde pořízení vlastního bydlení? Zadejte pár informací do naší hypoteční kalkulačky a hned si prohlédněte výsledek.

Kupní cena nemovitosti

3 790 000 Kč

Výše hypotéky

Doba splácení

Vypočítaná měsíční splátka

Úroková sazba 3.6%

260 990 Kč

Hypotéku zařídíme za vás

Ušetřete svůj čas i nervy. Naši makléři zařídí veškeré papírování a dovedou vás až k úspěšnému podpisu smlouvy v bance.

Nechte nám kontakt, náš makléř se v pracovní dny ozve do 24 hodin

* – toto pole je nutné vyplnit
Viktor Klein
RE/MAX Anděl 2
Sokolovská 564/51
Karlovy Vary, 36005
Česká republika
Tel. na makléře: +420 775 556 690
Tel. do kanceláře: +420 775 556 690
E-mail: viktor.klein@re-max.cz

Potřebujete poradit/máte zájem o prohlídku?

* – toto pole je nutné vyplnit

Podrobné informace

Číslo zakázky:
ID 270-NP00450
Dispozice:
4+1
Číslo podlaží:
6
Počet podlaží v objektu:
6
Užitná plocha:
72 m²
Druh objektu:
Panelová
Stav objektu:
Velmi dobrý
Vlastnictví:
Osobní
Typ nemovitosti:
Byty
Bezbariérový byt:
Ano
Charakter okolní zástavby:
Obytná
Doprava:
Vlak, Silnice, MHD, Autobus
Odpad:
Kanalizace
Podlahová plocha:
81 m²
Zastavěná plocha:
417 m²
Plyn:
Plynovod
Telekomunikace:
Internet
Umístění objektu:
Sídliště
Voda:
Dálkový rozvod
Výtah:
Ano
Energetická náročnost budovy:
D
Měrná vypočtená roční spotřeba energie v kWh/m²/rok:
142