Translate with 
MENU ZAVŘÍT

Pronájem bytu 3+kk v osobním vlastnictví 82 m², Praha 4 - Chodov (ID 205-NP12557)

ulice Dědinova, Praha 4 – Chodov mapa

32 000 Kč ( za měsíc)
BVelmi
úsporná

kk
3x
82 m2
5/8
Exkluzivně

Pronájem nově zrekonstruovaného bytu 3+kk, 82 m² s lodžií, Praha – Roztyly/Chodov

Nabízíme k pronájmu nadstandardně zrekonstruovaný byt 3+kk o celkové ploše 82 m² (včetně lodžie 7 m² a sklepa 4 m²), situovaný v 5. patře revitalizovaného domu s výtahem. Byt nabízí příjemný výhled, dostatek světla a budete jeho prvními nájemci po kompletní
rekonstrukci.

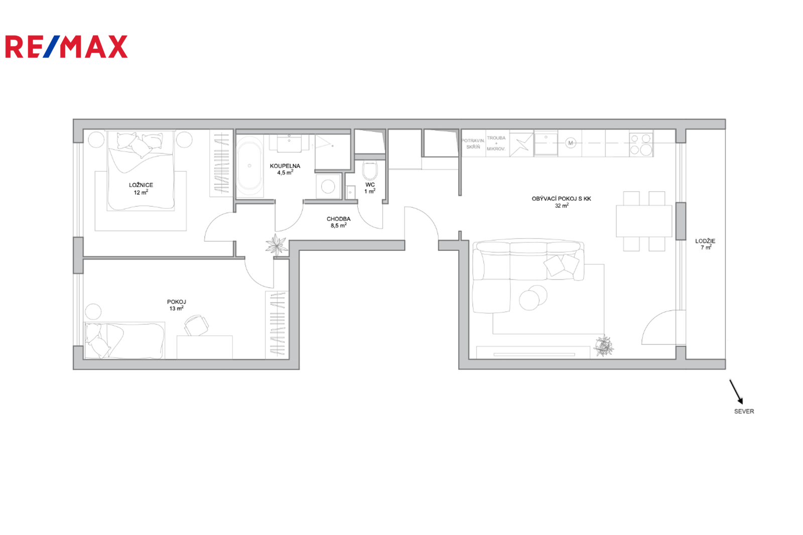
Dispozice a prostor
- Obývací pokoj s kuchyňským koutem: 32 m²
- Ložnice: 12 m²
- Ložnice: 13 m²
- Koupelna s vanou i sprchovým koutem: 4,5 m²
- Samostatné WC: 1 m²
- Prostorná vstupní chodba: 8,5 m²
- Lodžie: 7 m²
- Sklep: 4 m²

Dispozice je praktická a nabízí velkorysý obytný prostor i dvě plnohodnotné ložnice.

Kompletní rekonstrukce bez kompromisů
- Kuchyň na míru se spotřebiči (indukce, trouba, myčka, digestoř, dřez, osvětlení)
- Nové rozvody elektřiny v mědi
- Nové podlahy, omítky, interiérové dveře a zárubně
- Moderní koupelna s novou sanitou
- Podlahové vytápění v koupelně s digitálním termostatem
- Příprava na pračku i sušičku

Byt je dokončen – jedná se o reálné fotografie, ne vizualizaci.

Dům a okolí
Revitalizovaný, zateplený dům (energetická třída B), plastová okna se žaluziemi, upravené společné prostory a kamerový systém. Klidné a bezpečné bydlení pod správou fungujícího SVJ. Parkování možné přímo před domem (bez modrých zón).

Lokalita
Výborná dostupnost i občanská vybavenost:
- Nákupní centrum Westfield Chodov s nástupem na metro C do 7 minut pěšky (cca 500m)
- Kunratický les v bezprostřední blízkosti
- Škola i školka v okolí
- Rychlé napojení na městský okruh i centrum

Klidná rezidenční lokalita kombinující přírodu a město.

Podmínky
- Nájemné: 32 000 Kč / měsíc
- Zálohy na služby: 4 000 Kč / měsíc
- Elektřina se převádí na nájemce
- Kauce: 2 měsíční nájmy
- Provize RK: 1 nájem + DPH

K dispozici ihned

Pro více informací nebo domluvení prohlídky nás kontaktujte prostřednictvím formuláře.

(Majitel si vyhrazuje právo výběru nájemce dle svých kritérií. Uvedené výměry jsou orientační.)
Cena:
32 000 CZK / za měsíc
Poznámka k ceně:
nájemné + cca 4000,- Kč poplatky + elektřina na nájemce (cca 1200,- Kč)
Upozornění:
Pronajímající si vyhrazuje právo vybrat nájemce na základě jím zvolených kritérií.
Lubomír Boček
RE/MAX Alfa
Spálená 97/29
Praha 1 - Nové Město, 11000
Česká republika
Tel. na makléře: +420 704 797 751
Tel. do kanceláře: +420 296 240 400
E-mail: lubomir.bocek@re-max.cz

Potřebujete poradit/máte zájem o prohlídku?

* – toto pole je nutné vyplnit

Podrobné informace

Číslo zakázky:
ID 205-NP12557
Dispozice:
3+kk
Číslo podlaží:
5
Počet podlaží v objektu:
8
Podlahová plocha:
82 m²
Druh objektu:
Panelová
Stav objektu:
Po rekonstrukci
Vlastnictví:
Osobní
Typ nemovitosti:
Byty
Bezbariérový byt:
Ano
Charakter okolní zástavby:
Obytná
K nastěhování:
24. 2. 2026
Doprava:
Vlak, Dálnice, Silnice, MHD, Autobus
Elektřina:
230 V
Odpad:
Kanalizace
Užitná plocha:
82 m²
Počet podlaží pod zemí:
1
Telekomunikace:
Internet
Voda:
Dálkový rozvod
Výtah:
Ano
Energetická náročnost budovy:
B