Translate with 
MENU ZAVŘÍT

Prodej domu 115 m², Vranovice (ID 077-NP06970)

ulice Květná, Vranovice mapa

5 670 000 Kč ( za nemovitost)
GMimořádně
nehospodárná

4x
115 m2
760 m2
1
Exkluzivně

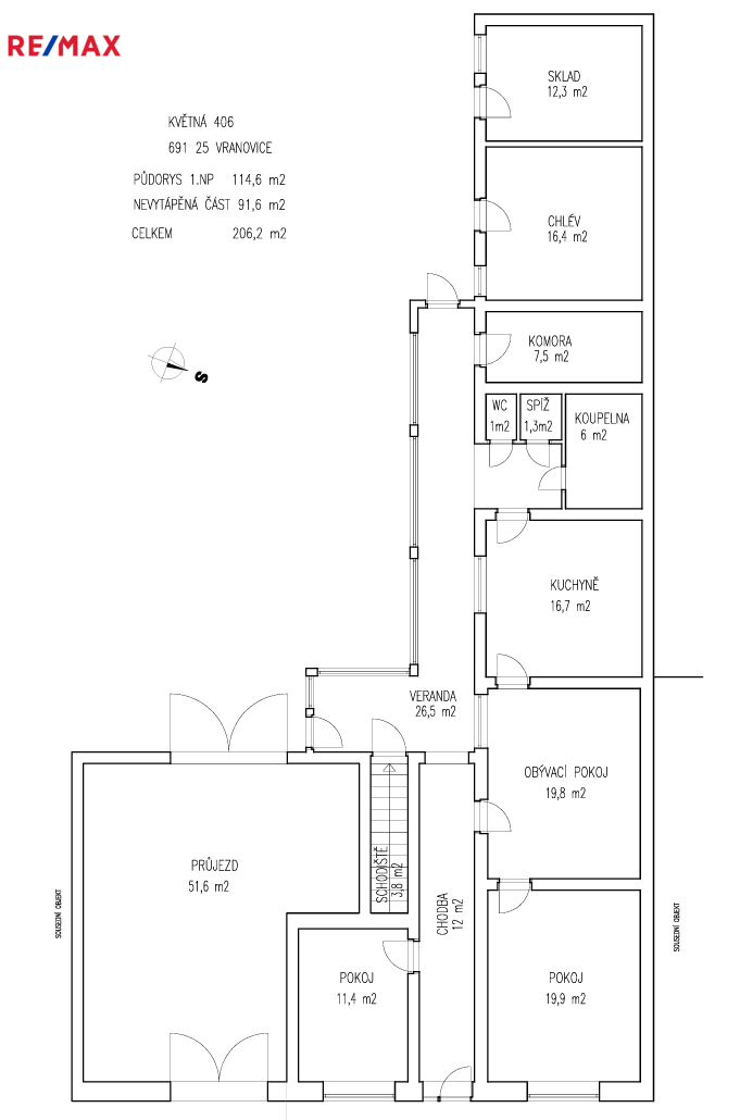
Rodinný dům 3+1 v obci Vranovice

Představujeme vám přízemní rodinný dům s duší, částečně podsklepený a zasazený do klidné řadové zástavby ve Vranovicích.
Dům pochází z roku 1945 a čeká na celkovou rekonstrukci, která mu vrátí život a umožní novým majitelům vytvořit si domov přesně podle svých představ.

Zděný průjezd vás zavede do dvorní části, kde se otevírá prostor pro vaše budoucí plány. Dispozice 3+1 zahrnuje kuchyň, útulný obývací pokoj, dva další pokoje, koupelnu, samostatnou toaletu, spíž, komoru a prosklenou verandu s výhledem do dvora. Oceníte také sklepní prostor přístupný přímo z verandy.

Na dvoře se nachází původní chlév a sklad, za nimiž se rozprostírá velká zahrada – ideální pro odpočinek, pěstování nebo rodinné zázemí.

Vranovice nabízejí výbornou dostupnost: autem jste v Brně přibližně za 30 minut, vlakem na hlavním nádraží za 20 minut. Obec disponuje kompletní občanskou vybaveností včetně škol, obchodů a služeb.
Je to místo pro ty, kteří hledají klid jižní Moravy, ale zároveň se nechtějí vzdát pohodlí města.

Ať už uvažujete o novém domově, rekreačním zázemí nebo investici, tato nemovitost vás příjemně překvapí. Doporučujeme osobní prohlídku.

V případě zájmu o prohlídku prosím kontaktujte makléře.
Jste‑li makléř, spolupráce je vítána.
Cena:
5 670 000 CZK / za nemovitost
Poznámka k ceně:
včetně provize RK a právních služeb
Upozornění:
Prodávající si vyhrazuje právo vybrat kupujícího na základě jím zvolených kritérií.
RX finance

Spočítejte si splátku hypotéky

Na kolik vás vyjde pořízení vlastního bydlení? Zadejte pár informací do naší hypoteční kalkulačky a hned si prohlédněte výsledek.

Kupní cena nemovitosti

5 670 000 Kč

Výše hypotéky

Doba splácení

Vypočítaná měsíční splátka

Úroková sazba 3.6%

260 990 Kč

Hypotéku zařídíme za vás

Ušetřete svůj čas i nervy. Naši makléři zařídí veškeré papírování a dovedou vás až k úspěšnému podpisu smlouvy v bance.

Nechte nám kontakt, náš makléř se v pracovní dny ozve do 24 hodin

* – toto pole je nutné vyplnit
Iveta Ritterová
RE/MAX Pro
Blatného 3
Brno, 61600
Česká republika
Tel. na makléře: +420 733 679 959
Tel. do kanceláře: +420 732 299 929
E-mail: iveta.ritterova@re-max.cz

Potřebujete poradit/máte zájem o prohlídku?

* – toto pole je nutné vyplnit

Podrobné informace

Číslo zakázky:
ID 077-NP06970
Poloha objektu:
Řadový
Počet podlaží v objektu:
1
Užitná plocha:
115 m²
Plocha parcely:
760 m²
Druh objektu:
Cihlová
Stav objektu:
Před rekonstrukcí
Typ nemovitosti:
Domy a vily
Charakter okolní zástavby:
Obytná
Doprava:
Vlak, Dálnice, Silnice, Autobus
Garáž:
Ano
Odpad:
Kanalizace
Plocha zahrady:
303 m²
Zastavěná plocha:
202 m²
Počet parkovacích míst:
1
Typ domu:
Přízemní
Umístění objektu:
Okraj obce
Voda:
Dálkový rozvod
Vybaveno:
Ano
Energetická náročnost budovy:
G
Měrná vypočtená roční spotřeba energie v kWh/m²/rok:
758