Translate with 
MENU ZAVŘÍT

Prodej bytu 2+1 v osobním vlastnictví 56 m², Karlovy Vary (ID 270-NP00454)

ulice Školní, Karlovy Vary – část obce Stará Role mapa

3 650 000 Kč ( za nemovitost)
CÚsporná

1x
2x
56 m2
1/5
Exkluzivně

Stará Role byt 2+1

Hledáte domov, kde se nebudete muset starat o opravy a kde vás bude každý den vítat hřejivé slunce? Máme pro vás nemovitost, která září ve všech směrech.
O BYTĚ:
Byt vyniká pro svou jihozápadní orientaci, díky které je neuvěřitelně světlý a vzdušný. Sluneční paprsky si užijete od poledne až po krásné západy slunce.
Kompletní modernizace: Nové rozvody elektřiny, vody i plynu. Koupelna po rekonstrukci.
Energetická úspora: Dům je zateplený v 9/25 a osazený novými tříkomorovými okny, která v kombinaci s JZ orientací drží teplo prakticky sama.
Lokalita: Skvělá dostupnost do centra K. Varů, přitom klid na bydlení.
Parkování bez stresu: Možnost parkování na 3 místech v bezprostřední blízkosti domu.
Proč chtít právě tento byt?
Protože spojuje technický klid (vše je nové) s psychickou pohodou (světlo a slunce). Ideální pro každého, kdo miluje prosvětlené interiéry a chce bydlet bez dalších investic.
Zavolejte a přijďte se podívat, jak sluníčko bytu sluší:
Cena:
3 650 000 CZK / za nemovitost
Poznámka k ceně:
Upozornění:
Prodávající si vyhrazuje právo vybrat kupujícího na základě jím zvolených kritérií.
RX finance

Spočítejte si splátku hypotéky

Na kolik vás vyjde pořízení vlastního bydlení? Zadejte pár informací do naší hypoteční kalkulačky a hned si prohlédněte výsledek.

Kupní cena nemovitosti

3 650 000 Kč

Výše hypotéky

Doba splácení

Vypočítaná měsíční splátka

Úroková sazba 3.6%

260 990 Kč

Hypotéku zařídíme za vás

Ušetřete svůj čas i nervy. Naši makléři zařídí veškeré papírování a dovedou vás až k úspěšnému podpisu smlouvy v bance.

Nechte nám kontakt, náš makléř se v pracovní dny ozve do 24 hodin

* – toto pole je nutné vyplnit
Dita Bartakovicsová
RE/MAX Anděl 2
Sokolovská 564/51
Karlovy Vary, 36005
Česká republika
Tel. na makléře: +420 739 498 482
Tel. do kanceláře: +420 775 556 690
E-mail: dita.bartakovicsova@re-max.cz

Potřebujete poradit/máte zájem o prohlídku?

* – toto pole je nutné vyplnit

Podrobné informace

Číslo zakázky:
ID 270-NP00454
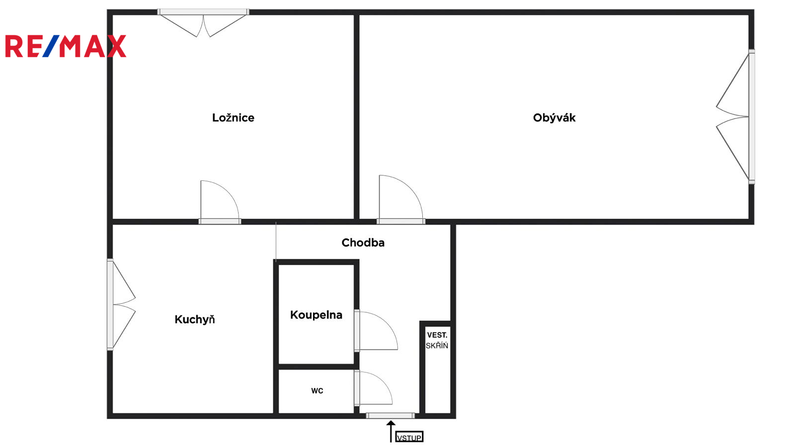
Dispozice:
2+1
Číslo podlaží:
1
Počet podlaží v objektu:
5
Podlahová plocha:
56 m²
Druh objektu:
Cihlová
Stav objektu:
Velmi dobrý
Vlastnictví:
Osobní
Typ nemovitosti:
Byty
Charakter okolní zástavby:
Obytná
K nastěhování:
1. 2. 2026
Elektřina:
230 V
Odpad:
Kanalizace
Užitná plocha:
56 m²
Zastavěná plocha:
409 m²
Plyn:
Plynovod
Počet podlaží pod zemí:
1
Telekomunikace:
Internet
Umístění objektu:
Centrum obce
Voda:
Dálkový rozvod
Vybaveno:
Ano
Energetická náročnost budovy:
C