Translate with 
MENU ZAVŘÍT

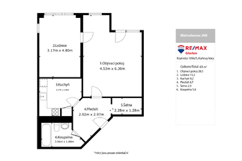
Prodej bytu 2+1 v osobním vlastnictví 63 m², Karlovy Vary (ID 294-NP01755)

ulice Blahoslavova, Karlovy Vary – část obce Drahovice mapa

4 400 000 Kč ( za nemovitost)
CÚsporná

1x
2x
66 m2
2/7
Exkluzivně

Moderní byt po kompletní rekonstrukci 2+1, 66 m² – Karlovy Vary, Drahovice, ul. Blahoslavova

Moderní byt po kompletní rekonstrukci s novým kotlem a nově vybudovaným komínem – připravený stát se vaším novým domovem bez dalších starostí.

V žádané části Drahovice, v ulici Blahoslavova, nabízíme k prodeji světlý byt o dispozici 2+1 a výměře 66 m², situovaný ve 2. patře domu s výtahem, v atraktivní lokalitě města Karlovy Vary.

Byt prošel důkladnou a kompletní rekonstrukcí. Byla vybudována nová koupelna se sprchovým koutem a toaletou, instalována nová sanita, položeny nové podlahy v celém bytě a modernizovány všechny povrchy. Součástí rekonstrukce je také instalace nového kotle a zcela nového komínu, což zajišťuje efektivní a bezpečné vytápění.

Interiér je připraven k dokončení dle vašich představ – kuchyň, vestavěný nábytek i celkové vybavení si můžete zvolit přesně podle svého vkusu.

Navíc vám rádi zajistíme služby interiérového designéra, který s vámi připraví návrh bytu podle vašich požadavků a životního stylu. Součástí může být kompletní realizace kuchyňské linky, výběr a dodání nábytku i koordinace celé realizace, takže se můžete nastěhovat do hotového, plně funkčního domova bez starostí.

Dům je napojen na veškeré inženýrské sítě (voda, kanalizace, plyn) a je vybaven výtahem. Samozřejmostí je bezbariérový vstup do domu i do bytu, který zajišťuje pohodlný přístup pro každého. K dispozici je také možnost pronájmu parkovacího stání v garáži.

Dispozice bytu zahrnuje:

-prostornou předsíň se šatnou

-velký obývací pokoj

-ložnici s dostatkem prostoru pro manželskou postel i úložné řešení

-samostatnou kuchyň s možností realizace dle vlastního návrhu

-koupelnu se sprchovým koutem a toaletou

-sklepní kóji náležející k bytu

Drahovice patří mezi nejvyhledávanější části Karlových Varů. V docházkové vzdálenosti se nachází zastávky MHD, obchody, školy, školky i zdravotnická zařízení. Lokalita nabízí výbornou dostupnost do centra města a zároveň klidné prostředí pro pohodlné bydlení.

Tento byt představuje ideální kombinaci kvalitní rekonstrukce, moderního technického zázemí a možnosti vytvořit si domov přesně podle svých představ s naší plnou podporou od návrhu až po realizaci. Prodávající si vyhrazuje právo vybrat kupujícího na základě jím zvolených kritérií.
Cena:
4 400 000 CZK / za nemovitost
RX finance

Spočítejte si splátku hypotéky

Na kolik vás vyjde pořízení vlastního bydlení? Zadejte pár informací do naší hypoteční kalkulačky a hned si prohlédněte výsledek.

Kupní cena nemovitosti

4 400 000 Kč

Výše hypotéky

Doba splácení

Vypočítaná měsíční splátka

Úroková sazba 3.6%

260 990 Kč

Hypotéku zařídíme za vás

Ušetřete svůj čas i nervy. Naši makléři zařídí veškeré papírování a dovedou vás až k úspěšnému podpisu smlouvy v bance.

Nechte nám kontakt, náš makléř se v pracovní dny ozve do 24 hodin

* – toto pole je nutné vyplnit
Alexandr Mizjuk
REMAX Glorion
Krymská 1056/5
Karlovy Vary, 36001
Česká republika
Tel. na makléře: +420 776 395 579
Tel. do kanceláře: +420 776 395 579
E-mail: alexandr.mizjuk@re-max.cz

Potřebujete poradit/máte zájem o prohlídku?

* – toto pole je nutné vyplnit

Podrobné informace

Číslo zakázky:
ID 294-NP01755
Dispozice:
2+1
Číslo podlaží:
2
Počet podlaží v objektu:
7
Užitná plocha:
63 m²
Druh objektu:
Cihlová
Stav objektu:
Po rekonstrukci
Vlastnictví:
Osobní
Typ nemovitosti:
Byty
Bezbariérový byt:
Ano
Doprava:
Dálnice, Silnice, MHD, Autobus
Elektřina:
230 V
Odpad:
Kanalizace
Ostatní rozvody:
Satelit
Podlahová plocha:
66 m²
Plyn:
Plynovod
Počet podlaží pod zemí:
2
Telekomunikace:
Telefon, Internet
Umístění objektu:
Klidná část obce
Voda:
Dálkový rozvod
Výtah:
Ano
Energetická náročnost budovy:
C