Translate with 
MENU ZAVŘÍT

Pronájem bytu 2+1 v osobním vlastnictví 72 m², Praha 10 - Vršovice (ID 020-NP10870)

ulice Na louži, Praha 10 – Vršovice mapa

29 000 Kč ( za měsíc)
CÚsporná

1x
2x
72 m2
3/4

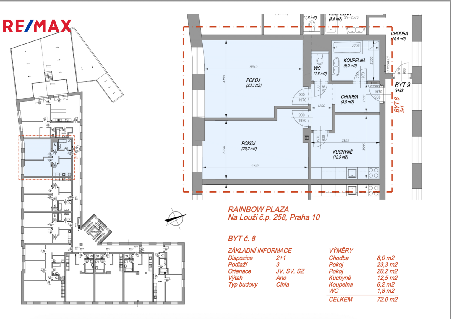
K pronájmu: světlý byt 2+1 (72,0 m²) – Praha 10, Vršovice – Byt č. 8

Nabízíme k pronájmu světlý byt 2+1 o velikosti 72,0 m², který se nachází ve 3. patře moderní cihlové novostavby s výtahem v projektu Rainbow Plaza. Dispozici tvoří dva pokoje (23,3 m² a 20,2 m²), kuchyně (12,5 m²), koupelna (6,2 m²), samostatná toaleta (1,8 m²) a chodba (8,0 m²).

Byt má jedinečnou trojstrannou orientaci – jihovýchod, severovýchod a severozápad – díky čemuž je výjimečně prosvětlený a působí velmi vzdušně. Praktické dispoziční řešení z něj dělá ideální domov pro rodinu, pár i jednotlivce, kteří hledají byt s dostatkem prostoru a možností různorodého využití.

Parkování je možné u domu za 1 500 Kč/měsíc. Lokalita nabízí kompletní občanskou vybavenost, obchody, restaurace i školy. Výborné spojení do centra zajišťuje tramvajová zastávka Bohemians, volnočasové vyžití pak parky Havlíčkovy sady a Bohdalecký les.

Poplatky 700 Kč na osobu.
Elektřina se převádí na nájemce. Internet je k dispozici za 200 Kč/měsíc. Vratná kauce činí dva nájmy. Provize realitní kanceláře je ve výši jednoho nájmu + DPH.
Cena:
29 000 CZK / za měsíc
Poznámka k ceně:
Upozornění:
Pronajímající si vyhrazuje právo vybrat nájemce na základě jím zvolených kritérií.
Martin Malicher
RE/MAX G8 Reality
Rohanské nábřeží 678/27
Praha 8 - Karlín, 18600
Česká republika
Tel. na makléře: +420 702 127 832
Tel. do kanceláře: +420 703 180 388
E-mail: martin.malicher@re-max.cz

Potřebujete poradit/máte zájem o prohlídku?

* – toto pole je nutné vyplnit

Podrobné informace

Číslo zakázky:
ID 020-NP10870
Dispozice:
2+1
Číslo podlaží:
3
Počet podlaží v objektu:
4
Podlahová plocha:
72 m²
Druh objektu:
Cihlová
Stav objektu:
Novostavba
Vlastnictví:
Osobní
Typ nemovitosti:
Byty
Bezbariérový byt:
Ano
K nastěhování:
1. 9. 2025
Doprava:
Vlak, Dálnice, Silnice, MHD, Autobus
Elektřina:
230 V
Odpad:
Kanalizace
Ostatní rozvody:
Satelit, Kabelová televize, Kabelové rozvody, Ostatní rozvody
Užitná plocha:
72 m²
Zastavěná plocha:
1 040 m²
Telekomunikace:
Telefon, Internet
Voda:
Dálkový rozvod
Vybaveno:
Ano
Výtah:
Ano
Energetická náročnost budovy:
C