Translate with 
MENU ZAVŘÍT

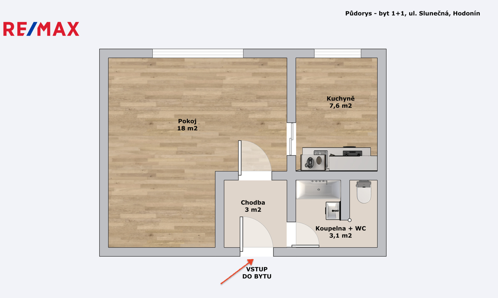
Pronájem bytu 1+1 v osobním vlastnictví 32 m², Hodonín (ID 268-NP03516)

ulice Slunečná, Hodonín mapa

10 500 Kč ( za měsíc)
GMimořádně
nehospodárná

1x
1x
32 m2
4/9
Exkluzivně

Pronájem bytu 1+1,32m2, Hodonín ul.Slunečná

Hledáte útulné, světlé bydlení, kam si stačí přinést jen osobní věci a zařídit si ho nábytkem přesně podle svých představ?
Cena:
10 500 CZK / za měsíc
Poznámka k ceně:
Upozornění:
Pronajímající si vyhrazuje právo vybrat nájemce na základě jím zvolených kritérií.
Lenka Šomanová
RE/MAX Delux
Křenová 538/22
Brno, 60200
Česká republika
Tel. na makléře: +420 603 285 848
Tel. do kanceláře: +420 602 703 897
E-mail: lenka.somanova@re-max.cz

Potřebujete poradit/máte zájem o prohlídku?

* – toto pole je nutné vyplnit

Podrobné informace

Číslo zakázky:
ID 268-NP03516
Dispozice:
1+1
Číslo podlaží:
4
Počet podlaží v objektu:
9
Podlahová plocha:
32 m²
Druh objektu:
Panelová
Stav objektu:
Velmi dobrý
Vlastnictví:
Osobní
Typ nemovitosti:
Byty
Charakter okolní zástavby:
Obchodní a obytná
K nastěhování:
27. 2. 2026
Doprava:
Vlak, Silnice, Autobus
Elektřina:
120 V, 230 V
Odpad:
Kanalizace
Užitná plocha:
32 m²
Zastavěná plocha:
473 m²
Plyn:
Plynovod
Umístění objektu:
Sídliště
Voda:
Dálkový rozvod
Vybaveno:
Ano
Výtah:
Ano
Energetická náročnost budovy:
G