Translate with 
MENU ZAVŘÍT

Prodej domu 200 m², Roztoky (ID 205-NP12581)

ulice Zaorálkova, Roztoky mapa

15 490 000 Kč ( za nemovitost)
GMimořádně
nehospodárná

5+
200 m2
871 m2
2
Exkluzivně

Prodej rodinného domu, 200m2 Zaorálkova, Roztoky

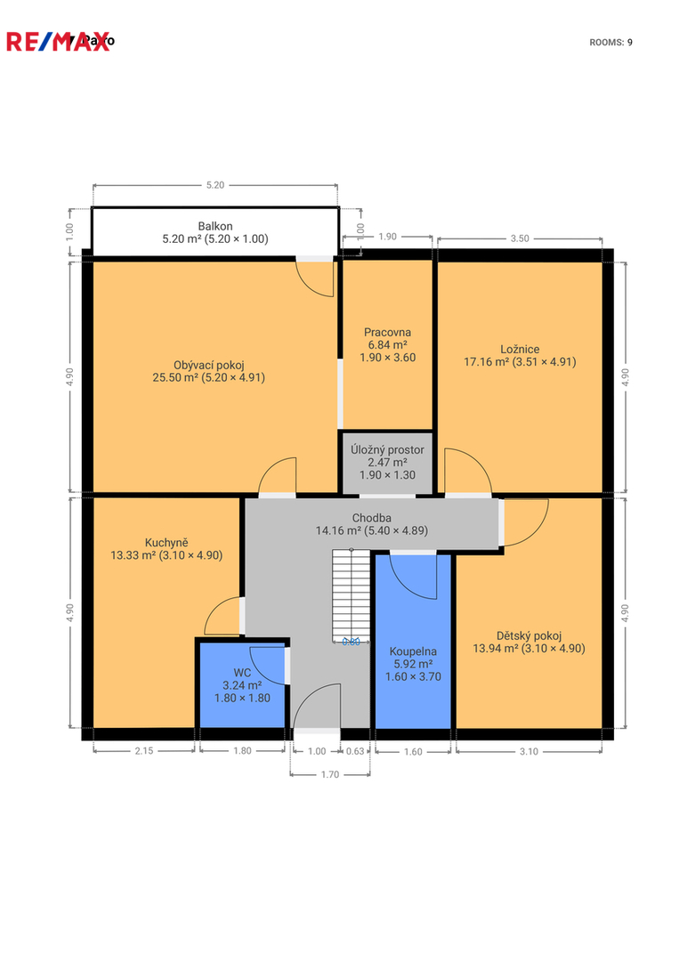
Prostorný rodinný dům 5+1 se zahradou v Roztokách u Prahy, ul. Zaorálkova

Nabízím k prodeji velkorysý rodinný dům o dispozici 5+1 s užitnou plochou 200 m² a pozemkem o rozloze 753 m². Nemovitost se nachází v klidné rezidenční části Roztok u Prahy, v ulici Zaorálkova, v původní zástavbě se vzrostlou zelení a výbornou dostupností do centra Prahy.

Dispozice domu:

Přízemí: prostorná garáž, dva pokoje, koupelna, sklad

1. patro: velký obývací pokoj s balkonem, ložnice, dětský pokoj, samostatná kuchyň, pracovna, koupelna, WC

Podkroví: připraveno pro vybudování dalších obytných místností

Další vybavení a stav:

Topení: plynový kotel + kotel na tuhá paliva

Nová střecha, plastová okna v 1. patře a podkroví

Na pozemku: zděný kurník, dřevěná kůlna a udírna

Velká zahrada s vzrostlými stromy

Lokalita:
Roztoky patří mezi nejvyhledávanější lokality v těsné blízkosti Prahy. Město nabízí veškerou občanskou vybavenost – školy, školky, zdravotnická zařízení, obchody, restaurace, sportovní a kulturní vyžití. Nedaleko domu se nachází supermarket Tesco a další obchody. Spojení s Prahou je rychlé a pohodlné, ať už autem či veřejnou dopravou.

Výhody nemovitosti:

Velkorysá dispozice 5+1 s možností rozšíření

Klidná a atraktivní lokalita u Prahy

Prostorná zahrada se zázemím

Výborný stav domu po částečných rekonstrukcích

Nemovitost je možné financovat hypotečním úvěrem, se kterým vám rádi pomůžeme.

✅ Poloha a dostupnost

Bezprostřední blízkost Prahy – pár minut autem nebo vlakem (Masarykovo či Dejvické nádraží cca 15–20 min).

Rychlé napojení na pražský okruh a hlavní silniční tahy.

Výborná dopravní obslužnost – vlak, autobus, MHD do Prahy.

✅ Klidné prostředí a příroda

Přímý vstup do Tichého údolí a přírodní rezervace Únětický potok – ideální na procházky, cyklistiku či běh.

Bohatá zeleň, zahrady a vzrostlé stromy přímo v zástavbě.

Možnost rekreace u Vltavy.

✅ Občanská vybavenost

Školy a školky – vynikající úroveň, včetně gymnázia.

Zdravotní služby – poliklinika, lékaři i veterinární péče.

Široká nabídka obchodů – Tesco, menší potraviny, drogerie, restaurace, kavárny.

Kultura – knihovna, společenské akce, festivaly.

Sport – fotbal, tenis, volejbal, sportovní haly, cyklostezky.

✅ Komunita a rozvoj

Tradičně vyhledávaná rezidenční lokalita pro rodiny i jednotlivce, kteří chtějí klid, ale zároveň snadný kontakt s Prahou.

Dynamický rozvoj města – nové služby, infrastruktura, moderní výstavba.

Přátelská atmosféra menšího města.

Ohledně prohlídky a dalších informací mě neváhejte kontaktovat.
Cena:
15 490 000 CZK / za nemovitost
Poznámka k ceně:
Upozornění:
Prodávající si vyhrazuje právo vybrat kupujícího na základě jím zvolených kritérií.
RX finance

Spočítejte si splátku hypotéky

Na kolik vás vyjde pořízení vlastního bydlení? Zadejte pár informací do naší hypoteční kalkulačky a hned si prohlédněte výsledek.

Kupní cena nemovitosti

15 490 000 Kč

Výše hypotéky

Doba splácení

Vypočítaná měsíční splátka

Úroková sazba 3.6%

260 990 Kč

Hypotéku zařídíme za vás

Ušetřete svůj čas i nervy. Naši makléři zařídí veškeré papírování a dovedou vás až k úspěšnému podpisu smlouvy v bance.

Nechte nám kontakt, náš makléř se v pracovní dny ozve do 24 hodin

* – toto pole je nutné vyplnit
Michael Plaček
RE/MAX Alfa
Spálená 97/29
Praha 1 - Nové Město, 11000
Česká republika
Tel. na makléře: +420 777 889 139
Tel. do kanceláře: +420 296 240 400
E-mail: michael.placek@re-max.cz

Potřebujete poradit/máte zájem o prohlídku?

* – toto pole je nutné vyplnit

Podrobné informace

Číslo zakázky:
ID 205-NP12581
Poloha objektu:
Samostatný
Počet podlaží v objektu:
2
Užitná plocha:
200 m²
Plocha parcely:
871 m²
Druh objektu:
Smíšená
Stav objektu:
Dobrý
Typ nemovitosti:
Domy a vily
Charakter okolní zástavby:
Obytná
Elektřina:
230 V
Garáž:
Ano
Odpad:
Kanalizace
Plocha zahrady:
753 m²
Zastavěná plocha:
118 m²
Plyn:
Plynovod
Počet podlaží pod zemí:
1
Telekomunikace:
Internet
Typ domu:
Patrový
Umístění objektu:
Klidná část obce
Voda:
Zdroj pro celý objekt, Dálkový rozvod
Vybaveno:
Ano
Energetická náročnost budovy:
G