Translate with 
MENU ZAVŘÍT

Prodej domu 249 m², Praha 8 - Kobylisy (ID 096-NP05826)

ulice Klapkova, Praha 8 – Kobylisy mapa

21 999 000 Kč ( za nemovitost)
GMimořádně
nehospodárná

1x
249 m2
460 m2
2
Exkluzivně

Prodej rodinného domu s širším spektrem využití na Praze 8, ul. Klapkova.

Ve výhradním zastoupení majitele si vám dovolujeme nabídnout cihlový rodinný dům s širším spektrem využití o celkové ploše cca 437 m² s pozemkem o výměře 477 m² v pražské části Kobylisy, ul. Klapkova, Praha 8.

Dle územní ho plánu lze nemovitost adaptovat na následující:
- Stavby pro bydlení, byty v nebytových domech.
- Drobná nerušící výroba a služby
- Všestranné komerční využití
- Restaurace (aktuální stav)

Dům je rozdělen do dvou pater:

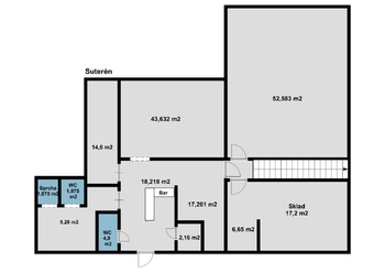
1. nadzemní podlaží čítá plochu 249 m² -- nachází se zde plně vybavená restaurace vč. 1 bytové jednotky.
Suterén čítá plochu 188 m².

Vytápění je zde řešeno plynovým kotlem, který je rozveden do všech radiátorů. Dále jsou zde 3x kamna na tuhá paliva.
Ohřev vody je řešen 2x el. boilerem.

Nemovitost se prodává kompletně vybavená, tak jak je zachycena na fotografií a je připravena k okamžitému předání.

Lokalita nabízí kompletní občanskou vybavenost. Velkou výhodou je výborné tramvajové a autobusové spojení. Stanice metra C – Kobylisy je vzdálená 15 min chůzí. V pěší dostupnosti se nachází Ďáblický háj a Čimický háj.

S financováním vám moc rádi pomůžeme.
Pro více informací nás neváhejte kontaktovat.
Cena:
21 999 000 CZK / za nemovitost
Poznámka k ceně:
Upozornění:
Prodávající si vyhrazuje právo vybrat kupujícího na základě jím zvolených kritérií.
RX finance

Spočítejte si splátku hypotéky

Na kolik vás vyjde pořízení vlastního bydlení? Zadejte pár informací do naší hypoteční kalkulačky a hned si prohlédněte výsledek.

Kupní cena nemovitosti

21 999 000 Kč

Výše hypotéky

Doba splácení

Vypočítaná měsíční splátka

Úroková sazba 3.6%

260 990 Kč

Hypotéku zařídíme za vás

Ušetřete svůj čas i nervy. Naši makléři zařídí veškeré papírování a dovedou vás až k úspěšnému podpisu smlouvy v bance.

Nechte nám kontakt, náš makléř se v pracovní dny ozve do 24 hodin

* – toto pole je nutné vyplnit
Jan Hart
RE/MAX Diamond
Samcova 1177/1
Praha 1 - Nové Město, 11000
Česká republika
Tel. na makléře: +420 734 113 965
Tel. do kanceláře: +420 224 247 291
E-mail: jan.hart@re-max.cz

Potřebujete poradit/máte zájem o prohlídku?

* – toto pole je nutné vyplnit

Podrobné informace

Číslo zakázky:
ID 096-NP05826
Poloha objektu:
Řadový
Počet podlaží v objektu:
2
Užitná plocha:
249 m²
Plocha parcely:
460 m²
Druh objektu:
Cihlová
Stav objektu:
Velmi dobrý
Typ nemovitosti:
Domy a vily
Charakter okolní zástavby:
Obytná
Doprava:
MHD
Odpad:
Kanalizace
Zastavěná plocha:
460 m²
Plyn:
Plynovod
Počet podlaží pod zemí:
1
Typ domu:
Patrový
Voda:
Dálkový rozvod
Vybaveno:
Ano
Energetická náročnost budovy:
G