Translate with 
MENU ZAVŘÍT

Pronájem jiných prostor 258 m², Bystřice (ID 176-NP01652)

Bystřice – část obce Radošovice mapa

57 000 Kč ( za měsíc)
GMimořádně
nehospodárná

258 m2
Exkluzivně

Pronájem komerční nemovitosti 258m2, Bystřice - Radošovice

Exkluzivně nabízím k pronájmu krásné a reprezentativní komerční prostory o celkové užitné ploše 258 m², které se nacházejí v nově zrekonstruovaném kamenném objektu v malebné venkovské lokalitě na jihu Středočeského kraje, pouhých 5 minut od Benešova a velmi snadno dostupné z Prahy. Objekt leží přibližně 500 metrů od hlavní silnice č. I/3 směrem na Tábor.

Do místa je ideální doprava autem, avšak u hlavní silnice se nachází také autobusová zastávka, kde zastavují dálkové spoje i autobusy PID jezdící z Prahy. Cesta autobusem z Prahy trvá přibližně 45 minut, což činí tuto lokalitu překvapivě dobře dostupnou i pro dojíždějící.

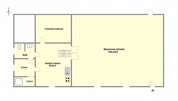
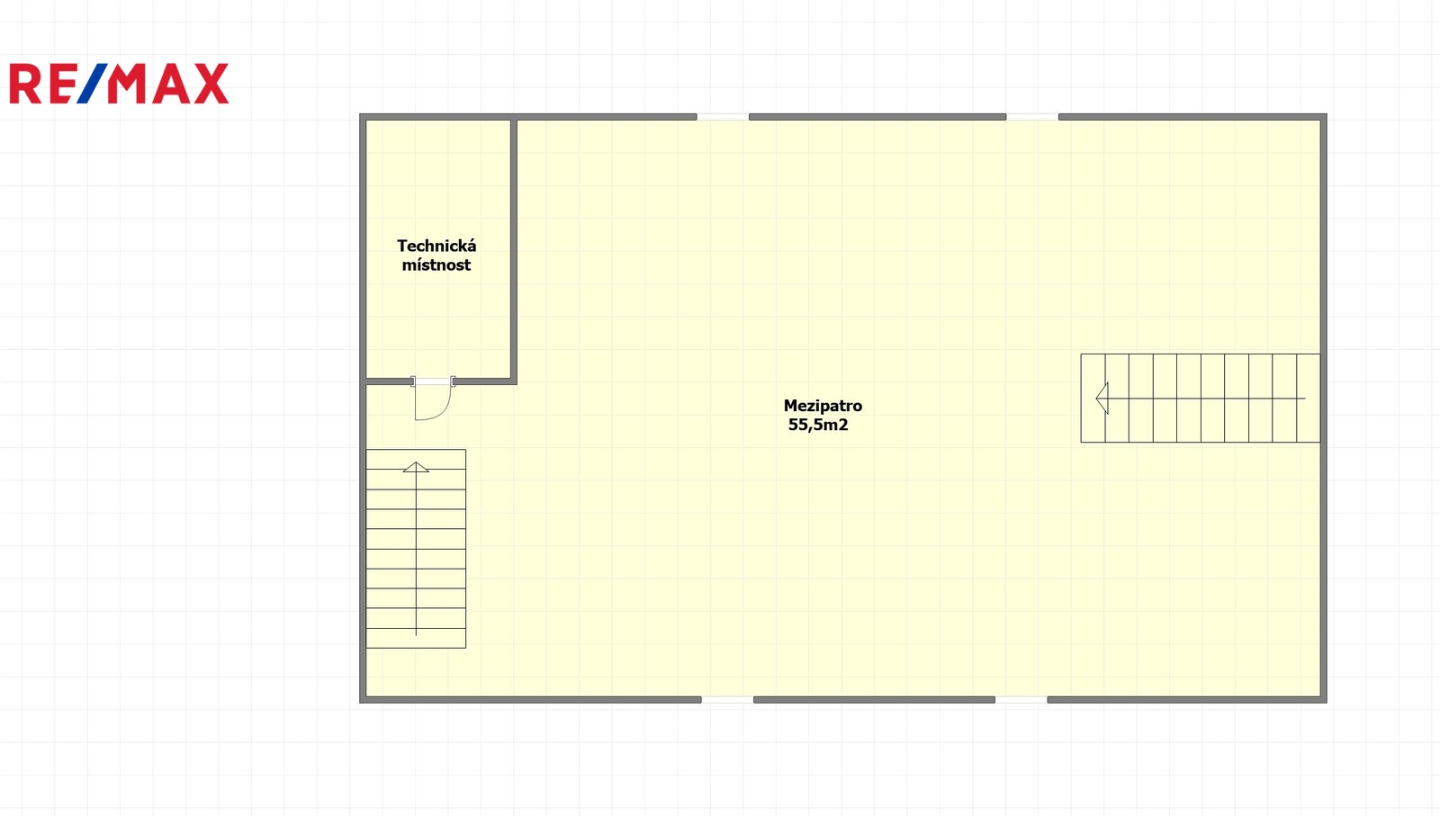
Samotné prostory se rozkládají ve třech nadzemních podlažích a nabízejí široké možnosti využití. Součástí je prostorný showroom vhodný pro prezentaci produktů nebo služeb, dále zázemí pro zaměstnance, kuchyňka a sprcha. Prostory jsou nezařízené, což umožňuje budoucímu nájemci upravit si interiér podle svých potřeb a charakteru podnikání. Vytápění je kombinované – podlahové vytápění doplněné radiátory zajišťuje celoroční komfort. Objekt je vybaven zabezpečovacím alarmem a protipožární ochranou.

Budova samotná prošla kompletní a velmi citlivou rekonstrukcí. Kamenné zdivo, nová střešní krytina, upravené okolí a celkový styl stavby vytvářejí mimořádně reprezentativní zázemí, které působí elegantně, profesionálně a zaujme každou návštěvu. Součástí areálu je osm vyhrazených parkovacích míst přímo u objektu, což je velkou výhodou pro zaměstnance i klienty.

Prostory jsou vhodné například pro showroom, kanceláře, architektonické či designérské studio, ateliér, služby, vzdělávací centrum nebo jako prestižní sídlo společnosti. Díky klidnému prostředí, reprezentativní atmosféře a výborné dostupnosti jde o jedinečnou nabídku v rámci regionu.

Měsíční náklady činí 20 000 Kč. Při podpisu smlouvy se hradí nájemné na první měsíc a jistota ve výši jednoho měsíčního nájmu, tedy celkem 114 000 Kč.

Výhradní zastoupení majitele vám dává jistotu hladkého a bezpečného průběhu celé transakce.
Cena:
57 000 CZK / za měsíc
Poznámka k ceně:
Plus náklady na energie a zabezpečení 20.000 Kč
Upozornění:
Pronajímající si vyhrazuje právo vybrat nájemce na základě jím zvolených kritérií.
Iva Kovaľová
RE/MAX Drive
Tyršova 194
Benešov, 25601
Česká republika
Tel. na makléře: +420 602 290 436
Tel. do kanceláře: +420 605 233 760
E-mail: iva.kovalova@re-max.cz

Potřebujete poradit/máte zájem o prohlídku?

* – toto pole je nutné vyplnit

Podrobné informace

Číslo zakázky:
ID 176-NP01652
Typ nemovitosti:
Komerční prostory
Druh prostor:
Jiné
Počet podlaží v objektu:
4
Plocha kanceláří:
258 m²
Druh objektu:
Smíšená
Stav objektu:
Po rekonstrukci
Charakter okolní zástavby:
Venkovská
K nastěhování:
1. 3. 2026
Doprava:
Silnice, Autobus
Ostatní rozvody:
Kabelové rozvody
Celková plocha:
258 m²
Počet parkovacích míst:
8
Počet podlaží pod zemí:
1
Rok rekonstrukce:
2020
Typ domu:
Patrový
Umístění objektu:
Klidná část obce
Energetická náročnost budovy:
G