Translate with 
MENU ZAVŘÍT

Prodej bytu 4+1 v osobním vlastnictví 131 m², Praha 7 - Holešovice (ID 228-NP02437)

ulice Nad štolou, Praha 7 – Holešovice mapa

24 000 000 Kč ( za nemovitost)
FVelmi
nehospodárná

1x
4x
149 m2
3/6
Exkluzivně

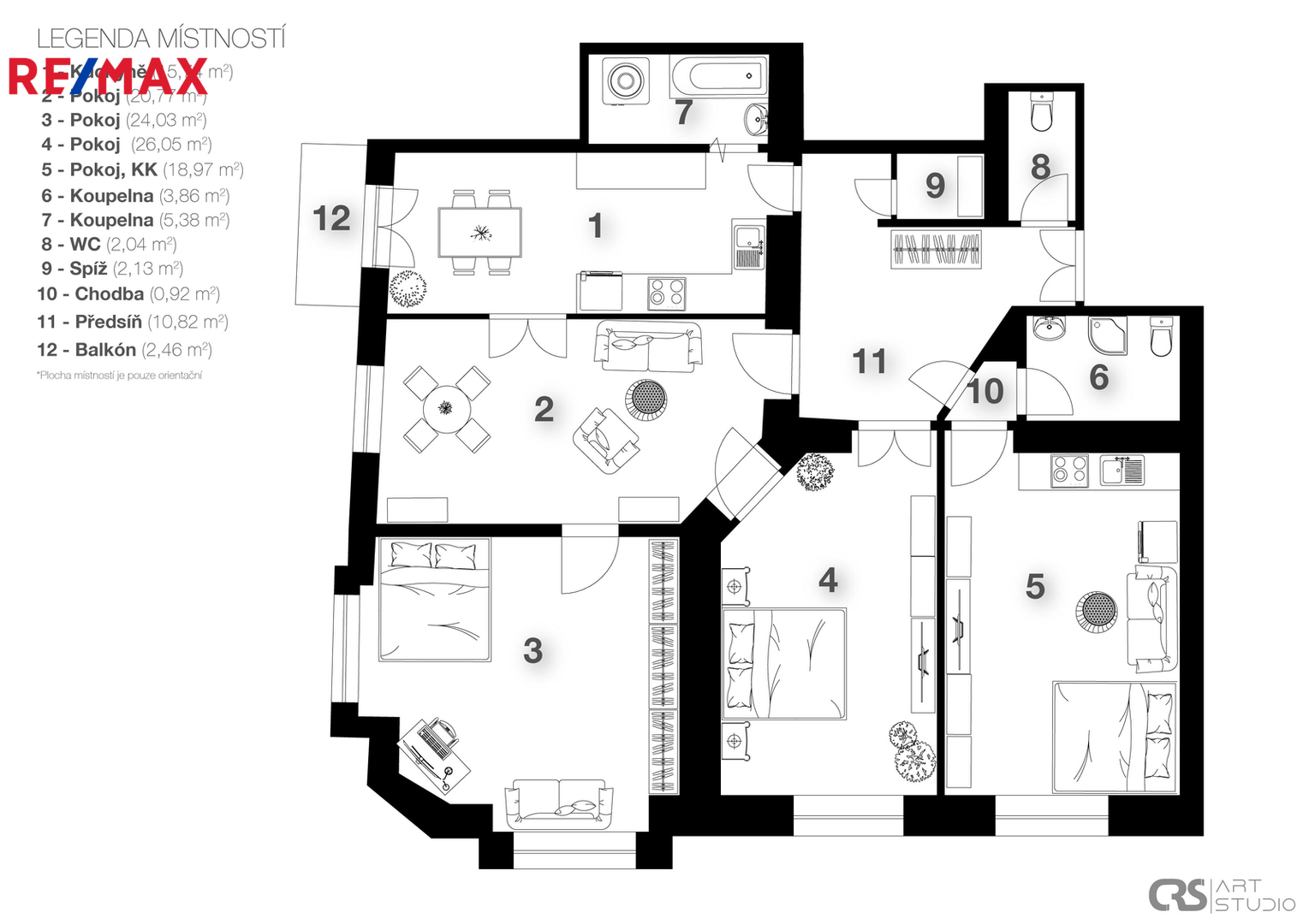
BYT 4+1/B/OV/cihla/131 m2 nyní řešen jako dvougenerační 3+1 a garsonka

U této nabídky zpozorněte, protože jde o mimořádnou nabídku bytu v jednom z nejlepších a architektonicky hodnotných činžovních domů v lokalitě. Byt je nyní uspořádám jako dvougenerační (3+1 a garsonka). Svou dispozicí umožňuje vytvoření luxusního, velkolepého bydlení dle vlastních představ.

V exkluzivním zastoupení vlastníka Vám nabízíme ke koupi světlý a prostorný rohový byt v původním stavu o dispozici 4+1 a výměře 131 m2 ve 3. NP krásného činžovního domu na rozhraní Holešovic a Bubenče, 50 metrů od Letenských sadů. Poloha bytu nabízí snadnou dosažitelnost centra města MHD i pěšky a napojení na městský okruh a veškerou občanskou vybavenost v okolí.

Součástí bytu je prostorný sklep a balkón.

(BYT 131 m2 + balkón 2,5 m2 + sklep 15,5 m2)

Výhodou je dispozice bytu, pouze 3 byty na patře a celkem 17 bytů v domě. V domě je volná půda a k bytu náleží výnos z pronájmu nebytových prostor v domě.

Dispozice bytu je mimořádně flexibilní a přímo vybízí k vytvoření reprezentativního, luxusního a velkolepého bydlení přesně podle Vašich představ. Velkorysé proporce místností, rohová orientace a vysoká okna přinášejí množství přirozeného světla a dávají vzniknout prostoru, který lze proměnit v exkluzivní rezidenci s důrazem na design, komfort a soukromí.

Stropy 3,2 m podtrhují vzdušnost interiéru a umožňují pracovat s architektonickými prvky, které běžné byty jednoduše nenabízejí. Na podlahách v celém bytě jsou zachovány původní dubové parkety. Plyn je zaveden pouze na vaření, vytápění a ohřev teplé vody zajišťuje vlastní plynová kotelna.

Dům má hotovou střechu, fasádu, veškeré rozvody a výtah. V plánu je vylepšení společných prostorů a vstupních dveří.

V dosahu do 5 minut chůze od domu jsou tenisové kurty, Letenské sady, několik dětských hřišť, potraviny, základní škola, školka nebo park, tramvajová zastávka, která vás během pěti minut sveze na metro linky C – Vltavská nebo linky A - Hradčanská.

Na tento byt Vám pomůžeme díky RX finance zajistit nejlepší financování.

Pro veškeré případné dotazy a prohlídky jsem Vám k dispozici. Prodávající si vyhrazuje právo vybrat kupujícího na základě jím zvolených kritérií.
Cena:
24 000 000 CZK / za nemovitost
Poznámka k ceně:
Uvedená cena zahrnuje kompletní realitní, finanční a právní servis, zajištěný ze strany realitní kanceláře.
RX finance

Spočítejte si splátku hypotéky

Na kolik vás vyjde pořízení vlastního bydlení? Zadejte pár informací do naší hypoteční kalkulačky a hned si prohlédněte výsledek.

Kupní cena nemovitosti

24 000 000 Kč

Výše hypotéky

Doba splácení

Vypočítaná měsíční splátka

Úroková sazba 3.6%

260 990 Kč

Hypotéku zařídíme za vás

Ušetřete svůj čas i nervy. Naši makléři zařídí veškeré papírování a dovedou vás až k úspěšnému podpisu smlouvy v bance.

Nechte nám kontakt, náš makléř se v pracovní dny ozve do 24 hodin

* – toto pole je nutné vyplnit
Karel Kulhavý
REMAX Ace
Jabloňová 2136/11
Praha 10 - Záběhlice, 10600
Česká republika
Tel. na makléře: +420 733 555 976
Tel. do kanceláře: +420 602 202 452
E-mail: karel.kulhavy@re-max.cz

Potřebujete poradit/máte zájem o prohlídku?

* – toto pole je nutné vyplnit

Podrobné informace

Číslo zakázky:
ID 228-NP02437
Dispozice:
4+1
Číslo podlaží:
3
Počet podlaží v objektu:
6
Užitná plocha:
131 m²
Druh objektu:
Cihlová
Stav objektu:
Velmi dobrý
Vlastnictví:
Osobní
Typ nemovitosti:
Byty
Charakter okolní zástavby:
Obytná
K nastěhování:
1. 5. 2026
Podlahová plocha:
149 m²
Zastavěná plocha:
560 m²
Plyn:
Plynovod
Počet podlaží pod zemí:
1
Umístění objektu:
Centrum obce
Výtah:
Ano
Energetická náročnost budovy:
F