Translate with 
MENU ZAVŘÍT

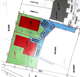
Prodej pozemku 962 m², Modřice (ID 309-NP00493)

Modřice, okres Brno-venkov mapa

10 940 000 Kč ( za nemovitost)

962 m2
Exkluzivně

Stavební pozemek v Modřicích 962m2

Exkluzivní stavební pozemek 962 m² – prestižní lokalita Modřicích

V zastoupení majitele nabízím k prodeji atraktivní stavební pozemek o výměře 962 m² v jedné z nejvyhledávanějších částí města Modřice v bezprostřední blízkosti Brna.

Pozemek se nachází v klidné a plně zastavěné rezidenční lokalitě tvořené moderními rodinnými domy, která nabízí ideální kombinaci soukromí, kvalitního bydlení a výborné dostupnosti do centra Brna.

Velkou přidanou hodnotou této nabídky je již zpracovaná projektová dokumentace na výstavbu dvou rodinných domů, která může budoucímu majiteli výrazně zjednodušit a urychlit proces realizace stavby. Pozemek tak představuje výbornou příležitost jak pro vlastní bydlení, tak pro investiční projekt.
Lokalita patří mezi nejžádanější rezidenční oblasti v okolí Brna, přičemž možnosti nové výstavby jsou zde již velmi omezené. Tato nabídka tak může představovat jednu z posledních příležitostí získat stavební parcelu v této části města.

Základní informace:

- výměra pozemku: 962 m²

- projektová dokumentace na 2 rodinné domy

zastavěná rezidenční oblast novostaveb

- kompletní občanská vybavenost v dosahu

- výborná dostupnost do Brna

Pro více informací nebo sjednání osobní prohlídky mě neváhejte kontaktovat. Prodávající si vyhrazuje právo vybrat kupujícího na základě jím zvolených kritérií.
Cena:
10 940 000 CZK / za nemovitost
Poznámka k ceně:
Majitel si vyhrazuje právo prodat nemovitost zájemci s nejvýhodnější nabídkou. Cena je včetně provize RK.
RX finance

Spočítejte si splátku hypotéky

Na kolik vás vyjde pořízení vlastního bydlení? Zadejte pár informací do naší hypoteční kalkulačky a hned si prohlédněte výsledek.

Kupní cena nemovitosti

10 940 000 Kč

Výše hypotéky

Doba splácení

Vypočítaná měsíční splátka

Úroková sazba 3.6%

260 990 Kč

Hypotéku zařídíme za vás

Ušetřete svůj čas i nervy. Naši makléři zařídí veškeré papírování a dovedou vás až k úspěšnému podpisu smlouvy v bance.

Nechte nám kontakt, náš makléř se v pracovní dny ozve do 24 hodin

* – toto pole je nutné vyplnit
Marie Pflegerová
REMAX Alfa 2
Koperníkova 4526/1
Brno, 61500
Česká republika
Tel. na makléře: +420 606 650 612
Tel. do kanceláře: +420 737 265 555
E-mail: marie.pflegerova@re-max.cz

Potřebujete poradit/máte zájem o prohlídku?

* – toto pole je nutné vyplnit

Podrobné informace

Číslo zakázky:
ID 309-NP00493
Druh pozemku:
Pro bydlení
Celková plocha:
962 m²
Inženýrské sítě:
Vodovod
Typ nemovitosti:
Pozemky
K nastěhování:
5. 3. 2026