Translate with 
MENU ZAVŘÍT

Prodej bytu 2+kk v osobním vlastnictví 52 m², Praha 9 - Vysočany (ID 205-NP12608)

ulice Pod Harfou, Praha 9 – Vysočany mapa

7 950 000 Kč ( za nemovitost)
BVelmi
úsporná

kk
2x
52 m2
2/14
Exkluzivně

Prodej světlého bytu 2+kk (48 m²) s balkonem – Praha 9, Pod Harfou

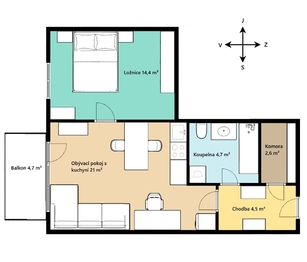
Exkluzivně nabízíme k prodeji světlý byt 2+kk o podlahové ploše 48 m² s balkonem o velikosti 4,7 m². Byt se nachází ve 2. nadzemním podlaží udržovaného bytového domu s výtahem.
Dominantou bytu je obývací pokoj s kuchyňským koutem vybaveným vestavěnými spotřebiči. Z obývací části je přímý vstup na prostorný balkon orientovaný na východ, stejně jako okna z ložnice. Díky tomu je byt příjemně prosvětlený po celý den.
Koupelna je vybavena vanou, toaletou a pračkou. K dispozici je také praktická komora. Byt se prodává zařízený (detailní plochy místností jsou uvedeny v přiloženém půdorysu).
Parkování možné přímo před domem (fialová zóna).
Bytový dům je velmi dobře udržovaný. Energetická náročnost PENB – B. Vytápění je centrální.

V blízkém okolí se nachází kompletní občanská vybavenost – supermarket Albert, restaurace, kavárna, a do 10 minut jízdy autem také obchodní centrum Galerie Harfa.
Skvělá je i dopravní dostupnost: 5 minut chůze na tramvajovou zastávku Kabešova, nebo cca 10 minut na stanici metra Vysočanská.
Milovníky přírody potěší blízkost cyklostezky směrem k pražské Zoo Praha a okolí přírodního parku Rokytka.
V případě zájmu o prohlídku prosím vyplňte kontaktní formulář pod inzerátem, následně vás budeme kontaktovat s nabídkou termínů.
V případě vyššího zájmu bude nemovitost prodána nejlepší nabídce.

Poznámka: Uvedené výměry jsou orientační.
Cena:
7 950 000 CZK / za nemovitost
Poznámka k ceně:
Upozornění:
Prodávající si vyhrazuje právo vybrat kupujícího na základě jím zvolených kritérií.
RX finance

Spočítejte si splátku hypotéky

Na kolik vás vyjde pořízení vlastního bydlení? Zadejte pár informací do naší hypoteční kalkulačky a hned si prohlédněte výsledek.

Kupní cena nemovitosti

7 950 000 Kč

Výše hypotéky

Doba splácení

Vypočítaná měsíční splátka

Úroková sazba 3.6%

260 990 Kč

Hypotéku zařídíme za vás

Ušetřete svůj čas i nervy. Naši makléři zařídí veškeré papírování a dovedou vás až k úspěšnému podpisu smlouvy v bance.

Nechte nám kontakt, náš makléř se v pracovní dny ozve do 24 hodin

* – toto pole je nutné vyplnit
Ing. Jan Pohořelický
RE/MAX Alfa
Spálená 97/29
Praha 1 - Nové Město, 11000
Česká republika
Tel. na makléře: +420 277 277 005
Tel. do kanceláře: +420 296 240 400
E-mail: j.pohorelicky@re-max.cz

Potřebujete poradit/máte zájem o prohlídku?

* – toto pole je nutné vyplnit

Podrobné informace

Číslo zakázky:
ID 205-NP12608
Dispozice:
2+kk
Číslo podlaží:
2
Počet podlaží v objektu:
14
Podlahová plocha:
52 m²
Druh objektu:
Smíšená
Stav objektu:
Velmi dobrý
Vlastnictví:
Osobní
Typ nemovitosti:
Byty
K nastěhování:
1. 4. 2026
Odpad:
Kanalizace
Užitná plocha:
48 m²
Zastavěná plocha:
3 153 m²
Plyn:
Plynovod
Výtah:
Ano
Energetická náročnost budovy:
B