Translate with 
MENU ZAVŘÍT

Prodej bytu 3+1 v osobním vlastnictví 74 m², Ostrava (ID 344-NP00662)

ulice Výškovická, Ostrava – městská část Ostrava-Jih mapa

3 450 000 Kč ( za nemovitost)
GMimořádně
nehospodárná

1x
3x
74 m2
5/8
Exkluzivně

Prodej bytu 3+1, 74 m², ul. Výškovická, Ostrava-Zábřeh – možnost převodu do OSVL

Nabízíme k prodeji byt o dispozici 3+1 na ulici Výškovická, který se nachází v 5. nadzemním podlaží revitalizovaného bytového domu v oblíbené městské části Ostrava-Zábřeh. Lokalita je dlouhodobě vyhledávaná především díky výborné dopravní dostupnosti a kompletní občanské vybavenosti v bezprostředním okolí. V pěší vzdálenosti se nachází zastávky tramvají i autobusů, obchody, školy, školky, zdravotnická zařízení, restaurace i další služby, které zajišťují pohodlné městské bydlení.
Bytová jednotka je situována v domě s celkem sedmi nadzemními a jedním podzemním podlažím. Dům prošel revitalizací, při které bylo provedeno zateplení obvodového pláště, výměna plastových oken, nové vstupní dveře se schránkami a modernizace výtahu. Výtah se nachází v mezipatře. K bytu náleží sklepní kóje umístěná v přízemí domu a k dispozici je také společná kolárna.
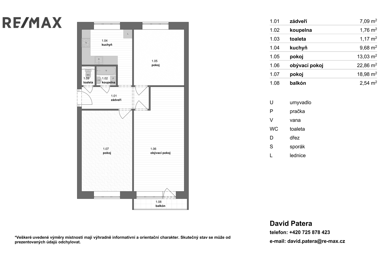
Samotný byt má celkovou plochu 79,22 m² včetně balkonu a sklepní kóje. Dispozici tvoří tři samostatné pokoje, kuchyně, předsíň, koupelna a samostatné WC. Kuchyně je přístupná z chodby a jednotlivé pokoje mají samostatné vstupy, což zajišťuje praktické uspořádání bytu. Z obývacího pokoje je vstup na menší balkon o velikosti 3,09 m². Byt je orientován na dvě světové strany – do dvora i směrem na hlavní komunikaci, díky čemuž je dobře prosvětlený.
Byt je v původním stavu a určený ke kompletní rekonstrukci, což nabízí novému majiteli ideální příležitost upravit si bydlení přesně podle vlastních představ. Kuchyňská linka je původní dřevěná, sociální zařízení tvoří původní jádro s vanou a samostatným WC. Podlahy jsou převážně původní – v pokojích parkety, v ostatních místnostech starší lino. Vytápění zajišťují starší žebrové radiátory. .
Byt je aktuálně v družstevním vlastnictví s možností převodu do osobního vlastnictví v květnu tohoto roku, za poplatek 6 000 Kč.
Velkou výhodou této nabídky je nejen dispozice a potenciál rekonstrukce, ale také atraktivní lokalita s výbornou dostupností do centra města Ostrava a kompletní občanskou vybaveností v okolí. Byt je vhodný jak pro vlastní bydlení, tak jako investiční příležitost.
Financování koupě zdarma zajistíme a to za nejlepších podmínek na trhu s hypotečními úvěry.
Cena:
3 450 000 CZK / za nemovitost
Poznámka k ceně:
cena včetně provize RK, právního servisu a advokátní úschovy finančních prostředků
Upozornění:
Prodávající si vyhrazuje právo vybrat kupujícího na základě jím zvolených kritérií.
RX finance

Spočítejte si splátku hypotéky

Na kolik vás vyjde pořízení vlastního bydlení? Zadejte pár informací do naší hypoteční kalkulačky a hned si prohlédněte výsledek.

Kupní cena nemovitosti

3 450 000 Kč

Výše hypotéky

Doba splácení

Vypočítaná měsíční splátka

Úroková sazba 3.6%

260 990 Kč

Hypotéku zařídíme za vás

Ušetřete svůj čas i nervy. Naši makléři zařídí veškeré papírování a dovedou vás až k úspěšnému podpisu smlouvy v bance.

Nechte nám kontakt, náš makléř se v pracovní dny ozve do 24 hodin

* – toto pole je nutné vyplnit
David Patera
RE/MAX Easy
28. října 1610/95
Ostrava, 70200
Česká republika
Tel. na makléře: +420 725 878 423
Tel. do kanceláře: +420 722 484 787
E-mail: david.patera@re-max.cz

Potřebujete poradit/máte zájem o prohlídku?

* – toto pole je nutné vyplnit

Podrobné informace

Číslo zakázky:
ID 344-NP00662
Dispozice:
3+1
Číslo podlaží:
5
Počet podlaží v objektu:
8
Podlahová plocha:
74 m²
Druh objektu:
Panelová
Stav objektu:
Velmi dobrý
Vlastnictví:
Osobní
Typ nemovitosti:
Byty
Charakter okolní zástavby:
Obytná
Doprava:
Silnice, MHD, Autobus
Elektřina:
230 V
Odpad:
Kanalizace
Ostatní rozvody:
Kabelová televize
Užitná plocha:
74 m²
Plyn:
Plynovod
Počet podlaží pod zemí:
1
Telekomunikace:
Internet
Umístění objektu:
Rušná část obce
Voda:
Dálkový rozvod
Výtah:
Ano
Energetická náročnost budovy:
G