Translate with 
MENU ZAVŘÍT

Prodej domu 116 m², Krupka (ID 024-NP07498)

Krupka – část obce Soběchleby mapa

13 800 000 Kč ( za nemovitost)
BVelmi
úsporná

4x
116 m2
2864 m2
1
Exkluzivně

Prodej novostavby rodinného domu se zahradou, 2684 m2, Krupka – Soběchleby, okres Teplice

V Krupce – Soběchlebech nabízíme na prodej novostavbu jednopodlažního zatepleného domu s terasou a rovinatou zahradou o vnitřní dispozici 4+kk. Dům je vybaven novou kuchyňskou linkou, na míru vyhotoveným nábytkem vyrobeným z kvalitních materiálů, kuchyňskými spotřebiči nejvyšší řady, ve všech prostorách domu je instalováno podlahové vytápění. Dům má velmi výhodnou polohu mezi městy Ústí nad Labem a Teplice.

Novostavba rodinného domu (dokončeno v listopadu 2023), bydlení v jednom podlaží, propojení interiéru se zastřešenou terasou, na niž navazuje rovinatý pozemek zahrady, řízení chodu domu prostřednictvím aplikace „chytrá domácnost“, blízkost dálnice D8, to jsou hlavní přednosti, které činí z tohoto domu s pozemkem zahrady ideální bydlení.

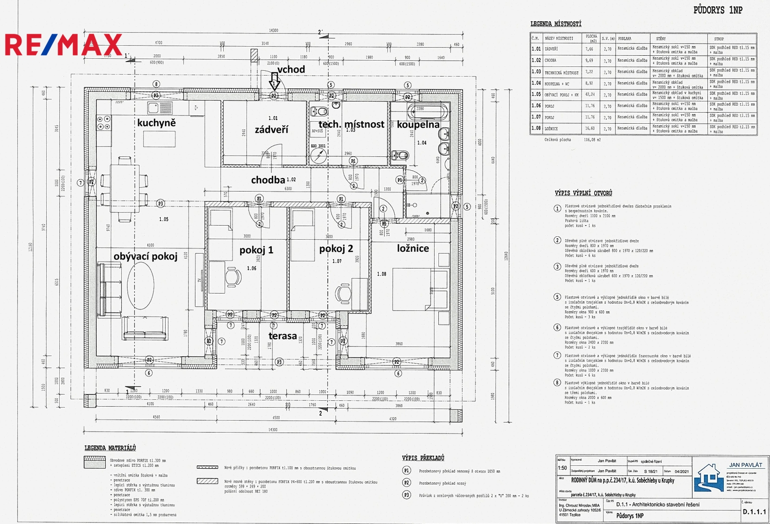
Interiér domu má dispozici 4+kk, propojením kuchyně s obývacím pokojem byl vytvořen velkorysý prostor o výměře 42 m2. Celková plocha domu je 118 m2, užitná plocha 116 m2 zahrnuje i 2x toaletu (1x s umyvadlem v technické místnosti), 1 x koupelnu s vanou i sprchovým koutem.

Dům je napojen na třífázovou elektřinu, voda je k dispozici z veřejného vodovodního řadu, odpadní vody jsou přečerpávány do veřejné kanalizace. Vytápěn je tepelným čerpadlem voda – vzduch, ohřev vody je zajištěn v kombinaci elektřina a tepelné čerpadlo, akumulační nádrž na vodu má objem 2x160 litrů, vytápění je ve všech prostorách podlahové. Energetický štítek s hodnotou B = velmi úsporná budova.

Okna jsou plastová s izolačními dvojskly, francouzská okna ve všech obytných místnostech se vstupem na společnou osvětlenou terasu. Podlahy jsou vinylové, v koupelně je položena dlažba.

Bydlení a soukromí zpříjemní řada „vychytávek“. Patří sem například externí žaluzie ve všech oknech ovládané přes aplikaci „chytrá domácnost“. Kuchyně je vybavena kvalitními spotřebiči Siemens nejvyšší řady, žulovou pracovní deskou, jídelní stůl s deskou z masivního dřeva. Příjemnou atmosféru vytváří LED podsvícení pracovních prostor, prostor chodby je osazen osvětlením s pohybovými čidly, v obytných prosotrách jsou na míru vyhotovené vestavěné skříně. V technické místnosti stojí za zmínku výškově nastavitelný stropní sušák s osvětlením a ventilátory na dálkové ovládání.

Měsíční náklady na provoz domu: elektřina 4 200,- Kč měsíčně, spotřeba vody podle počtu bydlících osob, aktuálně se pohybuje v rozmezí 2 – 2 500,- Kč měsíčně.

Zahrada je rovinatá, od odmu je oddělena terasou s opěrnou zdí. Dešťová voda je svedena do retenční nádrže o objemu 8 m3 s rozvody po zahradě (4 přípojné body). Dokončení zahrady dle představ budoucího majitele. Na zahradu navazuje louka se stavební uzávěrou, i do budoucna je tak zajištěno soukromí na pozemku zahrady.

Zabezpečení domu kamerovým systémem, k dispozici je bezdrátový CC internet.

Vybaveno nábytkem a spotřebiči.

Společně s domem předají prodávající i projekt na výstavbu samostatně stojící dvojgaráže.

V případě zájmu o bližší informace či prohlídku kontaktujte makléře nabídky. Nejbližší prohlídkový den: úterý 17.3.2026.
Cena:
13 800 000 CZK / za nemovitost
Poznámka k ceně:
včetně provize, právního servisu a poradenství ohledně fianncování koupě
Upozornění:
Prodávající si vyhrazuje právo vybrat kupujícího na základě jím zvolených kritérií.
RX finance

Spočítejte si splátku hypotéky

Na kolik vás vyjde pořízení vlastního bydlení? Zadejte pár informací do naší hypoteční kalkulačky a hned si prohlédněte výsledek.

Kupní cena nemovitosti

13 800 000 Kč

Výše hypotéky

Doba splácení

Vypočítaná měsíční splátka

Úroková sazba 3.6%

260 990 Kč

Hypotéku zařídíme za vás

Ušetřete svůj čas i nervy. Naši makléři zařídí veškeré papírování a dovedou vás až k úspěšnému podpisu smlouvy v bance.

Nechte nám kontakt, náš makléř se v pracovní dny ozve do 24 hodin

* – toto pole je nutné vyplnit
Mgr. Petr Kostovič
RE/MAX G8 Reality 6
Mírové náměstí 3485/35b
Ústí nad Labem, 40001
Česká republika
Tel. na makléře: +420 725 858 356
Tel. do kanceláře: +420 608 027 854
E-mail: petr.kostovic@re-max.cz

Potřebujete poradit/máte zájem o prohlídku?

* – toto pole je nutné vyplnit

Podrobné informace

Číslo zakázky:
ID 024-NP07498
Poloha objektu:
Samostatný
Počet podlaží v objektu:
1
Užitná plocha:
116 m²
Plocha parcely:
2 864 m²
Druh objektu:
Cihlová
Stav objektu:
Novostavba
Typ nemovitosti:
Domy a vily
Charakter okolní zástavby:
Obytná
Doprava:
Dálnice, Silnice, MHD
Elektřina:
230 V, 400 V
Odpad:
Kanalizace
Plocha zahrady:
2 654 m²
Zastavěná plocha:
210 m²
Telekomunikace:
Internet
Typ domu:
Přízemní
Umístění objektu:
Okraj obce
Voda:
Dálkový rozvod
Vybaveno:
Ano
Energetická náročnost budovy:
B
Měrná vypočtená roční spotřeba energie v kWh/m²/rok:
125