Translate with 
MENU ZAVŘÍT

Prodej domu 164 m², Nejdek (ID 334-NP00200)

ulice Kraslická, Nejdek mapa

6 490 000 Kč ( za nemovitost)
FVelmi
nehospodárná

5+
164 m2
4823 m2
3
Exkluzivně

Dům ve městě Nejdek s pozemkem 4 823 m²

Nabízíme vám prostorný třípodlažní rodinný dům na polosamotě ve městě Nejdek. Dům s celkovou plochou 339 m2, se nachází na pozemku o rozloze 4 823 m², který je dle platného územního plánu veden v plochách BI (bydlení individuální) - tudíž je možnost pozemek využít jako stavební.

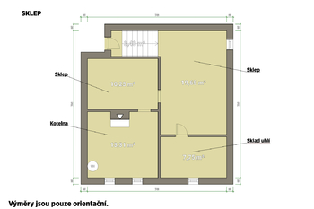
V 1. podlaží máte obývací pokoj, kuchyni, spíš, koupelnu, samostatnou toaletu, dětský pokoj, ložnici, předsíň a je zde také garáž. Ve 2. podlaží najdete další 2 pokoje, ložnici, prostornou terasu a také je zde umožněn vstup na půdu o výměře 58 m². V podzemním podlaží najdete 3 sklepní místnosti a kotelnu.

Vytápění domu je zde řešené kotlem, který lze využít jako plynový nebo na tuhá paliva, ohřev vody je zajištěn dvěma způsoby a to buď díky kotly, nebo v létě kdy kotel není spuštěn, tak je zde také elektro bojler. Dům je napojen na obecní vodovod, plynovod, elektřinu a odpad je zde řešen pomocí septiku. Okna jsou zde plastová s izolačními dvojskly a elektroinstalace je zde kompletně v mědi. Pohodlné parkování zajistí garáž v přízemí domu, nebo je možné zaparkovat přímo před domem na pozemku.

Přímo v Nejdku najdete veškerou občanskou vybavenost v podobě obchodů, restaurací, pošty, lékárny, doktora nebo základní školy i mateřské školky. Autobusová zastávka se nachází pouhou minutu chůze od domu a do deseti minut chůze dojede i na vlakové nádraží. Pokud byste se rozhodli využít auto, tak například na hranici Karlových Varů se dostanete během 15 minut.

Okolí města nabízí ideální podmínky pro aktivní život i klidný odpočinek v přírodě. Město Nejdek se nachází na okraji pohoří Krušných hor, které jsou známé množstvím turistických a cyklistických tras vedoucích krásnou horskou krajinou. Milovníci přírody ocení také okolní lesy a údolí řeky Rolava, které jsou ideální pro procházky, běh nebo relaxaci v přírodě. V zimních měsících nabízí nedaleký Ski areál Velflink možnost lyžování a snowboardingu, zatímco běžkaři mohou využít upravené stopy v okolních lesích. Pro celoroční sportovní vyžití slouží také Sportovní areál Limnice, kde najdete například tenisové kurty, koupaliště či další sportovní zázemí.

Výhodou lokality je také dobrá dostupnost lázeňského města Karlovy Vary, které nabízí široké možnosti kultury, gastronomie i relaxace. Díky blízkosti hranic s Německem je navíc možné pohodlně denně dojíždět za prací, případně využívat nákupování v příhraničních oblastech. Okolí tak nabízí ideální kombinaci klidného bydlení v přírodě s dobrou dostupností městské infrastruktury i zahraničních možností.

V případě zájmu jsme schopni poskytnout kompletní služby financování.

Pokud vás naše nabídka zaujala, neváhejte se ozvat a rádi vám poskytneme další informace. Prodávající si vyhrazuje právo vybrat kupujícího na základě jím zvolených kritérií.
Cena:
6 490 000 CZK / za nemovitost
Poznámka k ceně:
Upozornění:
Prodávající si vyhrazuje právo vybrat kupujícího na základě jím zvolených kritérií.
RX finance

Spočítejte si splátku hypotéky

Na kolik vás vyjde pořízení vlastního bydlení? Zadejte pár informací do naší hypoteční kalkulačky a hned si prohlédněte výsledek.

Kupní cena nemovitosti

6 490 000 Kč

Výše hypotéky

Doba splácení

Vypočítaná měsíční splátka

Úroková sazba 3.6%

260 990 Kč

Hypotéku zařídíme za vás

Ušetřete svůj čas i nervy. Naši makléři zařídí veškeré papírování a dovedou vás až k úspěšnému podpisu smlouvy v bance.

Nechte nám kontakt, náš makléř se v pracovní dny ozve do 24 hodin

* – toto pole je nutné vyplnit
Patrik Ševela
RE/MAX Smart
Koterovská 21
Plzeň, 32600
Česká republika
Tel. na makléře: +420 725 577 407
Tel. do kanceláře: +420 702 229 948
E-mail: patrik.sevela@re-max.cz

Potřebujete poradit/máte zájem o prohlídku?

* – toto pole je nutné vyplnit

Podrobné informace

Číslo zakázky:
ID 334-NP00200
Poloha objektu:
Samostatný
Počet podlaží v objektu:
3
Užitná plocha:
164 m²
Plocha parcely:
4 823 m²
Druh objektu:
Cihlová
Stav objektu:
Dobrý
Typ nemovitosti:
Domy a vily
Doprava:
Vlak, Silnice, Autobus
Garáž:
Ano
Odpad:
Septik
Ostatní rozvody:
Satelit
Plocha zahrady:
4 638 m²
Zastavěná plocha:
185 m²
Plyn:
Plynovod
Počet parkovacích míst:
10
Počet podlaží pod zemí:
1
Telekomunikace:
Internet
Typ domu:
Patrový
Umístění objektu:
Polosamota
Voda:
Dálkový rozvod
Vybaveno:
Ano
Energetická náročnost budovy:
F