Translate with 
MENU ZAVŘÍT

Prodej domu 346 m², Praha 4 - Lhotka (ID 205-NP12625)

ulice Sulická, Praha 4 – Lhotka mapa

41 500 000 Kč ( za nemovitost)
AMimořádně
úsporná

5+
346 m2
627 m2
4

Prostorný rodinný dům 346 m² s okrasnou zahradou a moderními technologiemi, Praha 4 – Lhotka

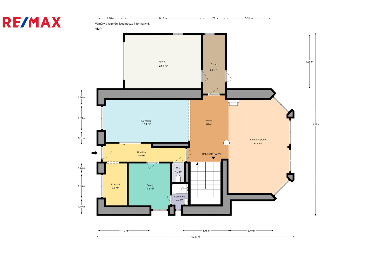
Nabízíme k prodeji prostorný rodinný dům s celkovou vnitřní plochou 346,3 m², situovaný na rovinatém pozemku o velikosti 627 m² v atraktivní a klidné rezidenční lokalitě Praha 4 – Lhotka, ulice Sulická.

Dům, jehož stavba byla dokončena v roce 2018, je samostatně stojící, částečně podsklepený, má dvě nadzemní podlaží a obytné podkroví. V 1. podzemním podlaží se nachází technické zázemí a vinný sklípek. V přízemí se rozkládá mimořádně prostorný obývací pokoj (73 m²) s jídelnou a kuchyní, hostinský pokoj (11,4 m²) s vlastní koupelnou a toaletou, vstupní hala se šatnou, samostatné WC s umyvadlem, komora, sklad (7,2 m²) a garáž (28,0 m²).

V prvním patře jsou čtyři obytné místnosti (17,5 m², 20,6 m², 14,2 m² a 25,4 m²), dvě koupelny s toaletami, centrální hala a balkon s výhledem do zahrady. V podkroví jsou k dispozici další dvě místnosti s vlastním hygienickým zázemím.

Díky své dispozici a velkorysým prostorům je dům vhodný nejen pro komfortní rodinné bydlení, ale také pro kombinaci bydlení s podnikáním. Samostatné místnosti a možnost dalšího využití podkroví umožňují vytvoření pracovny, ateliéru, kanceláře či menšího studia přímo v domě. Dispozice navíc nabízí potenciál pro další rozšíření či úpravy dle individuálních potřeb budoucího majitele.

Dům je vybaven moderními technologiemi a kvalitními materiály – vytápění i ohřev vody zajišťuje tepelné čerpadlo, je instalováno podlahové topení. Součástí vybavení je krb, vestavěný nábytek na míru, bezpečnostní systém (alarm a kamerový dohled) a špičkové kuchyňské spotřebiče. K dispozici jsou všechny inženýrské sítě, navíc vlastní studna.

Pozemek je upraven jako okrasná zahrada s terasou, předzahrádkou a krytým stáním pro dvě auta.

Lokalita nabízí vynikající dopravní dostupnost – dům se nachází v blízkosti budoucích stanic metra D (Nemocnice Krč a Nové Dvory), rychlé spojení je zajištěno i na metro C – Kačerov. V okolí najdete kompletní občanskou vybavenost včetně mezinárodních škol, např. The Prague British School.

Zajistíme vám také výhodné financování formou hypotečního úvěru.

Výměry uvedené v inzerátu vycházejí z projektové dokumentace a mají informativní charakter. Užitná plocha je uvedena dle projektové dokumentace a zahrnuje veškeré vnitřní prostory domu, včetně garáže a skladu.

V případě zájmu o prohlídku prosím vyplňte formulář pod inzerátem – ozveme se vám s nabídkou volných termínů. Prodávající si vyhrazuje právo vybrat kupujícího na základě jím zvolených kritérií.
Cena:
41 500 000 CZK / za nemovitost
Poznámka k ceně:
Cena k jednání
Upozornění:
Prodávající si vyhrazuje právo vybrat kupujícího na základě jím zvolených kritérií.
RX finance

Spočítejte si splátku hypotéky

Na kolik vás vyjde pořízení vlastního bydlení? Zadejte pár informací do naší hypoteční kalkulačky a hned si prohlédněte výsledek.

Kupní cena nemovitosti

41 500 000 Kč

Výše hypotéky

Doba splácení

Vypočítaná měsíční splátka

Úroková sazba 3.6%

260 990 Kč

Hypotéku zařídíme za vás

Ušetřete svůj čas i nervy. Naši makléři zařídí veškeré papírování a dovedou vás až k úspěšnému podpisu smlouvy v bance.

Nechte nám kontakt, náš makléř se v pracovní dny ozve do 24 hodin

* – toto pole je nutné vyplnit
Lubomír Boček
RE/MAX Alfa
Spálená 97/29
Praha 1 - Nové Město, 11000
Česká republika
Tel. na makléře: +420 704 797 751
Tel. do kanceláře: +420 296 240 400
E-mail: lubomir.bocek@re-max.cz

Potřebujete poradit/máte zájem o prohlídku?

* – toto pole je nutné vyplnit

Podrobné informace

Číslo zakázky:
ID 205-NP12625
Poloha objektu:
Samostatný
Počet podlaží v objektu:
4
Užitná plocha:
346 m²
Plocha parcely:
627 m²
Druh objektu:
Smíšená
Stav objektu:
Velmi dobrý
Typ nemovitosti:
Domy a vily
Charakter okolní zástavby:
Obytná
K nastěhování:
11. 3. 2026
Elektřina:
230 V
Garáž:
Ano
Odpad:
Kanalizace
Plocha zahrady:
412 m²
Zastavěná plocha:
215 m²
Počet parkovacích míst:
2
Počet podlaží pod zemí:
1
Typ domu:
Patrový
Voda:
Dálkový rozvod
Vybaveno:
Ano
Energetická náročnost budovy:
A
Měrná vypočtená roční spotřeba energie v kWh/m²/rok:
33