Translate with 
MENU ZAVŘÍT

Prodej bytu 3+1 v osobním vlastnictví 79 m², Praha 4 - Háje (ID 352-NP00135)

ulice Květnového vítězství, Praha 4 – Háje mapa

8 990 000 Kč ( za nemovitost)
CÚsporná

1x
3x
79 m2
4/8
Exkluzivně

3+1 Květnového vítězství, Praha 4

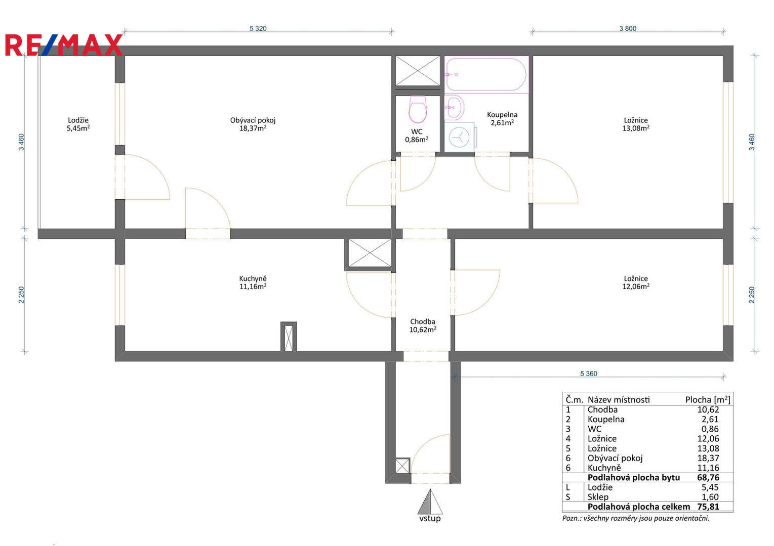
Exkluzivně nabízím ke koupi kompletně zrekonstruovaný byt o dispozici 3+1 se zasklenou lodžií ve vyhledávané části Prahy 11 – Háje, v ulici Květnového vítězství.
Byt nabízí příjemné bydlení s kompletní občanskou vybaveností v okolí i blízkostí zeleně.
Celková užitná plocha bytu činí 76 m², včetně zasklené lodžie (5,5 m²) a sklepa (1,6 m²). Byt se nachází ve 3. patře zatepleného domu s novým prostorným výtahem.
Interiér prošel kompletní a kvalitní rekonstrukcí, která zahrnovala nové elektroinstalace včetně datových rozvodů, nové rozvody vody a odpadu, štuky a malby, vinylové podlahy, dlažby i nové interiérové dveře s obložkovými zárubněmi. Samozřejmostí je moderní koupelna s vanou a závěsné WC.

Součástí bytu je kuchyňská linka vyrobená na míru truhlářem, osazená vestavnými spotřebiči – indukční varnou deskou, troubou, mikrovlnnou troubou, digestoří a myčkou.
Velkou výhodou je také příjemný výhled z ložnic do klidného a prostorného vnitrobloku, který zajišťuje dostatek soukromí, ticha a zeleně. Vytápění i ohřev vody jsou řešeny centrálně.
Lokalita nabízí kompletní občanskou vybavenost v docházkové vzdálenosti – školy, školky, obchody, restaurace i služby. Zastávka autobusu se nachází přímo u domu a na stanici metra C Háje se dostanete během několika minut.

Milovníci přírody ocení blízkost Hostivařského lesoparku a Hostivařské přehrady, které jsou ideálním místem pro sport i relaxaci.

Byt je v osobním vlastnictví a jeho koupi lze financovat hypotečním úvěrem.

V případě zájmu o více informací nebo domluvení termínu prohlídky mě neváhejte kontaktovat. Prodávající si vyhrazuje právo vybrat kupujícího na základě jím zvolených kritérií.
Cena:
8 990 000 CZK / za nemovitost
Poznámka k ceně:
Upozornění:
Prodávající si vyhrazuje právo vybrat kupujícího na základě jím zvolených kritérií.
RX finance

Spočítejte si splátku hypotéky

Na kolik vás vyjde pořízení vlastního bydlení? Zadejte pár informací do naší hypoteční kalkulačky a hned si prohlédněte výsledek.

Kupní cena nemovitosti

8 990 000 Kč

Výše hypotéky

Doba splácení

Vypočítaná měsíční splátka

Úroková sazba 3.6%

260 990 Kč

Hypotéku zařídíme za vás

Ušetřete svůj čas i nervy. Naši makléři zařídí veškeré papírování a dovedou vás až k úspěšnému podpisu smlouvy v bance.

Nechte nám kontakt, náš makléř se v pracovní dny ozve do 24 hodin

* – toto pole je nutné vyplnit
Vojtěch Domanja
RE/MAX Ambassador
Cíglerova/metro Rajská zahrada
Praha 9, 19800
Česká republika
Tel. na makléře: +420 776 672 943
Tel. do kanceláře: +420 777 557 700
E-mail: vojtech.domanja@re-max.cz

Potřebujete poradit/máte zájem o prohlídku?

* – toto pole je nutné vyplnit

Podrobné informace

Číslo zakázky:
ID 352-NP00135
Dispozice:
3+1
Číslo podlaží:
4
Počet podlaží v objektu:
8
Podlahová plocha:
79 m²
Druh objektu:
Panelová
Stav objektu:
Velmi dobrý
Vlastnictví:
Osobní
Typ nemovitosti:
Byty
Charakter okolní zástavby:
Obytná
K nastěhování:
16. 3. 2026
Elektřina:
230 V, 400 V
Odpad:
Kanalizace
Užitná plocha:
73 m²
Zastavěná plocha:
757 m²
Umístění objektu:
Sídliště
Voda:
Dálkový rozvod
Výtah:
Ano
Energetická náročnost budovy:
C