Translate with 
MENU ZAVŘÍT

Pronájem bytu 2+kk v osobním vlastnictví 59 m², Kolín (ID 059-NP07869)

ulice Roháčova, Kolín – část obce Kolín III mapa

15 000 Kč ( za měsíc)
CÚsporná

kk
2x
59 m2
2/5
Exkluzivně

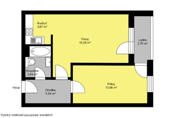
Pronájem bytu 2+kk s lodžií o velikosti 59 m2 v Kolíně

Exkluzivně nabízíme pronájem rezidenčního bytu 2+kk s lodžií o podlahové ploše 59 m2 a sklepem. Rezidence v ulici Roháčova je situována v klidné části města Kolína v žádané lokalitě mezi rodinnou zástavbou a zároveň nedaleko místního nádraží.

Jedná se o bytovou jednotku ve 2. patře ze 6. NP. Dispozičně je členěna na jednu místnost s kuchyňským koutem, ložnici, předsíň a oddělené sociální zařízení. Součástí vybavení je kuchyňská linka se spotřebiči (elektrická deska s troubou, digestoř). Po celé ploše bytu byla položena plovoucí podlaha a dlažba.

Nájem 15.000 Kč + záloha na služby 2.700 Kč + záloha na elektřinu 1.200 Kč.

Výhoda nemovitosti: bytová jednotka s lodžií, lokalita a úklidová služba společných prostor v budově. Součástí nabídky je také sklep v přízemí budovy. V okolí kompletní občanská vybavenost, základní škola, školka, hřiště, obchody, nemocnice, vlakový spoj z Kolína směr Praha každých 15 min. pražskou integrovanou dopravou, autobus, MHD.

V případě zájmu o další informace nebo objednání prohlídky nemovitosti kontaktujte přímo makléře nabídky. Pronajímající si vyhrazuje právo vybrat nájemce na základě jím zvolených kritérií.
Cena:
15 000 CZK / za měsíc
Poznámka k ceně:
Vratná kauce 37 800 Kč.
Upozornění:
Pronajímající si vyhrazuje právo vybrat nájemce na základě jím zvolených kritérií.
Ilona Černá
RE/MAX G8 Reality 4
Václavská 864
Kolín, 28002
Česká republika
Tel. na makléře: +420 604 760 411
Tel. do kanceláře: +420 603 392 333
E-mail: ilona.cerna@re-max.cz

Potřebujete poradit/máte zájem o prohlídku?

* – toto pole je nutné vyplnit

Podrobné informace

Číslo zakázky:
ID 059-NP07869
Dispozice:
2+kk
Číslo podlaží:
2
Počet podlaží v objektu:
5
Podlahová plocha:
59 m²
Druh objektu:
Panelová
Stav objektu:
Velmi dobrý
Vlastnictví:
Osobní
Typ nemovitosti:
Byty
Bezbariérový byt:
Ano
K nastěhování:
1. 4. 2026
Doprava:
Vlak, Dálnice, Silnice, MHD, Autobus
Elektřina:
230 V
Odpad:
Kanalizace
Ostatní rozvody:
Kabelová televize
Užitná plocha:
53 m²
Telekomunikace:
Internet
Umístění objektu:
Klidná část obce
Voda:
Dálkový rozvod
Vybaveno:
Ano
Výtah:
Ano
Energetická náročnost budovy:
C
Měrná vypočtená roční spotřeba energie v kWh/m²/rok:
93