Translate with 
MENU ZAVŘÍT

Pronájem bytu 2+kk v osobním vlastnictví 78 m², Šlapanice (ID 268-NP03539)

ulice Brněnská Pole, Šlapanice mapa

19 500 Kč (bez DPH, za měsíc)
BVelmi
úsporná

kk
2x
78 m2
1/5
Exkluzivně

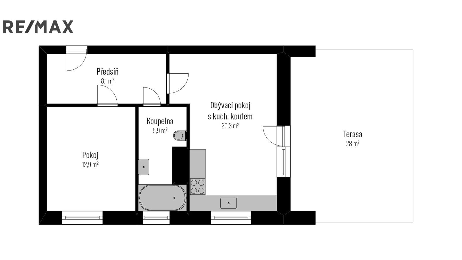
Pronájem bytu 2+kk 49 m² s terasou, sklepem a garážovým stáním, Šlapanice u Brna

Pronájem moderního bytu 2+kk s prostornou terasou, sklepem a krytým parkovacím místem v garáži – Šlapanice u Brna

Hledáte moderní, světlé a pohodlné bydlení v klidné lokalitě s výbornou dostupností do Brna?
Pak by Vás mohl zaujmout tento byt o dispozici 2+kk v Šlapanicích u Brna, na adrese Brněnská pole 1932/32.

Byt o podlahové ploše 48,9 m² se nachází v 1. zvýšeném nadzemním podlaží nízkoenergetické cihlové novostavby z roku 2021. Díky orientaci na východ a jih je byt příjemně prosvětlený a nabízí velmi hezkou atmosféru po celý den. Součástí bytu je také prostorná terasa o velikosti 28 m², která poskytuje dostatek místa pro odpočinek, posezení i trávení času venku. Na terase je instalována praktická markýza a podlahu tvoří kvalitní betonová dlažba. K bytu dále náleží sklep o velikosti 1 m² a kryté parkovací místo v garáži bytového domu o velikosti 16 m².

Byt se pronajímá částečně zařízený:
obývací místnost s kuchyňským koutem – jídelní stůl, čtyři židle, sedací souprava, klimatizace zn. LG
ložnice – manželská postel
chodba – vestavěné skříně, botník, věšák
terasa – markýza

Součástí bytu je kuchyňská linka na míru s vestavnými spotřebiči značek Mora, Electrolux a Beko. K dispozici je lednice, myčka nádobí a indukční varná deska. Komfort bydlení zvyšuje klimatizace LG, která zajistí příjemné klima během letních měsíců.

V koupelně se nachází plynový kotel BAXI, který zajišťuje jak vytápění bytu, tak ohřev vody. Samozřejmostí jsou kvalitní podlahové krytiny – v obytných místnostech vinylové podlahy, v koupelně keramická dlažba. Koupelna je vybavena vanou, toaletou a otopným žebříkem.

Šlapanice patří mezi velmi oblíbené lokality pro bydlení, a to zejména díky kombinaci klidného prostředí, dobré občanské vybavenosti a rychlé dostupnosti do Brna. V okolí najdete dětská hřiště, cyklostezky i přírodu vhodnou k procházkám a volnočasovým aktivitám. Samotné Šlapanice nabízejí školky, školy, obchody, restaurace i sportovní centra.

Výborná je také dopravní dostupnost do centra Brna – autem i veřejnou dopravou. K dispozici je spojení prostřednictvím trolejbusu 31, autobusových linek 151 a 701 i osobního vlaku.

V domě je k dispozici moderní výtah, který zajišťuje pohodlný přístup do všech čtyř podlaží. Do domu je zároveň zaveden optický internet od společností NEJ a VIVO, což ocení zejména ti, kdo pracují z domova nebo vyžadují stabilní a rychlé připojení.

Cenové podmínky
nájemné: 19.500 Kč / měsíc
zálohy na služby: 5.203 Kč / měsíc
vratná kauce: 39.000 Kč
provize RK: 29.250 Kč + DPH

Skladba záloh na služby
Byt

elektřina: 2 410 Kč
plyn: 900 Kč
vodné, stočné: 1 200 Kč
výtah: 200 Kč
el. proud společných prostor: 150 Kč
úklid společných prostor: 140 Kč
odvoz odpadu: 103 Kč

Garáž
elektřina garáže: 100 Kč

Další důležité informace

byt bude k dispozici od 1. 4. 2026
prohlídky budou probíhat 23. a 24. 3. 2026

Máte-li zájem o více informací nebo si chcete domluvit prohlídku, neváhejte mě kontaktovat. Rád Vám byt osobně představím. Pronajímající si vyhrazuje právo vybrat nájemce na základě jím zvolených kritérií.
Cena:
19 500 CZK / za měsíc
Poznámka k ceně:
nájemné: 19.500 Kč / měsíc, zálohy na služby: 5.203 Kč / měsíc, vratná kauce: 39.000 Kč, provize RK: 29.250 Kč + DPH
Upozornění:
Pronajímající si vyhrazuje právo vybrat nájemce na základě jím zvolených kritérií.
Igor Loškár
RE/MAX Delux
Křenová 538/22
Brno, 60200
Česká republika
Tel. na makléře: +420 739 113 173
Tel. do kanceláře: +420 602 703 897
E-mail: igor.loskar@re-max.cz

Potřebujete poradit/máte zájem o prohlídku?

* – toto pole je nutné vyplnit

Podrobné informace

Číslo zakázky:
ID 268-NP03539
Dispozice:
2+kk
Číslo podlaží:
1
Počet podlaží v objektu:
5
Podlahová plocha:
78 m²
Druh objektu:
Cihlová
Stav objektu:
Novostavba
Vlastnictví:
Osobní
Typ nemovitosti:
Byty
Bezbariérový byt:
Ano
Charakter okolní zástavby:
Obytná
K nastěhování:
1. 4. 2026
Doprava:
Vlak, Silnice, MHD
Garáž:
Ano
Odpad:
Kanalizace
Užitná plocha:
49 m²
Plyn:
Plynovod
Počet podlaží pod zemí:
1
Telekomunikace:
Internet
Umístění objektu:
Klidná část obce
Voda:
Dálkový rozvod
Vybaveno:
Ano
Výtah:
Ano
Energetická náročnost budovy:
B