Translate with 
MENU ZAVŘÍT

Prodej domu 457 m², Vřesina (ID 064-NP04426)

ulice Zahrádkářská, Vřesina mapa

12 500 000 Kč ( za nemovitost)
GMimořádně
nehospodárná

457 m2
484 m2
2
Exkluzivně

Prodej domu k rekonstrukci – strategická investiční příležitost v centru Vřesiny (Ostrava)

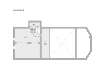
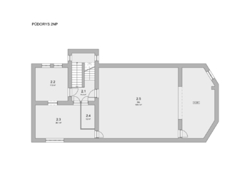
K prodeji dům o užitné ploše 457 m2 určený k rekonstrukci, který se nachází na strategickém místě přímo v centru Vřesiny. Nemovitost má dlouhou historii jako známé společenské místo – dříve zde fungovala hospůdka. Součástí objektu jsou také větší sálové prostory a kinosál, které umožňovaly pořádání společenských večerů, promítání i veřejných setkání. Tyto prostory poskytují zajímavé možnosti nového využití.
Budova nabízí velký potenciál pro podnikání i kombinaci komerčních a rezidenčních prostor. Dispozice objektu umožňuje například:
• restauraci, kavárnu nebo bistro v přízemí,
• byty nebo kanceláře v patře,
• zdravotnické středisko, ordinace či služby,
Kolem domu se nachází menší pozemek, který může sloužit například pro zahrádku restaurace, venkovní posezení nebo menší parkování.
Hlavní výhody:
• výjimečná poloha v centru obce,
• dobrá viditelnost a dostupnost,
• variabilní využití budovy,
• potenciál pro investici i podnikání,
Nemovitost je vhodná pro investory, podnikatele nebo developery, kteří hledají objekt s charakterem a potenciálem vytvořit nové centrum služeb či bydlení v obci.
Pro více informací, prohlídku nemovitosti mě prosím neváhejte kontaktovat 24/7. Prodávající si vyhrazuje právo vybrat kupujícího na základě jím zvolených kritérií.
Cena:
12 500 000 CZK / za nemovitost
Poznámka k ceně:
Včetně provize, právních služeb s advokátní úschovou
Upozornění:
Prodávající si vyhrazuje právo vybrat kupujícího na základě jím zvolených kritérií.
RX finance

Spočítejte si splátku hypotéky

Na kolik vás vyjde pořízení vlastního bydlení? Zadejte pár informací do naší hypoteční kalkulačky a hned si prohlédněte výsledek.

Kupní cena nemovitosti

12 500 000 Kč

Výše hypotéky

Doba splácení

Vypočítaná měsíční splátka

Úroková sazba 3.6%

260 990 Kč

Hypotéku zařídíme za vás

Ušetřete svůj čas i nervy. Naši makléři zařídí veškeré papírování a dovedou vás až k úspěšnému podpisu smlouvy v bance.

Nechte nám kontakt, náš makléř se v pracovní dny ozve do 24 hodin

* – toto pole je nutné vyplnit
Roman Gryc
RE/MAX Quality
Na Příkopě 814
Vsetín, 75501
Česká republika
Tel. na makléře: +420 773 002 162
Tel. do kanceláře: +420 725 686 500
E-mail: roman.gryc@re-max.cz

Potřebujete poradit/máte zájem o prohlídku?

* – toto pole je nutné vyplnit

Podrobné informace

Číslo zakázky:
ID 064-NP04426
Poloha objektu:
Řadový
Počet podlaží v objektu:
2
Užitná plocha:
457 m²
Plocha parcely:
484 m²
Druh objektu:
Cihlová
Stav objektu:
Před rekonstrukcí
Typ nemovitosti:
Domy a vily
K nastěhování:
15. 3. 2026
Doprava:
Silnice, MHD, Autobus
Odpad:
Kanalizace
Zastavěná plocha:
289 m²
Plyn:
Plynovod
Typ domu:
Patrový
Umístění objektu:
Centrum obce
Voda:
Dálkový rozvod
Energetická náročnost budovy:
G