Translate with 
MENU ZAVŘÍT

Prodej bytu 1+kk v družstevním vlastnictví 41 m², Praha 6 - Ruzyně (ID 201-NP03374)

ulice Stočesova, Praha 6 – Ruzyně mapa

6 700 000 Kč ( za nemovitost)
BVelmi
úsporná

kk
1x
41 m2
5/5
Exkluzivně

Prodej nového bytu 1+kk s velkou lodžií a garážovým stáním

Nabízím k prodeji nový byt o dispozici 1+kk s lodžií a garážovým stáním v moderním rezidenčním projektu Byty u Šárky od developera FINEP v Praze 6 – Ruzyni.

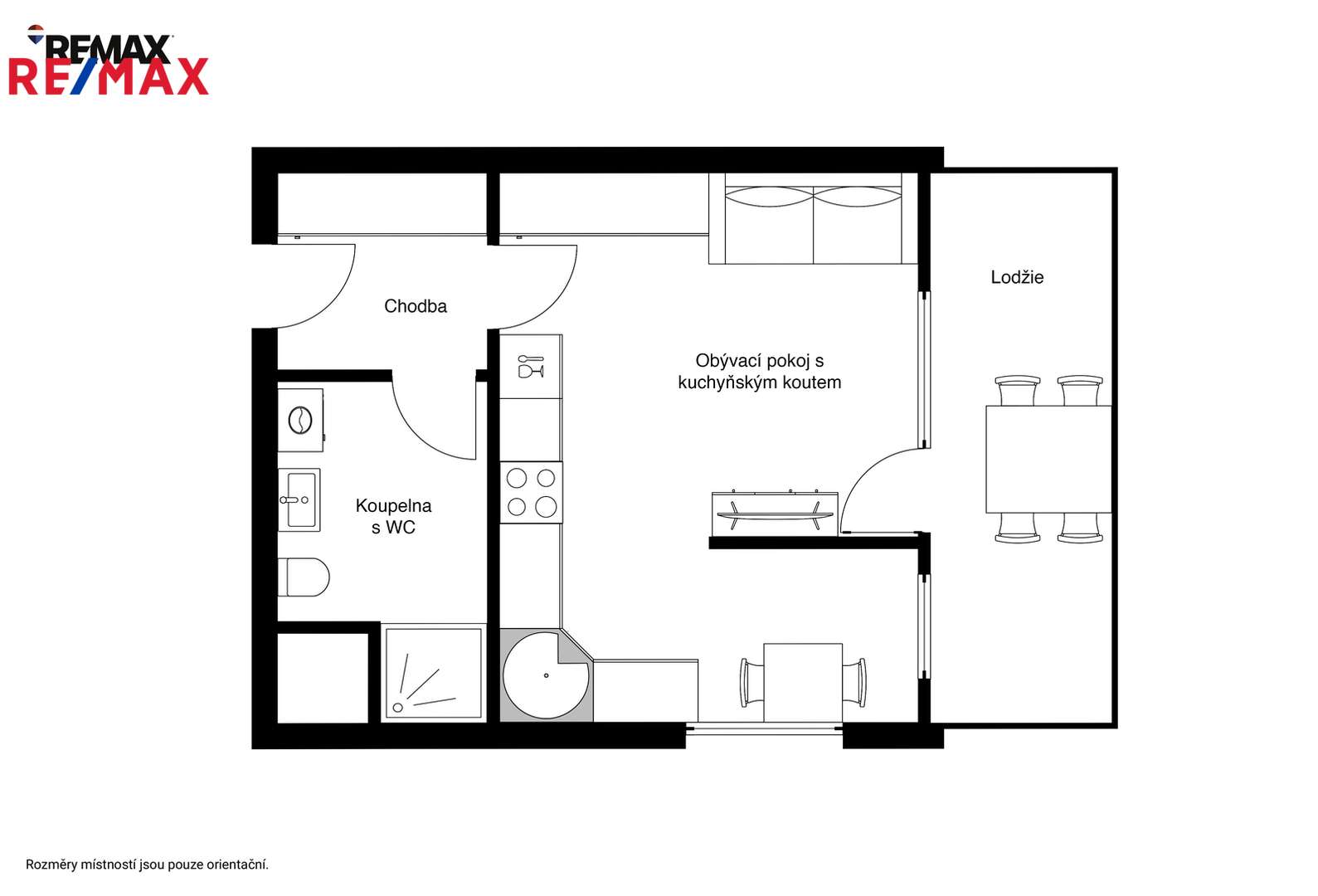
Byt se nachází v 5. nadzemním podlaží, které je zároveň posledním patrem domu, což zajišťuje větší soukromí i příjemný výhled. Užitná plocha bytu činí 30,7 m² a navazuje na něj prostorná lodžie o velikosti 10,7 m², která výrazně rozšiřuje obytný prostor a nabízí dostatek místa například pro posezení či pěstování zeleně.

Dispozice bytu tvoří hlavní obytná místnost s kuchyňským koutem, vstupní chodba a koupelna se sprchovým koutem a toaletou.

Orientace bytu je na západ – hlavní obytná místnost s lodžií a na sever – okno z kuchyňského koutu.

Standard bytu
Byt byl převzat od developera a je připraven k dokončení podle představ nového majitele.
- Součástí standardu je zejména:
- vinylové podlahy v obytné části,
- keramická dlažba v koupelně,
- koupelna se sprchovým koutem a závěsným WC,
- interiérové dveře a zárubně,
- plastová okna s izolačními trojskly,
- příprava pro instalaci venkovních žaluzií.

Součástí prodeje je také garážové parkovací stání v domě.

Byt nemá sklepní jednotku.

Budova splňuje energetickou třídu B – velmi úsporná, což přispívá k rozumným provozním nákladům.

Financování
Jedná se o družstevní byt s možností převodu do osobního vlastnictví v pravidelných termínech stanovených družstvem.
- Cena za převod družstevního podílu: 2.500.000 Kč
- Anuita: 4.200.000 Kč
- Měsíční splátka anuity: 22.562 Kč
- Celková cena bytu: 6.700.000 Kč

Anuitu je možné jednorázově doplatit a byt následně převést do osobního vlastnictví, což umožňuje financování také standardním hypotečním úvěrem.

Byt je vhodný také jako investiční příležitost k pronájmu. V této lokalitě se byty o dispozici 1+kk v podobném standardu aktuálně pronajímají přibližně za 19.000 Kč měsíčně + zálohy na služby a energie.

Projekt Byty u Šárky nabízí moderní bydlení s výbornou dostupností i kompletní občanskou vybaveností.
V docházkové vzdálenosti se nachází například:
- obchodní centrum OC Šestka,
- restaurace, obchody a služby,
- sportoviště a parky,
- vlaková stanice Praha-Ruzyně,
- tramvajová zastávka s rychlým spojením na metro Nádraží Veleslavín.

Velkou výhodou je také rychlé napojení na Pražský okruh, Evropskou třídu a dálnice D6 a D5. Letiště Václava Havla je vzdálené přibližně 8 minut jízdy autem. Prodávající si vyhrazuje právo vybrat kupujícího na základě jím zvolených kritérií.
Cena:
6 700 000 CZK / za nemovitost
Poznámka k ceně:
Upozornění:
Prodávající si vyhrazuje právo vybrat kupujícího na základě jím zvolených kritérií.
RX finance

Spočítejte si splátku hypotéky

Na kolik vás vyjde pořízení vlastního bydlení? Zadejte pár informací do naší hypoteční kalkulačky a hned si prohlédněte výsledek.

Kupní cena nemovitosti

6 700 000 Kč

Výše hypotéky

Doba splácení

Vypočítaná měsíční splátka

Úroková sazba 3.6%

260 990 Kč

Hypotéku zařídíme za vás

Ušetřete svůj čas i nervy. Naši makléři zařídí veškeré papírování a dovedou vás až k úspěšnému podpisu smlouvy v bance.

Nechte nám kontakt, náš makléř se v pracovní dny ozve do 24 hodin

* – toto pole je nutné vyplnit
Jan Halík
RE/MAX Atrium
Podolská 811/138
Praha 4 - Podolí, 14700
Česká republika
Tel. na makléře: +420 603 377 791
Tel. do kanceláře: +420 606 726 515
E-mail: jan.halik@re-max.cz

Potřebujete poradit/máte zájem o prohlídku?

* – toto pole je nutné vyplnit

Podrobné informace

Číslo zakázky:
ID 201-NP03374
Dispozice:
1+kk
Číslo podlaží:
5
Počet podlaží v objektu:
5
Podlahová plocha:
41 m²
Druh objektu:
Cihlová
Stav objektu:
Novostavba
Vlastnictví:
Družstevní
Typ nemovitosti:
Byty
Bezbariérový byt:
Ano
Charakter okolní zástavby:
Obytná
Doprava:
Vlak, Dálnice, Silnice, MHD, Autobus
Elektřina:
230 V, 400 V
Garáž:
Ano
Odpad:
Kanalizace
Ostatní rozvody:
Kabelová televize, Kabelové rozvody
Užitná plocha:
31 m²
Plyn:
Plynovod
Telekomunikace:
Telefon, Internet
Umístění objektu:
Klidná část obce
Voda:
Dálkový rozvod
Výtah:
Ano
Energetická náročnost budovy:
B