Translate with 
MENU ZAVŘÍT

Pronájem bytu 2+kk v osobním vlastnictví 78 m², Praha 3 - Strašnice (ID 205-NP12635)

ulice Zvěřinova, Praha 3 – Strašnice mapa

30 000 Kč ( za měsíc)
BVelmi
úsporná

kk
2x
78 m2
6/11
Exkluzivně

Pronájem bytu 2+kk s balkonem, parkovacím stáním a sklepem – projekt Tulipa Třebešín, Praha

Pronájem světlého bytu 2+kk s balkonem, parkovacím stáním a sklepem – projekt Tulipa Třebešín, Praha 3

Nabízím k pronájmu moderní a velmi příjemný byt o dispozici 2+kk v oblíbené lokalitě Praha 3 – Strašnice, ulice Zvěřinova 7. Byt se nachází v prestižním rezidenčním projektu Tulipa Třebešín od renomovaného developera a nabízí komfortní bydlení v kvalitní novostavbě dokončené v roce 2018.

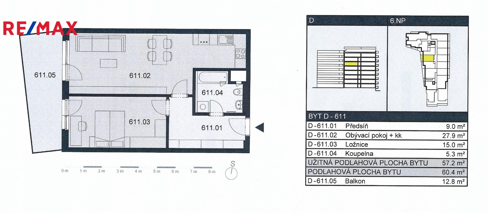
Byt je situován v 6. nadzemním podlaží domu s výtahem a díky své západní orientaci je krásně prosvětlený a zároveň poskytuje dostatek klidu i přes výbornou dostupnost do centra města. Celková podlahová plocha činí 60,4 m² (užitná plocha bytu 57,2 m²) a součástí je prostorný balkon o velikosti 12,8 m².

Dispozice bytu je velmi praktická a nabízí dostatek prostoru pro pohodlné bydlení. Předsíň má výměru 9,0 m², obývací pokoj s kuchyňským koutem 27,9 m², ložnice 15,0 m² a koupelna 5,3 m². Velkou výhodou je přímý vstup na balkon z obývacího pokoje i z ložnice, což výrazně rozšiřuje obytný prostor a vytváří příjemné místo pro relaxaci.

Srdcem bytu je moderní kuchyňská linka vybavená spotřebiči, která nabízí dostatek pracovního prostoru i úložných míst. Celý byt je navržen tak, aby poskytoval maximální komfort a funkčnost pro každodenní život a pronajímá se tak jak je vidět na fotkách, zařízený.

K bytu náleží také prostorný sklep o velikosti 5,46 m², který poskytuje dostatek úložného prostoru, a vlastní parkovací stání, což je v Praze velká výhoda.

Byt se nachází v kvalitní cihlové stavbě s železobetonovým monolitickým skeletem a vyzdívanými stěnami. O vytápění se stará centrální dálkové topení, které zajišťuje komfortní a efektivní provoz domácnosti.

Měsíční poplatky za služby (teplo, voda, garáž) činí přibližně 4 548 Kč. Elektřina se převádí na nájemníka. Majitel požaduje 2 měsíční nájmy jako vratnou kauci.

Lokalita Strašnice patří mezi velmi vyhledávané části Prahy díky své výborné dostupnosti a kompletní občanské vybavenosti. V okolí se nachází obchody, restaurace, školy, sportoviště i dostatek zeleně pro volnočasové aktivity. Díky blízkosti zastávek MHD je zajištěno rychlé spojení do centra i dalších částí města.

Pokud hledáte moderní, klidné a praktické bydlení v kvalitní novostavbě s balkonem a parkováním, tento byt je ideální volbou.

V případě zájmu o více informací nebo sjednání prohlídky mě neváhejte kontaktovat. Rád vás bytem osobně provedu. Pronajímající si vyhrazuje právo vybrat nájemce na základě jím zvolených kritérií.
Cena:
30 000 CZK / za měsíc
Poznámka k ceně:
Nájemce hradí 1 měsíční nájem plus DPH
Upozornění:
Pronajímající si vyhrazuje právo vybrat nájemce na základě jím zvolených kritérií.
Martin Slavev
RE/MAX Alfa
Spálená 97/29
Praha 1 - Nové Město, 11000
Česká republika
Tel. na makléře: +420 777 199 100
Tel. do kanceláře: +420 296 240 400
E-mail: martin.slavev@re-max.cz

Potřebujete poradit/máte zájem o prohlídku?

* – toto pole je nutné vyplnit

Podrobné informace

Číslo zakázky:
ID 205-NP12635
Dispozice:
2+kk
Číslo podlaží:
6
Počet podlaží v objektu:
11
Podlahová plocha:
78 m²
Druh objektu:
Cihlová
Stav objektu:
Velmi dobrý
Vlastnictví:
Osobní
Typ nemovitosti:
Byty
Bezbariérový byt:
Ano
Charakter okolní zástavby:
Obytná
K nastěhování:
23. 3. 2026
Doprava:
Silnice, MHD, Autobus
Elektřina:
230 V
Garáž:
Ano
Odpad:
Kanalizace
Ostatní rozvody:
Kabelové rozvody
Užitná plocha:
60 m²
Zastavěná plocha:
1 994 m²
Počet podlaží pod zemí:
2
Telekomunikace:
Internet
Voda:
Dálkový rozvod
Vybaveno:
Ano
Výtah:
Ano
Energetická náročnost budovy:
B
Měrná vypočtená roční spotřeba energie v kWh/m²/rok:
76