Translate with 
MENU ZAVŘÍT

Pronájem obchodních prostor 200 m², Příbram (ID 356-NP00026)

ulice náměstí T. G. Masaryka, Příbram – část obce Příbram I mapa

Cena na vyžádání v kanceláři
GMimořádně
nehospodárná

200 m2
Exkluzivně

Příbram, T.G.Masaryka: Pronájem obchodních prostor 200m2

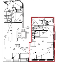
Nabízíme k pronájmu jedinečný komerční prostor v srdci Příbrami, na prestižní adrese náměstí T. G. Masaryka. Tato nemovitost se nachází v přízemí cihlového domu a její celková zastavěná plocha činí 200 m². Prostor vyniká velmi dobrým stavem a je ideálním řešením pro firmy, banky, restaurace, kavárny, salony či jiné obchody.

Výhodou těchto prostor je garážové stání s odděleným vjezdem.

Umístění nemovitosti je jedním z jejích největších trumfů. Nachází se v centru města, což zajišťuje skvělou dostupnost a vysokou návštěvnost. V okolí se nachází množství dalších obchodů a služeb, což vytváří atraktivní prostředí pro potenciální klienty a zákazníky.

Nabízené prostory se pyšní moderním designem, který lze přizpůsobit specifickým potřebám nájemce. Vybavení zahrnuje výtah, což zaručuje snadný přístup do všech pater budovy. Tento prvek zohledňuje komfort a pohodlí jak pro zaměstnance, tak i pro zákazníky.

Nemovitost je napojena na kanalizaci, má přípojku na plynovod a elektřinu, což zajišťuje bezproblémový provoz všech potřebných zařízení. K dispozici je také možnost pronájmu kanceláří, což přidává k flexibilitě a užitné hodnotě této nabídky.

Prostor je vhodný jak pro začínající podnikatele, tak pro etablované firmy, které hledají reprezentativní místo, kde mohou rozšiřovat své aktivity. Exkluzivita této lokality a prostornosti určují jedinečnost nabídky, která by měla zaujmout všechny, kdo hledají luxusní apartmány pro své podnikání.

V případě zájmu o prohlídku nás neváhejte kontaktovat.

Cena: na vyžádání Pronajímající si vyhrazuje právo vybrat nájemce na základě jím zvolených kritérií.
Cena:
Cena na vyžádání v kanceláři
Poznámka k ceně:
Upozornění:
Pronajímající si vyhrazuje právo vybrat nájemce na základě jím zvolených kritérií.
Jan Kvída
RE/MAX Nova
Náměstí Arnošta z Pardubic 166
Příbram, 26101
Česká republika
Tel. na makléře: +420 727 933 317
Tel. do kanceláře: +420 727 933 317
E-mail: jan.kvida@re-max.cz

Potřebujete poradit/máte zájem o prohlídku?

* – toto pole je nutné vyplnit

Podrobné informace

Číslo zakázky:
ID 356-NP00026
Typ nemovitosti:
Komerční prostory
Druh prostor:
Obchodní
Číslo podlaží:
1
Plocha kanceláří:
200 m²
Druh objektu:
Cihlová
Stav objektu:
Velmi dobrý
K nastěhování:
1. 4. 2026
Odpad:
Kanalizace
Celková plocha:
200 m²
Zastavěná plocha:
565 m²
Plyn:
Plynovod
Typ domu:
Přízemní
Výtah:
Ano
Energetická náročnost budovy:
G