Translate with 
MENU ZAVŘÍT

Pronájem jiných prostor 720 m², Ostrava (ID 306-NP83593)

ulice Porážková, Ostrava – městská část Moravská Ostrava a Přívoz mapa

125 Kč ( m²/měsíc)
GMimořádně
nehospodárná

720 m2
Exkluzivně

Pronájem výrobní haly, 720 m2 Ostrava

PRONÁJEM: Špičkově vybavená strojírenská hala s jeřábem a vlastním dvorem – Ostrava

Hledáte prostory, které se přizpůsobí vašemu podnikání? Nabízíme k pronájmu nadstandardně vybavenou výrobní halu / dílnu v širším centru Ostravy s kompletním technickým zázemím, výbornou logistikou a možností úprav na míru.

✅ Technická specifikace a vybavení:

▪️Manipulační technika: Mostový jeřáb o nosnosti 3,2 t + vykládací posuvná kladka (3,2 t). Podjezdná výška pod jeřábem je 3,2 m
▪️Energie a sítě: Rozvody 400V (připojovací místa každých 5 m), rozvod stlačeného vzduchu po celé ploše, zemní plyn a průmyslová voda z vlastních studní pro chlazení
▪️Vzduchotechnika: Výkonné odsávání a přívod čerstvého vzduchu
▪️Podlahy a vjezd: Hladká podlaha z broušeného drátkobetonu. Vjezd zajišťují posuvná vrata o šířce 4 m s podjezdnou výškou 3,2 m
▪️Zabezpečení: Objekt je střežen systémy EZS a EPS s napojením na pult centrální ochrany

✅ Komfortní zázemí pro zaměstnance (vysoký standard):

▪️Kancelář mistra a příruční sklad přímo u výrobní plochy
▪️Šatny a hygiena: Velká šatna (10–12 osob) a malá šatna (4–6 osob). Celkem 4 sprchové kouty, 4 WC a pisoáry
▪️Kuchyňka: Plně vybavená denní místnost pro personál

✅ Venkovní plochy:
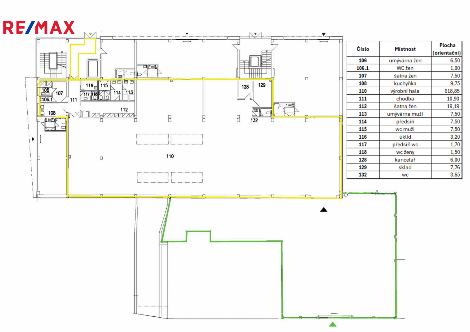
K hale náleží vlastní obezděné nádvoří o rozloze 450 m². Přístup je zajištěn bránou o šířce 8 m (z toho 5 m na elektropohon). Ideální pro manipulaci, parkování nebo venkovní skladování. Prostory je možné pronajmout s venkovní plochou i bez ní, přesně podle vašich aktuálních potřeb

✅ Flexibilní venkovní plochy (450 m²):

▪️Využití: Ideální pro parkování vozidel, manipulaci s nákladem nebo skladování materiálu
▪️Vjezd: Brána o šířce 8 m (5 m elektropohon)
▪️Variabilita: Prostory je možné pronajmout s venkovní plochou i bez ní, přesně podle vašich aktuálních potřeb. Venkovní plochu můžete vidět na půdorysu označenou zelenou barvou.


✅ Možnost úprav na míru:
Prostory jsou ve velmi dobrém stavu, ale po dohodě s majitelem je možné provést stavební úpravy dle vašich potřeb – například instalaci dalších vjezdových vrat do haly pro lepší logistický tok


✅ Finanční podmínky:
▪️Nájemné (vnitřní prostory): 125 Kč/m²/měsíc + DPH.
▪️Nájemné (nádvoří): 20 000 Kč/měsíc + DPH.
▪️Provize: 1x měsíční nájem + DPH.
▪️Vytápění radiátory (vlastní regulace, domovní kotelna).

Prostory jsou připraveny k okamžitému využití a díky své variabilitě nabízejí ideální zázemí pro široké spektrum výroby či technických služeb. Pronajímající si vyhrazuje právo vybrat nájemce na základě jím zvolených kritérií.
Cena:
125 CZK / m2/měsíc
Poznámka k ceně:
bez DPH, odměna RE/MAX je 1x nájem + DPH
Upozornění:
Pronajímající si vyhrazuje právo vybrat nájemce na základě jím zvolených kritérií.
Ing. Václav Adamčík
RE/MAX Centrum
Porážková 3339/46
Ostrava, Moravská Ostrava, 70200
Česká republika
Tel. na makléře: +420 739 604 767
Tel. do kanceláře: +420 775 757 505
E-mail: vaclav.adamcik@re-max.cz

Potřebujete poradit/máte zájem o prohlídku?

* – toto pole je nutné vyplnit

Podrobné informace

Číslo zakázky:
ID 306-NP83593
Typ nemovitosti:
Komerční prostory
Druh prostor:
Jiné
Číslo podlaží:
1
Počet podlaží v objektu:
5
Plocha kanceláří:
720 m²
Druh objektu:
Smíšená
Stav objektu:
Velmi dobrý
Bezbariérový byt:
Ano
K nastěhování:
1. 7. 2026
Doprava:
Vlak, Dálnice, Silnice, MHD, Autobus
Elektřina:
230 V, 400 V
Garáž:
Ano
Odpad:
Kanalizace
Celková plocha:
720 m²
Zastavěná plocha:
1 455 m²
Plyn:
Plynovod
Počet parkovacích míst:
10
Telekomunikace:
Telefon, Internet
Typ domu:
Přízemní
Voda:
Dálkový rozvod
Vybavení kanceláří:
Ano
Vybaveno:
Ano
Výtah:
Ano
Energetická náročnost budovy:
G