Translate with 
MENU ZAVŘÍT

Prodej chaty / chalupy 83 m², Dlouhá Ves (ID 334-NP00204)

Dlouhá Ves – část obce Bohdašice mapa

6 217 800 Kč ( za nemovitost)
GMimořádně
nehospodárná

5+
83 m2
837 m2
2
Exkluzivně

Nabízíme k prodeji rodinný dům 4+1 s možností využití jako chalupa v krásné lokalitě Šumavy.

Nabízíme k prodeji polovinu rodinného dvojdomu s možností využítí jako chalupa o dispozici 4+1 v krásné lokalitě Dlouhá Ves – Bohdašice, okres Klatovy, Plzeňský kraj.

Bohdašice leží v harmonické krajině na okraji CHKO Šumava, pouhých 7 km od Sušice a 6 km od Kašperských Hor. Hrad Kašperk je vzdálen přibližně 11 km autem a z obce je krásně viditelný. Milovníci přírody ocení, že pěší trasa k hradu měří cca 5 km (zhruba 1,5 hodiny chůze), ideální pro výlety během celého roku.

Obec nabízí klid, soukromí a čisté prostředí pro život, přesto je do Sušice s kompletní občanskou vybaveností autem jen přibližně 13 minut.

Popis nemovitosti:
Dům má obytnou plochu 83 m² a stojí na pozemku o výměře 837 m². Nemovitost je v původním stavu, pečlivě udržovaná, doposud obývaná a okamžitě obyvatelná bez nutnosti investic, což je v této kategorii velkou výhodou.

Dispozice a vybavení:
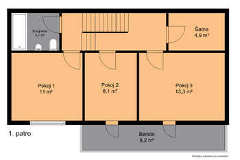
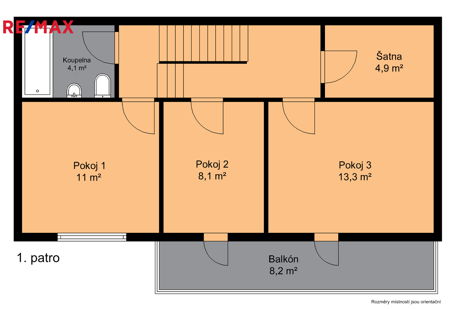
4+1 – vhodné i pro rodinné bydlení
sklep 40 m²
garáž 20 m²
prádelna 6 m²,
šatna 5 m²

Na pozemku se nachází vedlejší stavba s dílnou (12 m²), pivnicí (8 m²) a vinárnou (13 m²).
Praktické úložné prostory slouží k uskladnění brambor, navazuje kurník a oplocený výběh.

Technické informace:
vytápění kombinací elektrokotle a kotle na tuhá paliva
ohřev vody je zajištěn elektrobojlerem
voda z vlastního vrtu o hloubce 30 m
odpad sveden do jímky
parkování v garáži i na vlastním pozemku

Pozemek & výhled:
Z balkonu se otevírá nádherný výhled do údolí řeky Otavy. Pozemek nabízí prostor pro zahradu, relaxaci i další možnosti využití podle vašich představ.

Využití:
Dům je ideální jak pro trvalé bydlení v klidné přírodě, tak jako rekreační objekt v atraktivní šumavské lokalitě. Prodávající si vyhrazuje právo vybrat kupujícího na základě jím zvolených kritérií.
Cena:
6 217 800 CZK / za nemovitost
Poznámka k ceně:
Upozornění:
Prodávající si vyhrazuje právo vybrat kupujícího na základě jím zvolených kritérií.
RX finance

Spočítejte si splátku hypotéky

Na kolik vás vyjde pořízení vlastního bydlení? Zadejte pár informací do naší hypoteční kalkulačky a hned si prohlédněte výsledek.

Kupní cena nemovitosti

6 217 800 Kč

Výše hypotéky

Doba splácení

Vypočítaná měsíční splátka

Úroková sazba 3.6%

260 990 Kč

Hypotéku zařídíme za vás

Ušetřete svůj čas i nervy. Naši makléři zařídí veškeré papírování a dovedou vás až k úspěšnému podpisu smlouvy v bance.

Nechte nám kontakt, náš makléř se v pracovní dny ozve do 24 hodin

* – toto pole je nutné vyplnit
Pavel Kysilko
RE/MAX Smart
Koterovská 21
Plzeň, 32600
Česká republika
Tel. na makléře: +420 774 700 704
Tel. do kanceláře: +420 702 229 948
E-mail: pavel.kysilko@re-max.cz

Potřebujete poradit/máte zájem o prohlídku?

* – toto pole je nutné vyplnit

Podrobné informace

Číslo zakázky:
ID 334-NP00204
Poloha objektu:
V bloku
Počet podlaží v objektu:
2
Užitná plocha:
83 m²
Plocha parcely:
837 m²
Druh objektu:
Smíšená
Stav objektu:
Dobrý
Typ nemovitosti:
Chaty a rekreační objekty
Charakter okolní zástavby:
Venkovská
Elektřina:
230 V
Garáž:
Ano
Odpad:
Septik
Celková plocha:
83 m²
Plocha zahrady:
837 m²
Zastavěná plocha:
73 m²
Počet podlaží pod zemí:
1
Telekomunikace:
Internet
Typ domu:
Patrový
Umístění objektu:
Klidná část obce
Vybaveno:
Ano
Energetická náročnost budovy:
G