Translate with 
MENU ZAVŘÍT

Prodej domu 71 m², Ivančice (ID 077-NP07007)

ulice Oslavanská, Ivančice mapa

5 660 000 Kč ( za nemovitost)
GMimořádně
nehospodárná

2x
71 m2
57 m2
1
Exkluzivně

Rodinný dům 2+kk v obci Ivančice

Prodej zrekonstruovaného rodinného domu 2+kk, 71 m², Ivančice u Brna
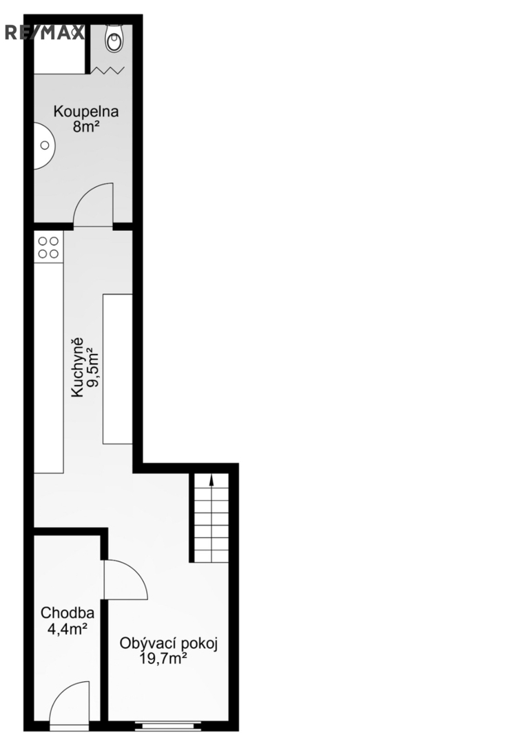
V Ivančicích u Brna, v oblíbené ulici Oslavanská, nabízíme k prodeji zrekonstruovaný rodinný dům o dispozici 2+kk s užitnou plochou 71 m².
Přízemí tvoří moderní obývací pokoj s kuchyňským koutem a koupelna s toaletou.
V patře se nachází útulná ložnice s přímým vstupem na terasou o velikosti 8 m², ideální pro ranní kávu i večerní odpočinek.
Dům je vytápěn plynovým kotlem.
Parkování je pohodlně dostupné na veřejné ploše přímo přes ulici.
Průkaz energetické náročnosti budovy zatím není k dispozici, proto uvádíme třídu G.
Nemovitost je vhodná jak pro startovací bydlení, tak pro menší rodinu. Současní vlastníci dům dlouhodobě úspěšně pronajímali, takže představuje i zajímavou investiční příležitost.
Ivančice jsou vyhledávaným místem pro život díky kombinaci krásné přírody, vinařské tradice, bohaté historie a kompletní občanské vybavenosti. Leží jen kousek od Brna a nabízejí příjemné, živé a dobře dostupné prostředí pro každodenní život.
Pokud hledáte opravdu zajímavé místo pro svůj nový domov, doporučuji domluvit si prohlídku této nemovitosti.
V případě zájmu o prohlídku prosím kontaktujte makléře. Jste‑li makléř, spolupráce je vítána. Prodávající si vyhrazuje právo vybrat kupujícího na základě jím zvolených kritérií.
Cena:
5 660 000 CZK / za nemovitost
Poznámka k ceně:
včetně provize RK a právních služeb
Upozornění:
Prodávající si vyhrazuje právo vybrat kupujícího na základě jím zvolených kritérií.
RX finance

Spočítejte si splátku hypotéky

Na kolik vás vyjde pořízení vlastního bydlení? Zadejte pár informací do naší hypoteční kalkulačky a hned si prohlédněte výsledek.

Kupní cena nemovitosti

5 660 000 Kč

Výše hypotéky

Doba splácení

Vypočítaná měsíční splátka

Úroková sazba 3.6%

260 990 Kč

Hypotéku zařídíme za vás

Ušetřete svůj čas i nervy. Naši makléři zařídí veškeré papírování a dovedou vás až k úspěšnému podpisu smlouvy v bance.

Nechte nám kontakt, náš makléř se v pracovní dny ozve do 24 hodin

* – toto pole je nutné vyplnit
Iveta Ritterová
RE/MAX Pro
Blatného 3
Brno, 61600
Česká republika
Tel. na makléře: +420 733 679 959
Tel. do kanceláře: +420 732 299 929
E-mail: iveta.ritterova@re-max.cz

Potřebujete poradit/máte zájem o prohlídku?

* – toto pole je nutné vyplnit

Podrobné informace

Číslo zakázky:
ID 077-NP07007
Poloha objektu:
Řadový
Počet podlaží v objektu:
1
Užitná plocha:
71 m²
Plocha parcely:
57 m²
Druh objektu:
Smíšená
Stav objektu:
Velmi dobrý
Typ nemovitosti:
Domy a vily
Odpad:
Kanalizace
Zastavěná plocha:
37 m²
Plyn:
Plynovod
Typ domu:
Patrový
Vybaveno:
Ano
Energetická náročnost budovy:
G