Translate with 
MENU ZAVŘÍT

Prodej domu 91 m², Malovice (ID 343-NP00811)

Malovice, okres Prachatice mapa

7 981 000 Kč ( za nemovitost)
AMimořádně
úsporná

4x
91 m2
800 m2
1
Exkluzivně

Prodej domu na klíč se zahradou, 3 park. stáními a terasou v Malovicích, 15 min od ČB

Projekt zahrnuje 6 novostaveb o dispozici 4+kk. Domy s užitnou plochou 91,36 m², zahradou 680 m², 3 park. stáními a terasou nabízí dokonalou rovnováhu mezi komfortem, energetickou úsporností a krásným přírodním prostředím. Tyto domy jsou ideální pro ty, kdo hledají moderní bydlení v klidné, ale strategické lokalitě.

ARCHITEKTURA A DISPOZICE:
Každý domov by měl být místem, kde se člověk cítí dobře – a právě s tímto záměrem byly tyto domy navrženy. Dispozice je promyšlená tak, aby poskytovala dostatek soukromí každému členovi rodiny, ale zároveň vytvářela prostor pro společné chvíle.

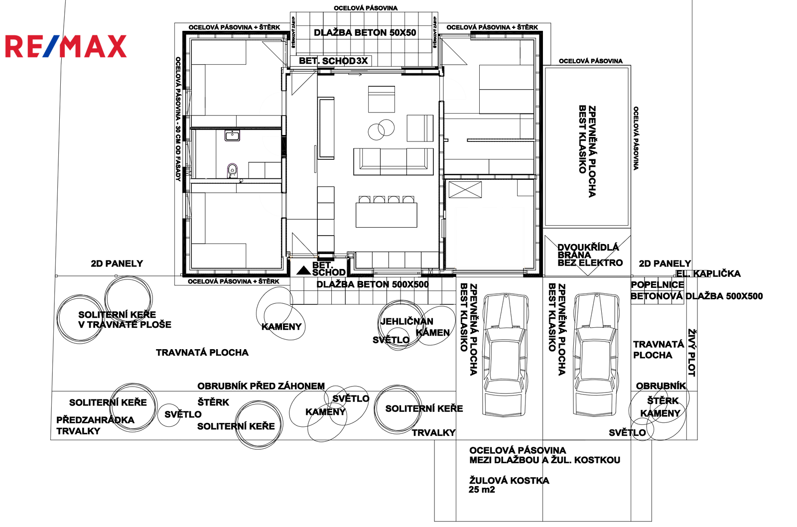
Vstup je řešen zádveřím s čistící zónou a vestavěnou skříní. V levé části domu jsou 2 neprůchozí místnosti, mezi kterými se nachází koupelna. Srdcem domu je obývací pokoj propojený s kuchyní a jídelním koutem. Tento prostor navazuje na terasu se zahradou, která dává domovu další rozměr volnosti a propojení s přírodou. V pravé části domu se nachází ložnice s vlastní šatnou a vstupem na terasu.
Technická místnost se sekčními vraty má vstup z přední části zahrady. Dům disponuje pochozí půdou 10m2.

TECHNOLOGIE:
Domy jsou mimořádně úsporné s energetickým štítkem A, což zajišťuje nízké náklady na energie. Vytápění je řešeno tepelným čerpadlem vzduch/voda v kombinaci s podlahovým topením. Možnost instalace fotovoltaické elektrárny, která vám umožní vyrábět vlastní energii.

INTERIER:
Interiér domu je promyšlený do posledního detailu. Kvalitní laminátové podlahy, velkoformátová dlažba, moderní dveře. Součástí vybavení je moderní kuchyňská linka bez spotřebičů a zařízená koupelna – snížená vana, umyvadlo se skříňkou, kulaté podsvícené zrcadlo a WC, zabudované kolejnice na záclony a závěsy. El. příprava na předokenní žaluzie. Interiér domu se může lišit dle standardu developera, doporučujeme osobní prohlídku nemovitosti.

EXTERIER:
Exteriér domu působí harmonickým dojmem díky pečlivě promyšlené souhře detailů.

Vjezd tvořen ocelovou pásovinou a žulovými kostkami. 2 park. stání pokrytá betonovou dlažbou, předzahrádka ozdobená okrasnou zelení, solitérním stromem, kameny i osvětlením se soumrakovým systémem, vyhrazená plocha pro popelnice. 3. park. stání, které je zastřešené a vybavené třífázovou zásuvkou pro nabíjení elektromobilu. Tento prostor je chráněn dvoukřídlou bránou.

Přední část pozemku je chráněna antracitovými panely, zadní je oplocena svařovaným pletivem. Vstup do domu je řešen chodníkem a vstupní výklenek pískovaným betonovým schodem.

LOKALITA:
Dům se nachází v klidné obci Malovice, kde najdete školku, autobus. spojení, úřad, hřiště a krásnou přírodu s rybníky.
Dům leží na hlavní trase mezi ČB (15 min), Pískem (20 min) a Prahou.

Dům je již k nastěhování.

Přijďte a objevte, jaké to je žít v harmonii s přírodou a užívat si klid a pohodu Malovic. Prodávající si vyhrazuje právo vybrat kupujícího na základě jím zvolených kritérií.
Cena:
7 981 000 CZK / za nemovitost
Poznámka k ceně:
DŮM NA KLÍČ - v ceně zahrnuté 3 parkovací stání (z toho jedno zastřešené), dokončený interiér, exteriér s okrasnou předzahrádkou a terasa
Upozornění:
Prodávající si vyhrazuje právo vybrat kupujícího na základě jím zvolených kritérií.
RX finance

Spočítejte si splátku hypotéky

Na kolik vás vyjde pořízení vlastního bydlení? Zadejte pár informací do naší hypoteční kalkulačky a hned si prohlédněte výsledek.

Kupní cena nemovitosti

7 981 000 Kč

Výše hypotéky

Doba splácení

Vypočítaná měsíční splátka

Úroková sazba 3.6%

260 990 Kč

Hypotéku zařídíme za vás

Ušetřete svůj čas i nervy. Naši makléři zařídí veškeré papírování a dovedou vás až k úspěšnému podpisu smlouvy v bance.

Nechte nám kontakt, náš makléř se v pracovní dny ozve do 24 hodin

* – toto pole je nutné vyplnit
Michaela Mikešová
RE/MAX G8 Reality 8
Pekárenská 1128/46
České Budějovice, 37004
Česká republika
Tel. na makléře: +420 773 609 166
Tel. do kanceláře: +420 733 785 785
E-mail: michaela.mikesova@re-max.cz

Potřebujete poradit/máte zájem o prohlídku?

* – toto pole je nutné vyplnit

Podrobné informace

Číslo zakázky:
ID 343-NP00811
Poloha objektu:
Samostatný
Počet podlaží v objektu:
1
Užitná plocha:
91 m²
Plocha parcely:
800 m²
Druh objektu:
Dřevěná
Stav objektu:
Novostavba
Typ nemovitosti:
Domy a vily
Charakter okolní zástavby:
Obytná
K nastěhování:
1. 3. 2026
Doprava:
Silnice, Autobus
Elektřina:
230 V
Odpad:
Kanalizace
Zastavěná plocha:
120 m²
Počet parkovacích míst:
3
Typ domu:
Přízemní
Umístění objektu:
Okraj obce
Voda:
Dálkový rozvod
Vybaveno:
Ano
Energetická náročnost budovy:
A