Translate with 
MENU ZAVŘÍT

Prodej domu 433 m², Praha 10 - Benice (ID 257-NP01417)

ulice U zahrádek, Praha 10 – Benice mapa

32 950 000 Kč ( za nemovitost)
BVelmi
úsporná

5+
433 m2
826 m2
3
Exkluzivně

Rodinná vila / rodinný dům v Praze – Benicích, 433 m2, pozemek 826 m2

Nabízíme k prodeji výjimečnou rodinnou vilu situovanou v klidné rezidenční části Praha – Benice, která patří mezi velmi příjemné lokality pro rodinné bydlení na okraji metropole.
Nemovitost s velkorysou užitnou plochou 433 m² je rozložena do tří podlaží a stojí na pozemku o velikosti 826 m², který poskytuje dostatek prostoru pro soukromí, relaxaci i udržovanou zahradu.
Architektura domu je navržena s důrazem na komfort, světlo a otevřený prostor. Velkorysé obytné místnosti, velká okna a promyšlená dispozice vytvářejí ideální prostředí pro moderní rodinné bydlení, vícegenerační využití nebo reprezentativní rezidenci.

Hlavní přednosti domu:
• tři podlaží s celkovou užitnou plochou 433 m²
• navíc terasa cca 34 m² a balkon cca 14 m²
• pozemek 826 m², zahrada cca 580 m²
• prostorné obytné místnosti a atypická variabilní dispozice
• elegantně řešené úložné prostory
• nadčasové kvalitní materiály
• vhodné pro vícegenerační bydlení
• klidná rezidenční zástavba rodinných domů
• jižní a jihozápadní orientace zajišťující dostatek světla

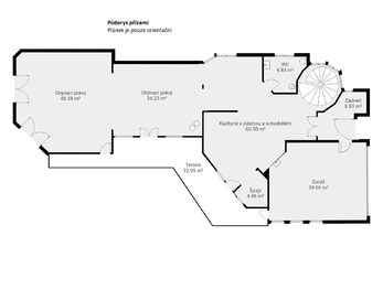
Přízemí domu tvoří kuchyň s jídelnou propojená s obývacím prostorem se vstupem na terasu navazující na zahradu. Zázemí tvoří předsíň se šatnou, spíž a samostatné WC s bidetem.
Patro nabízí tři prostorné ložnice, navazující dvě šatny a vstup na balkon orientovaný do zahrady. Jedna z nich má vlastní koupelnu s toaletou. Další koupelna s toaletou je přístupná z centrální předsíně.
Suterén domu slouží jako relaxační a technické zázemí. Sauna, posilovna a koupelnou se samostatným WC, dále prádelna, kotelna a sklep vhodně doplňují vybavení domu.
Součástí vzrostlé zahrady je okrasné jezírko, venkovní posezení s krbem a vířivka. Údržbu zajišťuje robotická sekačka a zavlažovací systém.
Vytápění domu je řešeno tepelným čerpadlem, alternativně plynovým kotlem. Dům je vybaven klimatizačními jednotkami. Obývací prostor disponuje krbem, koupelny v patře mají podlahové vytápění. Dům je díky zateplení zařazen do energetické třídy B – velmi úsporná.
Garáž nabízí prostor pro dvě vozidla a další úložné zázemí, před domem jsou k dispozici další parkovací místa. Bezpečnost domu zajišťuje alarm.

Benice jsou klidnou městskou částí s výbornou dostupností do centra Prahy. Ke sportovnímu využití láká přírodní park Botič–Milíčov či sportovní resort Park Holiday nabízející tenisové kurty, bowling, jógu, ale i konferenční a stravovací možnosti. V místě soukromá anglická MŠ Kindergarten Benice, soukromá ZŠ IKIGAI, v dojezdové vzdálenosti ZŠ a MŠ Čestlice či Uhřiněves. Nedaleko nákupní zóna Čestlice, Aquapalace Praha. Dobré napojení na Pražský okruh a dálnici D1.

Hledáte-li kombinaci klidného bydlení v rezidenční čtvrti, soukromí a máte rádi velkorysé uspořádání prostoru v jemných světlých tónech, pak neváhejte a přijďte se podívat osobně. Tato nemovitost může být Vaším příštím domovem. Opravdu stačí se jen nastěhovat.
Budu se na Vás těšit při prohlídce!

Prodávající si vyhrazuje právo výběru kupujícího dle jím zvolených kritérií. Prodávající si vyhrazuje právo vybrat kupujícího na základě jím zvolených kritérií.
Cena:
32 950 000 CZK / za nemovitost
Poznámka k ceně:
včetně právních služeb a provize RK
RX finance

Spočítejte si splátku hypotéky

Na kolik vás vyjde pořízení vlastního bydlení? Zadejte pár informací do naší hypoteční kalkulačky a hned si prohlédněte výsledek.

Kupní cena nemovitosti

32 950 000 Kč

Výše hypotéky

Doba splácení

Vypočítaná měsíční splátka

Úroková sazba 3.6%

260 990 Kč

Hypotéku zařídíme za vás

Ušetřete svůj čas i nervy. Naši makléři zařídí veškeré papírování a dovedou vás až k úspěšnému podpisu smlouvy v bance.

Nechte nám kontakt, náš makléř se v pracovní dny ozve do 24 hodin

* – toto pole je nutné vyplnit
Ing. Petra Kaulitzová
REMAX Cool
Roztylské náměstí 393/35
Praha 4 - Záběhlice, 14100
Česká republika
Tel. na makléře: +420 602 270 901
Tel. do kanceláře: +420 728 400 586
E-mail: petra.kaulitzova@re-max.cz

Potřebujete poradit/máte zájem o prohlídku?

* – toto pole je nutné vyplnit

Podrobné informace

Číslo zakázky:
ID 257-NP01417
Poloha objektu:
Samostatný
Počet podlaží v objektu:
3
Užitná plocha:
433 m²
Plocha parcely:
826 m²
Druh objektu:
Cihlová
Stav objektu:
Velmi dobrý
Typ nemovitosti:
Domy a vily
Charakter okolní zástavby:
Obytná
K nastěhování:
30. 3. 2026
Doprava:
Autobus
Garáž:
Ano
Odpad:
Kanalizace
Plocha zahrady:
580 m²
Zastavěná plocha:
246 m²
Plyn:
Plynovod
Počet parkovacích míst:
3
Počet podlaží pod zemí:
1
Typ domu:
Patrový
Umístění objektu:
Klidná část obce
Voda:
Dálkový rozvod
Vybaveno:
Ano
Energetická náročnost budovy:
B
Měrná vypočtená roční spotřeba energie v kWh/m²/rok:
68