Translate with 
MENU ZAVŘÍT

Prodej kancelářských prostor 433 m², Praha 10 - Benice (ID 257-NP01418)

ulice U zahrádek, Praha 10 – Benice mapa

32 950 000 Kč ( za nemovitost)
BVelmi
úsporná

433 m2
Exkluzivně

Reprezentativní vila / komerční objekt v Praze – Benicích,433 m², pozemek 826 m²

Nabízíme k prodeji reprezentativní nemovitost vhodnou pro komerční využití situovanou v klidné části Benic.
Objekt s celkovou užitnou plochou 433 m² je rozložen do tří podlaží a stojí na pozemku o velikosti 826 m². Dispozice domu umožňuje flexibilní využití jako je sídlo společnosti, administrativní objekt, ordinace, vzdělávací centrum, showroom nebo kombinaci podnikání a bydlení.
Architektura budovy je navržena s důrazem na světlo, otevřený prostor a reprezentativní charakter. Velkorysé místnosti, velká okna a praktická dispozice poskytují komfortní pracovní prostředí a možnost variabilního uspořádání kanceláří či pracovních zón.

Hlavní parametry nemovitosti:
• užitná plocha cca 433 m² ve třech podlažích
• navíc terasa cca 34 m² a balkon cca 14 m²
• pozemek 826 m², zahrada cca 580 m²
• reprezentativní vstupní část a prostorné místnosti
• možnost flexibilního dispozičního řešení
• vhodné pro administrativní, zdravotnické či vzdělávací služby
• klidná lokalita s dobrou dopravní dostupností
• dvě parkovací místa v garáži, tři parkovací místa na venkovních plochách
• klidné prostředí na obchodní jednání v interiéru, i v exteriéru

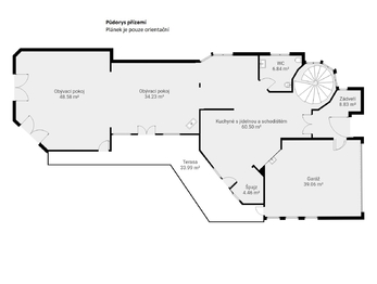
Přízemí objektu tvoří vstupní hala se šatnou, dále velkolepý hlavní prostor vhodný jako otevřená kancelář či jednací prostory s kuchyňským zázemím a přímým vstupem na terasu a zahradu.
V patře se nachází několik samostatných místností využitelných jako kanceláře nebo konzultační místnosti, doplněné koupelnami a sociálním zázemím. Na dvě místnosti navíc navazují šatny, které lze využít jako archiv či příruční sklad. Výhodou objektu je tak i možnost krátkodobého ubytování zaměstnanců či firemních návštěv. Prostory jsou vybaveny klimatizačními jednotkami.
Suterén nabízí zázemí pro zaměstnance nebo relaxační část – sauna, posilovna, koupelna, samostatné WC, technická místnost, prádelna a skladový prostor. Součástí pozemku je udržovaná zahrada s terasou, venkovním posezením, vířivkou a okrasným jezírkem nabízející relaxační zónu pro zaměstnance či klienty.
Vytápění objektu je řešeno tepelným čerpadlem, alternativně i plynovým kotlem. Obývací prostor je vybaven krbem, koupelny mají podlahové vytápění. Budova je díky kvalitnímu zateplení zařazena do energetické třídy B – velmi úsporná. Součástí nemovitosti je garáž pro dvě vozidla, další parkovací místa jsou možná před objektem. Bezpečnost domu zajišťuje alarm.

Lokalita Praha – Benice nabízí klidné prostředí s dobrou dostupností do centra Prahy i na Pražský okruh a dálnici D1.
V blízkosti restaurace, sportovní centrum Park Holiday se sportovními aktivitami, konferenčními, ubytovacími i stravovacími možnostmi. V dojezdové vzdálenosti nákupní a obchodní zóna v oblasti Čestlic.
Pokud hledáte reprezentativní sídlo v klidné lokalitě s dobrou dopravní dostupností do centra i mimo metropoli, místo, kde Vás budou klienti rádi navštěvovat třeba u šálku dobré kávy, pak tato nemovitost bude splňovat Vaše očekávání.
Ráda Vás objektem provedu osobně. Budu se na Vás těšit! Prodávající si vyhrazuje právo vybrat kupujícího na základě jím zvolených kritérií.
Cena:
32 950 000 CZK / za nemovitost
Poznámka k ceně:
včetně právních služeb a provize RK
RX finance

Spočítejte si splátku hypotéky

Na kolik vás vyjde pořízení vlastního bydlení? Zadejte pár informací do naší hypoteční kalkulačky a hned si prohlédněte výsledek.

Kupní cena nemovitosti

32 950 000 Kč

Výše hypotéky

Doba splácení

Vypočítaná měsíční splátka

Úroková sazba 3.6%

260 990 Kč

Hypotéku zařídíme za vás

Ušetřete svůj čas i nervy. Naši makléři zařídí veškeré papírování a dovedou vás až k úspěšnému podpisu smlouvy v bance.

Nechte nám kontakt, náš makléř se v pracovní dny ozve do 24 hodin

* – toto pole je nutné vyplnit
Ing. Petra Kaulitzová
REMAX Cool
Roztylské náměstí 393/35
Praha 4 - Záběhlice, 14100
Česká republika
Tel. na makléře: +420 602 270 901
Tel. do kanceláře: +420 728 400 586
E-mail: petra.kaulitzova@re-max.cz

Potřebujete poradit/máte zájem o prohlídku?

* – toto pole je nutné vyplnit

Podrobné informace

Číslo zakázky:
ID 257-NP01418
Typ nemovitosti:
Komerční prostory
Druh prostor:
Kanceláře
Počet podlaží v objektu:
3
Plocha kanceláří:
433 m²
Druh objektu:
Cihlová
Stav objektu:
Velmi dobrý
Charakter okolní zástavby:
Obchodní a obytná
K nastěhování:
30. 3. 2026
Doprava:
Autobus
Garáž:
Ano
Odpad:
Kanalizace
Celková plocha:
433 m²
Plocha zahrady:
580 m²
Zastavěná plocha:
246 m²
Plyn:
Plynovod
Počet kanceláří:
5
Počet parkovacích míst:
3
Počet podlaží pod zemí:
1
Typ domu:
Patrový
Umístění objektu:
Klidná část obce
Voda:
Dálkový rozvod
Vybavení kanceláří:
Ano
Vybaveno:
Ano
Energetická náročnost budovy:
B
Měrná vypočtená roční spotřeba energie v kWh/m²/rok:
68