Translate with 
MENU ZAVŘÍT

Prodej bytu 6 a více v osobním vlastnictví 347 m², Tuchoměřice (ID 218-NP07039)

ulice Ke Statenicím, Tuchoměřice mapa

25 500 000 Kč ( za nemovitost)
DMéně
úsporná

1x
6x
347 m2
2/2
Exkluzivně

Exkluzivní nabídka rodinného domu, 347 m², pozemek 963 m², Tuchoměřice

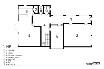
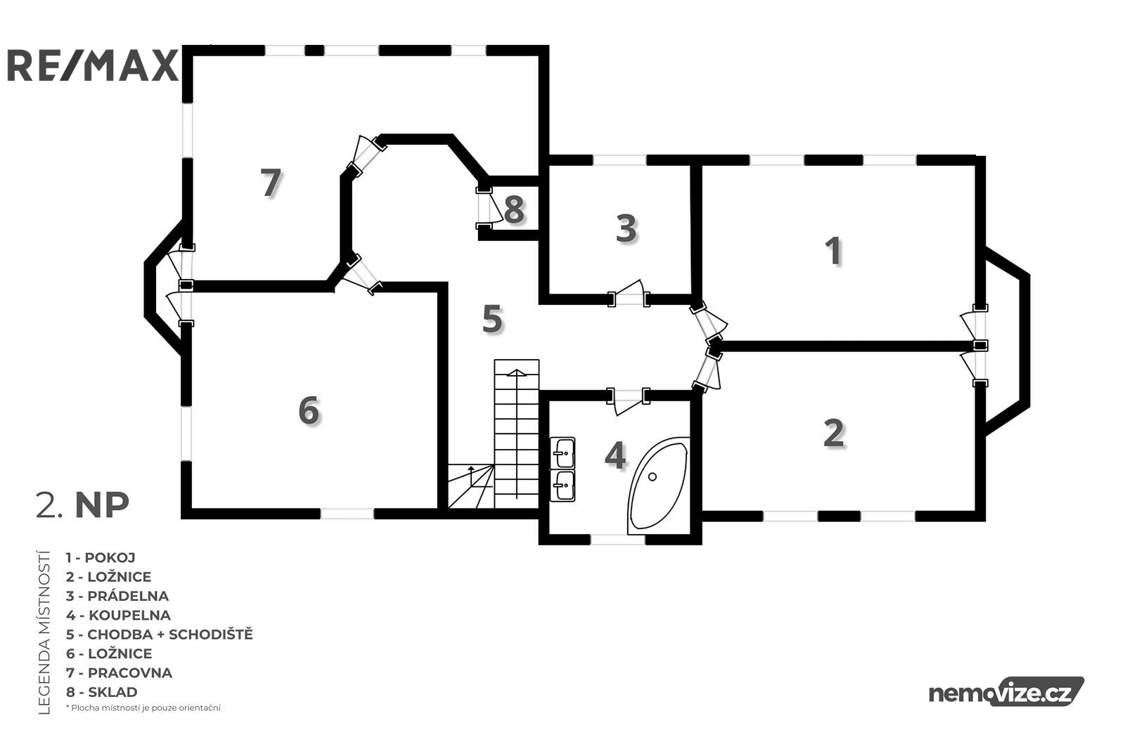
Tento dům nabízí velkorysou užitnou plochu 347 m² a dispozici 6+kk, která splní očekávání i náročnější rodiny. Nemovitost je situována na pozemku o velikosti 963 m² ve velmi žádané lokalitě Tuchoměřic a představuje ideální kombinaci prostoru, soukromí a výborné dostupnosti do Prahy.
Dominantou domu je reprezentativní obývací prostor s jídelní částí a přímým vstupem na slunnou terasu o velikosti 50 m², která plynule navazuje na pečlivě upravenou zahradu. Kuchyně je navržena s důrazem na funkčnost, estetiku a maximální komfort každodenního života.
K dispozici je pět samostatných ložnic, dvě koupelny a samostatné WC. Každá ložnice má navíc vstup na balkon orientovaný do klidného okolí, což zajišťuje dostatek světla i příjemné propojení s okolní zelení. Parkování zajišťuje prostorná garáž pro dva vozy vybavená dobíjecí stanicí pro elektromobil i další stání přímo na pozemku. Standardem jsou dřevěná eurookna, podlahy kombinující vinyl a dlažbu, vytápění je řešeno plynovým kotlem.
Velkým benefitem je lokalita Tuchoměřic – vyhledávaná a prestižní oblast na Praze-západ. V bezprostřední blízkosti se nachází les ideální pro relax i aktivní odpočinek, zároveň máte výbornou dostupnost do Prahy a blízkost mezinárodní školy. Minutu chůze od domu je autobusová zastávka s přímým spojením. V pěší dostupnosti se navíc nachází populární outletové centrum POP Airport s širokou nabídkou obchodů, kaváren a služeb.
Tuchoměřice kombinují přírodní prostředí s kompletní občanskou vybaveností – najdete zde mateřskou i základní školu, obchody, restaurace i možnosti sportovního vyžití. Centrum Prahy i letiště Václava Havla jsou vzdáleny přibližně 20 minut jízdy. Prodávající si vyhrazuje právo vybrat kupujícího na základě jím zvolených kritérií.
Cena:
25 500 000 CZK / za nemovitost
RX finance

Spočítejte si splátku hypotéky

Na kolik vás vyjde pořízení vlastního bydlení? Zadejte pár informací do naší hypoteční kalkulačky a hned si prohlédněte výsledek.

Kupní cena nemovitosti

25 500 000 Kč

Výše hypotéky

Doba splácení

Vypočítaná měsíční splátka

Úroková sazba 3.6%

260 990 Kč

Hypotéku zařídíme za vás

Ušetřete svůj čas i nervy. Naši makléři zařídí veškeré papírování a dovedou vás až k úspěšnému podpisu smlouvy v bance.

Nechte nám kontakt, náš makléř se v pracovní dny ozve do 24 hodin

* – toto pole je nutné vyplnit
Marcela Hirschhorn
RE/MAX Anděl
Ostrovského 253/3
Praha 5 - Smíchov, 15000
Česká republika
Tel. na makléře: +420 720 572 699
Tel. do kanceláře: +420 725 293 030
E-mail: marcela.hirschhorn@re-max.cz

Potřebujete poradit/máte zájem o prohlídku?

* – toto pole je nutné vyplnit

Podrobné informace

Číslo zakázky:
ID 218-NP07039
Dispozice:
6 a více
Číslo podlaží:
2
Počet podlaží v objektu:
2
Podlahová plocha:
347 m²
Druh objektu:
Cihlová
Stav objektu:
Velmi dobrý
Vlastnictví:
Osobní
Typ nemovitosti:
Byty
Charakter okolní zástavby:
Obytná
Doprava:
Vlak, Dálnice, Silnice, MHD, Autobus
Garáž:
Ano
Odpad:
Kanalizace
Ostatní rozvody:
Satelit
Užitná plocha:
347 m²
Plocha zahrady:
963 m²
Zastavěná plocha:
177 m²
Plyn:
Individuální
Počet parkovacích míst:
1
Telekomunikace:
Telefon, Internet
Voda:
Dálkový rozvod
Vybaveno:
Ano
Energetická náročnost budovy:
D