Translate with 
MENU ZAVŘÍT

Prodej domu 96 m², Ústí nad Labem (ID 024-NP07538)

ulice Slovanská, Ústí nad Labem – městská část Ústí nad Labem-město mapa

5 850 000 Kč ( za nemovitost)
GMimořádně
nehospodárná

3x
96 m2
313 m2
2
Exkluzivně Rezervace

Rodinný dům s podkrovím a suterénem, ul. Slovanská, Ústí nad Labem – Skorotice

Nabízíme Vám ke koupi rodinný dům v klidné a dlouhodobě vyhledávané části Ústí nad Labem – Skorotice, konkrétně v ulici Slovanská. Tato lokalita je oblíbená především pro své rezidenční prostředí, dostatek zeleně a velmi dobrou dostupnost do centra města.

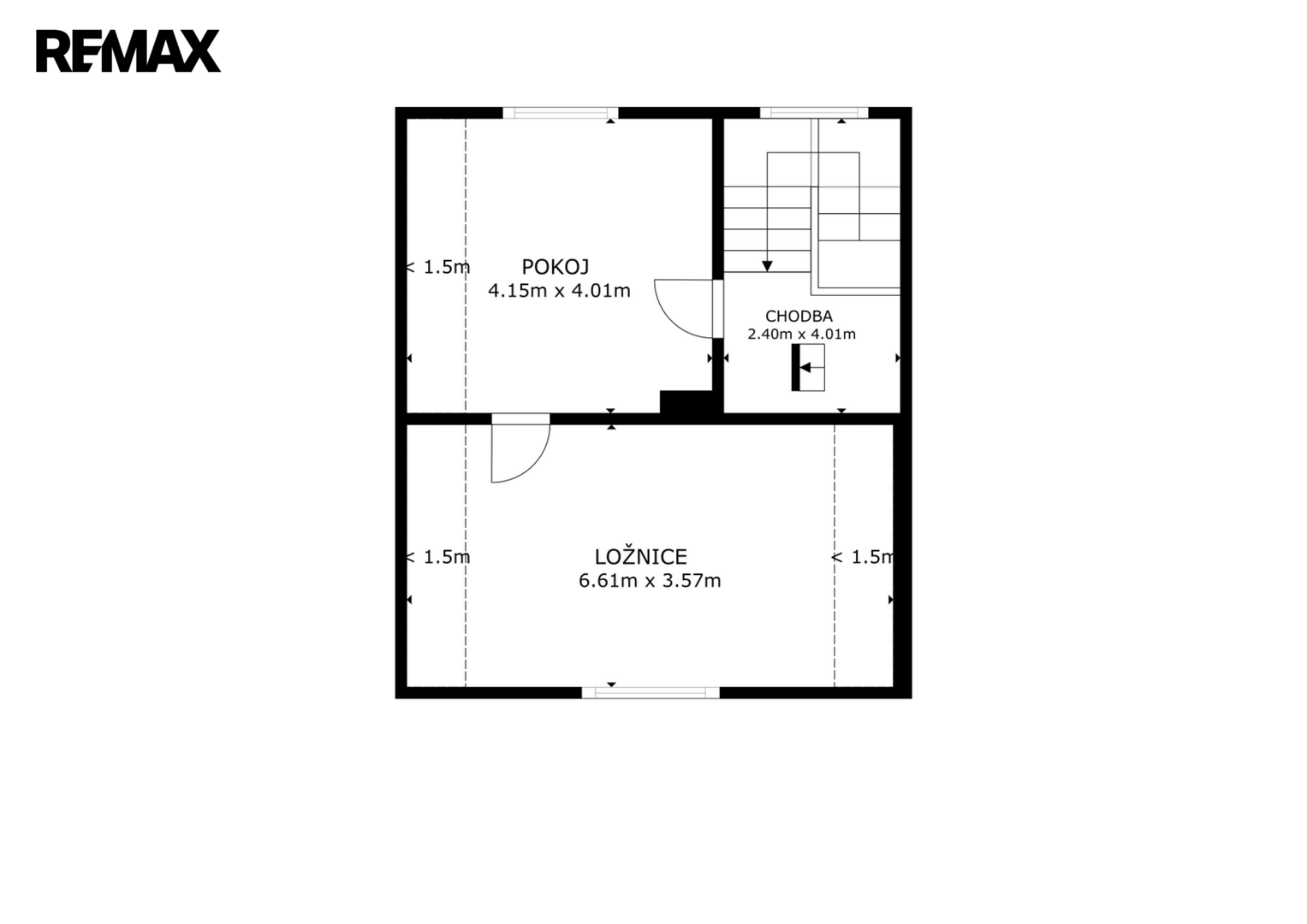
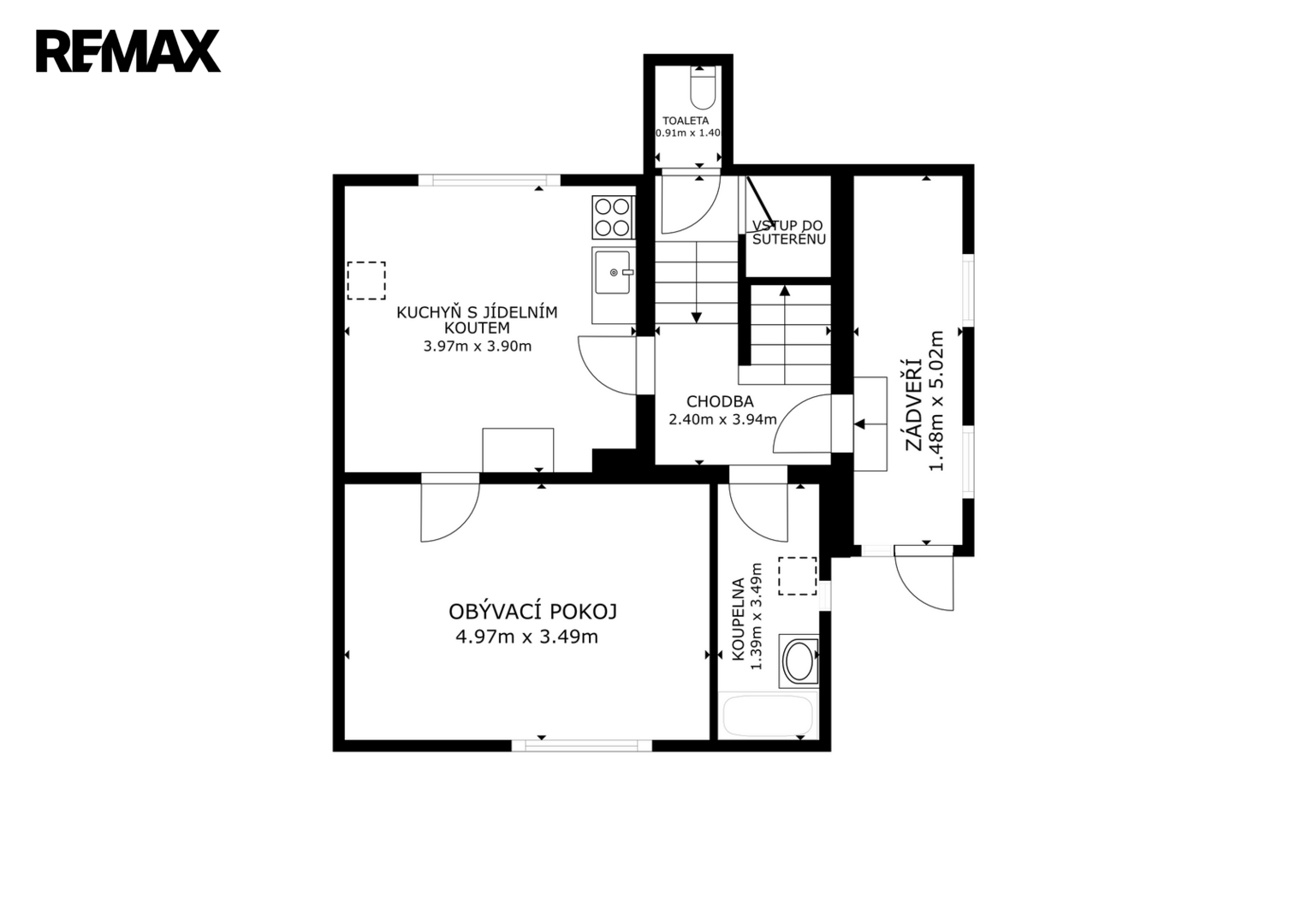
Dům je řešen jako přízemní stavba s obytným podkrovím a praktickým suterénem, což nabízí funkční rozdělení prostoru pro každodenní rodinné bydlení.

V přízemí se nachází obývací pokoj, kuchyň s jídelním koutem, koupelna, samostatná toaleta a vstupní chodba. V podkroví jsou situovány dva prostorné pokoje, které mohou sloužit jako ložnice, dětské pokoje či pracovna.

Velkým benefitem domu je také suterén, který je aktuálně využíván jako technické zázemí, dílna a skladovací prostory.

Zastavěná plocha domu činí 63 m², užitná plocha přibližně 96 m² + suterén. Celková výměra pozemku je 313 m², což představuje ideální velikost pro ty, kteří hledají kompaktní pozemek bez zbytečné náročnosti na údržbu.

Dům je napojen na veškeré inženýrské sítě – vodovod, kanalizaci, elektřinu i plyn. Na hranici pozemku je k dispozici studna s užitkovou vodou. Vytápění je řešeno plynovým kotlem.

Nemovitost je převážně v původním stavu a určena k rekonstrukci, což dává novému majiteli ideální příležitost upravit si bydlení dle vlastních představ a standardů.

Tato nabídka je ideální pro klienty, kteří hledají menší rodinný dům v kvalitní lokalitě, chtějí klidné bydlení a zároveň si chtějí nemovitost přizpůsobit přesně podle sebe, nikoliv řešit kompromisy hotového řešení.

V případě zájmu o více informací nebo sjednání osobní prohlídky nás neváhejte kontaktovat.
Prodávající si vyhrazuje právo vybrat kupujícího na základě jím zvolených kritérií.
Cena:
5 850 000 CZK / Rezervováno
Poznámka k ceně:
Včetně provize realitní kanceláře, právního servisu a advokátní úschovy.
RX finance

Spočítejte si splátku hypotéky

Na kolik vás vyjde pořízení vlastního bydlení? Zadejte pár informací do naší hypoteční kalkulačky a hned si prohlédněte výsledek.

Kupní cena nemovitosti

5 850 000 Kč

Výše hypotéky

Doba splácení

Vypočítaná měsíční splátka

Úroková sazba 3.6%

260 990 Kč

Hypotéku zařídíme za vás

Ušetřete svůj čas i nervy. Naši makléři zařídí veškeré papírování a dovedou vás až k úspěšnému podpisu smlouvy v bance.

Nechte nám kontakt, náš makléř se v pracovní dny ozve do 24 hodin

* – toto pole je nutné vyplnit
Martin Štrojsa
REMAX G8 Reality 6
Mírové náměstí 3485/35b
Ústí nad Labem, 40001
Česká republika
Tel. na makléře: +420 606 028 028
Tel. do kanceláře: +420 608 027 854
E-mail: martin.strojsa@re-max.cz

Potřebujete poradit/máte zájem o prohlídku?

* – toto pole je nutné vyplnit

Podrobné informace

Číslo zakázky:
ID 024-NP07538
Poloha objektu:
Samostatný
Počet podlaží v objektu:
2
Užitná plocha:
96 m²
Plocha parcely:
313 m²
Druh objektu:
Smíšená
Stav objektu:
Před rekonstrukcí
Typ nemovitosti:
Domy a vily
Doprava:
Vlak, Dálnice, Silnice, MHD, Autobus
Elektřina:
230 V
Odpad:
Kanalizace
Zastavěná plocha:
63 m²
Plyn:
Plynovod
Typ domu:
Přízemní
Umístění objektu:
Klidná část obce
Voda:
Dálkový rozvod
Energetická náročnost budovy:
G