Translate with 
MENU ZAVŘÍT

Pronájem výrobních prostor 610 m², Vsetín (ID 064-NP04438)

Vsetín – část obce Rokytnice u Vsetína mapa

69 000 Kč (bez DPH, za měsíc)
GMimořádně
nehospodárná

610 m2
Exkluzivně

Výrobní a skladovací hala s manipulační plochou ve Vsetíně, Rokytnici

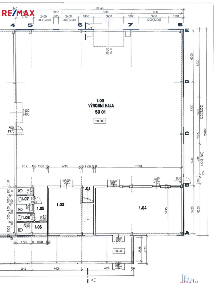
Nabízíme k pronájmu moderní výrobní nebo skladovou halu o zastavěné ploše 500 m² + kancelářské zázemí o výměře 110 m² ve 2. nadzemním podlaží, která se nachází v zavedeném průmyslovém areálu na okraji Vsetína - Rokytnice, výpadovka směr Zlín.

K dispozici je také asfaltová manipulační plocha před budovou o výměře 400 m2.

Hala je vhodná pro lehkou výrobu, montáž, kompletaci i skladování. Prostor je světlý, má vysoké stropy (čistá výška 5,1 m) a odolnou betonovou podlahu s vysokou nosností. Vstupní vrata o rozměrech 3,6 x 3,6 m.
Kanceláře jsou moderní, vybavené a nabízí příjemné pracovní prostředí s výhledem do haly i venkovního prostoru.

Objekt je postaven ze sendvičových panelů, které zajišťují výborné izolační vlastnosti. Vytápění je řešeno samostatnou kotelnou s vlastním plynovým kotlem. V hale je k dispozici sociální zázemí + menší sklady. Nemovitost má samostatné měření elektřiny, plynu i vody.

Areál je oplocený, monitorovaný kamerovým systémem a vjezd je zajištěn elektricky ovládanou bránou. Příjezd je bezproblémový i pro nákladní dopravu.

Velkou výhodou je napojení na vlastní trafostanici, která umožňuje i vyšší odběry elektrické energie. Prostory jsou k dispozici ihned a případné úpravy lze řešit individuálně dle potřeb nájemce.

Pro více informací kontaktujte makléře nabídky. Pronajímající si vyhrazuje právo vybrat nájemce na základě jím zvolených kritérií.
Cena:
69 000 CZK / za měsíc
Poznámka k ceně:
+ DPH a energie
Bc. Martin Valigura
REMAX Quality
Na Příkopě 814
Vsetín, 75501
Česká republika
Tel. na makléře: +420 602 161 719
Tel. do kanceláře: +420 725 686 500
E-mail: martin.valigura@re-max.cz

Potřebujete poradit/máte zájem o prohlídku?

* – toto pole je nutné vyplnit

Podrobné informace

Číslo zakázky:
ID 064-NP04438
Typ nemovitosti:
Komerční prostory
Druh prostor:
Výrobní
Plocha kanceláří:
610 m²
Druh objektu:
Skeletová
Stav objektu:
Velmi dobrý
K nastěhování:
1. 4. 2026
Doprava:
Silnice, Autobus
Elektřina:
230 V, 400 V
Odpad:
Kanalizace
Celková plocha:
610 m²
Plocha zahrady:
400 m²
Typ domu:
Patrový
Umístění objektu:
Okraj obce
Voda:
Dálkový rozvod
Energetická náročnost budovy:
G