Translate with 
MENU ZAVŘÍT

Prodej bytu 4+kk v osobním vlastnictví 138 m², Český Brod (ID 010-NP05104)

ulice K Vysílači, Český Brod – část obce Liblice mapa

8 490 000 Kč ( za nemovitost)
CÚsporná

kk
4x
138 m2
2/4
Exkluzivně

Prodej prostorného bytu 4+kk, 138 m v Liblicích, okr. Český Brod

Exkluzivně nabízíme velice prostorný krásný byt 4+kk umístěný ve druhém nadzemní podlaží zrekonstruovaného zatepleného bytového domu, který se nachází v klidné lokalitě Liblice u Českého Brodu.
Dům je postaven v uzavřeném areálu s vjezdovou bránou uprostřed velkého pozemku a soukromé zahrady určené výhradně pro obyvatele domu. Zahradu lze využívat ke grilování nebo posezení a relaxaci.
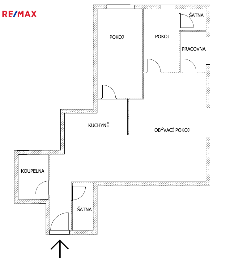
Byt má celkovou výměru 138,6 m2 a obsahuje vstupní předsíň, skutečně obrovský obývací pokoj spojený s kuchyní a jídelnou, dvě velké ložnice, pracovnu, dvě šatny, WC s koupelnou s vanou i sprchou. Byt je vybaven kuchyňskou linkou se spotřebiči, vestavěnými skříněmi a klimatizací.
K bytu náleží 2 parkovací stání přímo pod okny bytu.
Vytápění je komfortní podlahové pomocí vlastního elektrokotle. Průměrná měsíční spotřeba elektřiny je cca 3 000,-Kč.

Přímo v obci najdete mateřskou i střední školu, obchod s potravinami a místní hospůdku. Kompletní občanskou vybavenost nabízí pouhý 1 km vzdálený Český Brod.
Spojení s okolím je vynikající díky pravidelným linkám PID a nedalekému vlakovému nádraží (trasa Praha - Kolín). Vlaky jezdí ve špičce každých 15 minut a v centru Prahy i Kolína jste za pohodových 30 minut. Prodávající si vyhrazuje právo vybrat kupujícího na základě jím zvolených kritérií.
Cena:
8 490 000 CZK / za nemovitost
Poznámka k ceně:
cena je včetně provize a veškerého právního servisu
RX finance

Spočítejte si splátku hypotéky

Na kolik vás vyjde pořízení vlastního bydlení? Zadejte pár informací do naší hypoteční kalkulačky a hned si prohlédněte výsledek.

Kupní cena nemovitosti

8 490 000 Kč

Výše hypotéky

Doba splácení

Vypočítaná měsíční splátka

Úroková sazba 3.6%

260 990 Kč

Hypotéku zařídíme za vás

Ušetřete svůj čas i nervy. Naši makléři zařídí veškeré papírování a dovedou vás až k úspěšnému podpisu smlouvy v bance.

Nechte nám kontakt, náš makléř se v pracovní dny ozve do 24 hodin

* – toto pole je nutné vyplnit
Otakar Schuma
REMAX Search
Na bělidle 309/31
Praha 5 - Smíchov, 15000
Česká republika
Tel. na makléře: +420 777 051 051
Tel. do kanceláře: +420 734 526 176
E-mail: otakar.schuma@re-max.cz

Potřebujete poradit/máte zájem o prohlídku?

* – toto pole je nutné vyplnit

Podrobné informace

Číslo zakázky:
ID 010-NP05104
Dispozice:
4+kk
Číslo podlaží:
2
Počet podlaží v objektu:
4
Podlahová plocha:
138 m²
Druh objektu:
Cihlová
Stav objektu:
Velmi dobrý
Vlastnictví:
Osobní
Typ nemovitosti:
Byty
Elektřina:
230 V
Odpad:
Kanalizace
Užitná plocha:
138 m²
Počet parkovacích míst:
2
Umístění objektu:
Klidná část obce
Voda:
Dálkový rozvod
Vybaveno:
Ano
Energetická náročnost budovy:
C