Translate with 
MENU ZAVŘÍT

Prodej bytu 2+kk v osobním vlastnictví 43 m², Praha 9 - Kyje (ID 023-NP08842)

ulice Lipnická, Praha 9 – Kyje mapa

7 400 000 Kč ( za nemovitost)
DMéně
úsporná

kk
2x
43 m2
2/6
Exkluzivně

Prodej bytu 2+kk, 43 m², Lipnická, Praha - Kyje

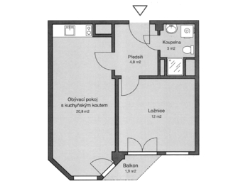
Prodej bytu 2+kk o výměře 40,6 m² + balkón 1,9 m² ve 2.NP z celkových 6.NP, v Praze Kyjích - Hutě, ul. Lipnická 1450 ve zděném bytovém domě s výtahem.

Byt o dispozici 2+kk/B má pokoje orientované na severozápad. Na podlaze v kuchyňském koutě, předsíni a v koupelně s WC je dlažba. V obývacím pokoji plovoucí podlaha a v ložnici zátěžový koberec. V koupelně je sprchový kout, WC, umývadlo a místo pro pračku s přípravou pro napojení. V předsíni je možnost vybudovat úložné prostory. Měsíční platba do fondu oprav je 650 Kč.

Dům má vlastní kotelnu pro vytápění a ohřev vody. Zajištěný je úklid domu a k dispozici je kočárkárna. Společné prostory vypovídají o slušném složení obyvatel domu s fungující správou SVJ, která zpracovává analýzu možných vylepšení a rekonstrukce domu.

V okolí je veškerá občanská vybavenost, zeleň, … metro a vlaková stanice Rajská zahrada, autobusová zastávka Hutě.
Jedná se o osobní vlastnictví, je tedy možné financování hypotečním úvěrem, který Vám pomůžeme zprostředkovat. Prodávající si vyhrazuje právo vybrat kupujícího na základě jím zvolených kritérií.
Cena:
7 400 000 CZK / za nemovitost
RX finance

Spočítejte si splátku hypotéky

Na kolik vás vyjde pořízení vlastního bydlení? Zadejte pár informací do naší hypoteční kalkulačky a hned si prohlédněte výsledek.

Kupní cena nemovitosti

7 400 000 Kč

Výše hypotéky

Doba splácení

Vypočítaná měsíční splátka

Úroková sazba 3.6%

260 990 Kč

Hypotéku zařídíme za vás

Ušetřete svůj čas i nervy. Naši makléři zařídí veškeré papírování a dovedou vás až k úspěšnému podpisu smlouvy v bance.

Nechte nám kontakt, náš makléř se v pracovní dny ozve do 24 hodin

* – toto pole je nutné vyplnit
Petr Procházka
REMAX G8 Reality 2
Kleinerova 1466
Kladno, 27201
Česká republika
Tel. na makléře: +420 602 227 408
Tel. do kanceláře: +420 312 240 239
E-mail: petr.prochazka@re-max.cz

Potřebujete poradit/máte zájem o prohlídku?

* – toto pole je nutné vyplnit

Podrobné informace

Číslo zakázky:
ID 023-NP08842
Dispozice:
2+kk
Číslo podlaží:
2
Počet podlaží v objektu:
6
Podlahová plocha:
43 m²
Druh objektu:
Cihlová
Stav objektu:
Velmi dobrý
Vlastnictví:
Osobní
Typ nemovitosti:
Byty
Charakter okolní zástavby:
Obytná
Elektřina:
230 V
Odpad:
Kanalizace
Užitná plocha:
43 m²
Zastavěná plocha:
339 m²
Plyn:
Plynovod
Počet podlaží pod zemí:
1
Voda:
Dálkový rozvod
Výtah:
Ano
Energetická náročnost budovy:
D
Měrná vypočtená roční spotřeba energie v kWh/m²/rok:
134