Translate with 
MENU ZAVŘÍT

Prodej bytu 2+kk v osobním vlastnictví 60 m², Praha 9 - Kbely (ID 205-NP12668)

ulice Pod Nouzovem, Praha 9 – Kbely mapa

8 490 000 Kč ( za nemovitost)
CÚsporná

kk
2x
60 m2
2/5
Exkluzivně

Prodej bytu 2+kk, Pod Nouzovem, Praha 19 - Kbely

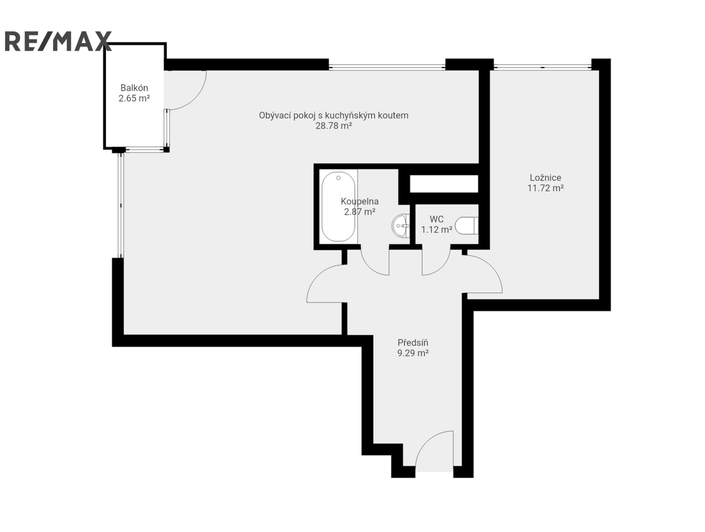
Nabízíme Vám ke koupi bytovou jednotku o užitné ploše 55 m² s balkonem (2,65 m²) a sklepem (2,1 m²), situovanou v klidné lokalitě v blízkosti přírody.
Byt se nachází ve 2. nadzemním podlaží a jeho dispozice zahrnuje obývací pokoj s kuchyňským koutem, ložnici, předsíň, koupelnu s vanou, samostatné WC, balkon a sklep.
Dům je pravidelně udržovaný a společné prostory jsou ve velmi dobrém stavu.
Nemovitost se nachází v klidné rezidenční části Prahy – Kbely, která je součástí stabilizované zástavby bytových domů. Lokalita nabízí příjemnou atmosféru, dostatek zeleně a minimální provoz, což zajišťuje komfortní bydlení vhodné jak pro jednotlivce, tak i páry či rodiny.
V okolí najdete parky, dětská hřiště i volnočasové plochy vhodné pro sport a relaxaci. Oblast je ideální pro procházky, běh nebo cyklistiku. Velkým benefitem je také golfové hřiště vzdálené pár minut pěší chůzí od domu.
Veškerá občanská vybavenost je dostupná v docházkové vzdálenosti – mateřské a základní školy, obchody, restaurace, lékárna i pošta. Lokalita nabízí dobré dopravní spojení, autobusové linky zajišťují rychlou návaznost na metro Letňany i centrum Prahy.
Výhodou je také vlakové spojení – nedaleko se nachází stanice Praha-Kbely, odkud je zajištěno pravidelné a rychlé spojení na Masarykovo nádraží v centru Prahy.
Byt je volný ihned a jeho koupi lze financovat hypotečním úvěrem, se kterým Vám rádi pomůžeme.
V případě zájmu o prohlídku mě neváhejte kontaktovat. Prodávající si vyhrazuje právo vybrat kupujícího na základě jím zvolených kritérií.
Cena:
8 490 000 CZK / za nemovitost
RX finance

Spočítejte si splátku hypotéky

Na kolik vás vyjde pořízení vlastního bydlení? Zadejte pár informací do naší hypoteční kalkulačky a hned si prohlédněte výsledek.

Kupní cena nemovitosti

8 490 000 Kč

Výše hypotéky

Doba splácení

Vypočítaná měsíční splátka

Úroková sazba 3.6%

260 990 Kč

Hypotéku zařídíme za vás

Ušetřete svůj čas i nervy. Naši makléři zařídí veškeré papírování a dovedou vás až k úspěšnému podpisu smlouvy v bance.

Nechte nám kontakt, náš makléř se v pracovní dny ozve do 24 hodin

* – toto pole je nutné vyplnit
Hana Filip
RE/MAX Alfa
Spálená 97/29
Praha 1 - Nové Město, 11000
Česká republika
Tel. na makléře: +420 604 702 101
Tel. do kanceláře: +420 296 240 400
E-mail: hana.filip@re-max.cz

Potřebujete poradit/máte zájem o prohlídku?

* – toto pole je nutné vyplnit

Podrobné informace

Číslo zakázky:
ID 205-NP12668
Dispozice:
2+kk
Číslo podlaží:
2
Počet podlaží v objektu:
5
Podlahová plocha:
60 m²
Druh objektu:
Cihlová
Stav objektu:
Velmi dobrý
Vlastnictví:
Osobní
Typ nemovitosti:
Byty
Charakter okolní zástavby:
Obytná
K nastěhování:
26. 3. 2026
Odpad:
Kanalizace
Užitná plocha:
55 m²
Zastavěná plocha:
818 m²
Plyn:
Plynovod
Umístění objektu:
Klidná část obce
Energetická náročnost budovy:
C