Translate with 
MENU ZAVŘÍT

Prodej bytu 3+kk v osobním vlastnictví 62 m², Praha 4 - Modřany (ID 257-NP01419)

ulice Levského, Praha 4 – Modřany mapa

7 270 000 Kč ( za nemovitost)
CÚsporná

kk
3x
62 m2
3/12
Exkluzivně

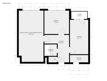
Byt 3+kk/L a komorou, 62 m2 , OV, Praha - Modřany

Praha – Modřany. Je tato lokalita tou, kde si přejete mít svůj nový domov? A ještě byste si ho chtěli udělat přesně podle svých představ? Pak přímo pro Vás je tato nabídka. Byt v osobním vlastnictví o dispozici 3+kk s lodžií a komorou, o výměře 62 m2 (bez plochy lodžie) se nachází v ulici Levského a nabízí potenciál pro Váš nový začátek.
Je v původním stavu, vyklizený a připravený na kompletní rekonstrukci. Právě to ale může být jeho největší výhoda – můžete si vytvořit domov přesně takový, jaký si představujete. Dispozice 3+kk poskytuje dostatek prostoru pro rodinu, pár nebo je dobře využitelný i na případný pronájem.
Vstupní prostorná předsíň, 2 samostatné neprůchozí pokoje, obývací pokoj s kuchyňským koutem, koupelna s vanou a toaleta. Součástí bytu je malá lodžie orientovaná na západ. Velmi praktickým bonusem je také komora umístěná přímo na patře hned vedle bytu, která poskytuje další úložný prostor. V bytě jsou plastová okna. Ve videu a fotografiích zařazeny vizualizace.
Dům prošel revitalizací: stoupačky, výtahy (jsou zde 2), zateplení, společné prostory. Další výhodou je větší parkoviště hned vedle domu.
Lokalita nabízí výbornou občanskou vybavenost (MŠ, ZŠ, supermarket, poliklinika, pošta, restaurace, dětská hřiště, nedaleko Sofijské náměstí) a velmi dobrou dopravní dostupnost (zastávka tramvaje 3, 17, 21 je 3 minuty pěšky). Pro milovníky přírody jsou ideálním místem k procházkám, sportu a relaxaci Modřanská rokle či oblast Kamýku, které jsou v pohodlné pěší dochůznosti.
Pokud tedy hledáte byt, který si můžete přetvořit na svůj nový vysněný domov nebo zajímavou investici do budoucna, ráda vám ho osobně představím na prohlídce. Prodávající si vyhrazuje právo vybrat kupujícího na základě jím zvolených kritérií.
Cena:
7 270 000 CZK / za nemovitost
RX finance

Spočítejte si splátku hypotéky

Na kolik vás vyjde pořízení vlastního bydlení? Zadejte pár informací do naší hypoteční kalkulačky a hned si prohlédněte výsledek.

Kupní cena nemovitosti

7 270 000 Kč

Výše hypotéky

Doba splácení

Vypočítaná měsíční splátka

Úroková sazba 3.6%

260 990 Kč

Hypotéku zařídíme za vás

Ušetřete svůj čas i nervy. Naši makléři zařídí veškeré papírování a dovedou vás až k úspěšnému podpisu smlouvy v bance.

Nechte nám kontakt, náš makléř se v pracovní dny ozve do 24 hodin

* – toto pole je nutné vyplnit
Soňa Coufalová
REMAX Cool
Roztylské náměstí 393/35
Praha 4 - Záběhlice, 14100
Česká republika
Tel. na makléře: +420 728 400 586
Tel. do kanceláře: +420 728 400 586
E-mail: sona.coufalova@re-max.cz

Potřebujete poradit/máte zájem o prohlídku?

* – toto pole je nutné vyplnit

Podrobné informace

Číslo zakázky:
ID 257-NP01419
Dispozice:
3+kk
Číslo podlaží:
3
Počet podlaží v objektu:
12
Podlahová plocha:
62 m²
Druh objektu:
Panelová
Stav objektu:
Velmi dobrý
Vlastnictví:
Osobní
Typ nemovitosti:
Byty
Doprava:
MHD
Odpad:
Kanalizace
Užitná plocha:
62 m²
Plyn:
Plynovod
Voda:
Dálkový rozvod
Výtah:
Ano
Energetická náročnost budovy:
C