Translate with 
MENU ZAVŘÍT

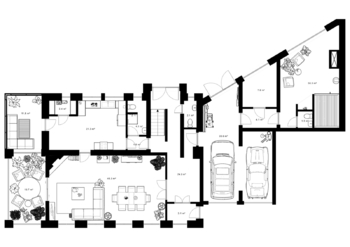
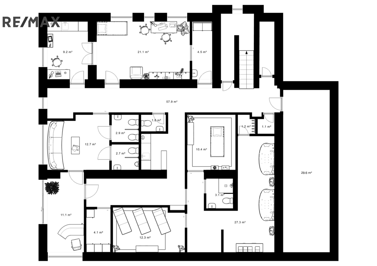
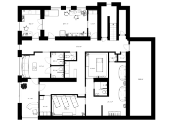
Prodej domu 675 m², Čelákovice (ID 205-NP12698)

ulice Vašátkova, Čelákovice mapa

49 000 000 Kč ( za nemovitost)
DMéně
úsporná

5+
675 m2
2791 m2
3
Exkluzivně

Funkcionalistická vila z období první republiky s pozemkem 2791 m2.

Dovolujeme si Vám nabídnout výjimečnou funkcionalistickou vilu s rozsáhlým pozemkem v klidné rezidenční části města Čelákovice, v docházkové vzdálenosti pár minut na náměstí a vlakového spoje do Prahy.

Původní část domu vznikla ve 30. letech minulého století podle návrhu architekta Karla Štipla, který patřil mezi žáky slavného architekta Josipa Plečnika. Vila tak nese typické znaky prvorepublikového funkcionalismu – důraz na světlo, prostor, proporce a nadčasovou eleganci. V roce 2024 byla dokončena rozsáhlá přístavba a modernizace, díky níž dnes vila nabízí ideální propojení historické architektury a současného komfortu.

Celková užitná plocha staveb na pozemku o velikosti 2 791 m² přesahuje 700 m². V domě jsou aktuálně zkolaudovány čtyři bytové jednotky a nebytový prostor, což umožňuje samostatné i vícegenerační bydlení, rovněž kombinaci bydlení s podnikáním.

V suterénní části se nachází nebytové prostory zkolaudované jako zdravotnické zařízení - dříve rehabilitační centrum se samostatným bezbariérovým vstupem, čekárnou, kancelářemi a kompletním zázemím. Tento prostor je možné s minimálními úpravami využít i pro jiné osobní či podnikatelské účely, například jako soukromou kliniku, wellness nebo fitness centrum.

Nemovitost není památkově chráněna a je ve velmi dobrém technickém stavu - budova je zateplená, byly instalovány nové plynové kotle a další modernizace technologií, které zajišťují komfortní a efektivní provoz. Vše rádi představíme osobně při prohlídce.

Součástí pozemku je rovněž původní zděný altán z období výstavby domu, dříve využívaný jako galerie, dále samostatná zděná stavba se srubovým obkladem vhodná jako zázemí pro správce či sklad na zahradní nářadí. Zahrada v parkovém stylu, s vzrostlými stromy a dvěma funkčními studnami, poskytuje vysokou míru soukromí a možnost dalšího využití. Nachází se zde mimo jiné i liliovník tulipánokvětý, který je v našich podmínkách raritou.

Díky své poloze, architektuře a variabilní dispozici představuje tato vila ideální řešení jak pro reprezentativní rodinné bydlení, sídlo firmy, soukromou kliniku nebo investiční záměr.

Prohlídky se budou konat po předchozí telefonické či písemné dohodě. Prodávající si vyhrazuje právo vybrat kupujícího na základě jím zvolených kritérií.
Cena:
49 000 000 CZK / za nemovitost
RX finance

Spočítejte si splátku hypotéky

Na kolik vás vyjde pořízení vlastního bydlení? Zadejte pár informací do naší hypoteční kalkulačky a hned si prohlédněte výsledek.

Kupní cena nemovitosti

49 000 000 Kč

Výše hypotéky

Doba splácení

Vypočítaná měsíční splátka

Úroková sazba 3.6%

260 990 Kč

Hypotéku zařídíme za vás

Ušetřete svůj čas i nervy. Naši makléři zařídí veškeré papírování a dovedou vás až k úspěšnému podpisu smlouvy v bance.

Nechte nám kontakt, náš makléř se v pracovní dny ozve do 24 hodin

* – toto pole je nutné vyplnit
Věra Krulichová
REMAX Alfa
Spálená 97/29
Praha 1 - Nové Město, 11000
Česká republika
Tel. na makléře: +420 296 240 407
Tel. do kanceláře: +420 296 240 400
E-mail: krulichovi.team@re-max.cz

Potřebujete poradit/máte zájem o prohlídku?

* – toto pole je nutné vyplnit

Podrobné informace

Číslo zakázky:
ID 205-NP12698
Poloha objektu:
Samostatný
Počet podlaží v objektu:
3
Užitná plocha:
675 m²
Plocha parcely:
2 791 m²
Druh objektu:
Cihlová
Stav objektu:
Velmi dobrý
Typ nemovitosti:
Domy a vily
K nastěhování:
1. 5. 2026
Typ domu:
Patrový
Umístění objektu:
Centrum obce
Vybaveno:
Ano
Energetická náročnost budovy:
D