Translate with 
MENU ZAVŘÍT

Prodej bytu 3+kk v osobním vlastnictví 88 m², Praha 1 - Nové Město (ID 320-NP00292)

ulice Opatovická, Praha 1 – Nové Město mapa

19 600 000 Kč ( za nemovitost)
GMimořádně
nehospodárná

kk
3x
91 m2
4/5
Exkluzivně

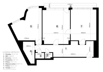
Prodej bytu 3kk v centru Prahy 88m2

Hledáte bydlení v samotném centru Prahy, které kombinuje prostor, výhled a zároveň dává smysl i jako investice? Tento byt o dispozici 3+kk v Opatovické ulici nabízí přesně to, co se na dnešním trhu objevuje jen zřídka.

Byt o podlahové ploše 88 m² se nachází ve 4. patře z 5 v domě s výtahem. Dominantou celého bytu je obývací prostor se vstupem na balkon, odkud se otevírá krásný výhled do centra Prahy. Přesně ten typ výhledu, který vás ani po letech neomrzí. Samotná lokalita je jedním z nejsilnějších benefitů této nabídky. Opatovická ulice leží v srdci Nového Města, jen pár minut chůze od Národní třídy a Karlova náměstí. V bezprostředním okolí najdete kompletní občanskou vybavenost, jako: restaurace, kavárny, obchody, služby, fitness centra, školy i zdravotnická zařízení.

Výborná dopravní dostupnost je samozřejmostí, metro i tramvaje máte doslova pár kroků od domu. V pěší vzdálenosti je také nábřeží Vltavy, Žofín nebo Národní divadlo, což z této adresy dělá ideální místo pro život i dlouhodobou hodnotu nemovitosti.

Velkou přidanou hodnotou je suterénní nebytový prostor/ateliér o velikosti přes 38 m², který je součástí prodeje a je veden na stejném listu vlastnictví jako byt. Tento prostor je připraven k okamžitému pronájmu, disponuje vlastní kuchyní, koupelnou, jídelní částí i klidovou zónou. V praxi tak může generovat stabilní měsíční příjem a výrazně pomoci s pokrytím nákladů na bydlení nebo splácením hypotéky.

Tato nemovitost tak nabízí nejen kvalitní bydlení v jedné z nejžádanějších částí Prahy, ale i promyšlený investiční přesah, který dává celé koupi úplně jiný rozměr.
Pokud hledáte kombinaci lokality, prostoru a výnosu, tohle je nabídka, která pro Vás dává smysl!

Budu se na Vás těšit na prohlídce! Prodávající si vyhrazuje právo vybrat kupujícího na základě jím zvolených kritérií.
Cena:
19 600 000 CZK / za nemovitost
RX finance

Spočítejte si splátku hypotéky

Na kolik vás vyjde pořízení vlastního bydlení? Zadejte pár informací do naší hypoteční kalkulačky a hned si prohlédněte výsledek.

Kupní cena nemovitosti

19 600 000 Kč

Výše hypotéky

Doba splácení

Vypočítaná měsíční splátka

Úroková sazba 3.6%

260 990 Kč

Hypotéku zařídíme za vás

Ušetřete svůj čas i nervy. Naši makléři zařídí veškeré papírování a dovedou vás až k úspěšnému podpisu smlouvy v bance.

Nechte nám kontakt, náš makléř se v pracovní dny ozve do 24 hodin

* – toto pole je nutné vyplnit
Filip Beránek
REMAX Welcome Home
Zenklova 2245/29
Praha 8 - Libeň, 18000
Česká republika
Tel. na makléře: +420 724 883 607
Tel. do kanceláře: +420 602 400 024
E-mail: filip.beranek@re-max.cz

Potřebujete poradit/máte zájem o prohlídku?

* – toto pole je nutné vyplnit

Podrobné informace

Číslo zakázky:
ID 320-NP00292
Dispozice:
3+kk
Číslo podlaží:
4
Počet podlaží v objektu:
5
Užitná plocha:
88 m²
Druh objektu:
Cihlová
Stav objektu:
Velmi dobrý
Vlastnictví:
Osobní
Typ nemovitosti:
Byty
Odpad:
Kanalizace
Podlahová plocha:
91 m²
Zastavěná plocha:
344 m²
Plyn:
Plynovod
Výtah:
Ano
Energetická náročnost budovy:
G